Дом в аренду, Синергия КП
Код: 535-002
Особенности объекта
Сдается новый стильный дом 250 кв.м в закрытом строгоохраняемом поселке бизнес-класса Синергия на территории Новой Москвы. Высокое качество строительства и современная отделка дома в стиле Неоклассики. Дом с центральными коммуникациями, полностью оснащен всей необходимой качественной мебелью и техникой, имеет функциональную планировку, включающую 5 спален, просторную совмещенную зону гостиной, кухни, столовой и уютной террасы, а также 4 полноценных санузла. Участок граничит с лесом, имеет приватную зону отдыха, ухоженный газон, взрослые лесные деревья и мощенную парковку для авто. КП Синергия, окруженный лесным массивом, сочетает в себе комфорт мегаполиса и экологические блага загородной жизни. Удачное расположение позволяет всего за 5 минут добраться до знаменитой школы Летово и за 20 минут до центра столицы. Также в непосредственной близости находятся фитнес-клубы Теннис.ру и Дубровка, несколько ресторанов, Азбука вкуса и другие супермаркеты, школы, детские сады, поликлиники и прочие объекты городской инфраструктуры. Для жителей поселка непосредственно у КПП организована остановка общественного транспорта до станций метро.
Расположение
Ссылка на карту
Синергия КП (Зименки)
Калужское шоссе, от МКАД: 7 км, всего: 11 км
Киевское шоссе, от МКАД: 7 км, всего: 12 км
Тип застройки: сформированный к/п
Метро: Ольховая, Теплый стан, Бунинская аллея; от 10 мин на авто
Коттеджный поселок «Синергия»
Дом
Общая площадь строений: 250 м2
Год постройки дома: 2023 (отделка в 2024)
Количество уровней: 3
Спален: 5. С/узлов: 4. Комнат всего: 7.
Опции: терраса.
Материал стен: поризованный керамический блок Protherm 38
Облицовка стен: кирпич керамический, цоколь - керамогранит. Декоративные элементы фасада: оконные молдинги, сандрик с замковым камнем, портал с карнизом на входной группе. Металлическое кованное ограждения на террасе.
Кровля: черепица цементно-песчаная Brass, водосточная система металлическая с полимерным покрытием
Окна: стеклопакеты ПВХ (двухкамерные ламинированные снаружи в цвет - графит с раскладкой. Высота окон 1.95 м)
Стадия готовности: меблирован
1-ый этаж: крыльцо 8.5 кв.м, прихожая 9.8 кв.м с гардеробной 3 кв.м, кухня-гостиная 30.4 кв.м с выходом на крытую террасу 26 кв.м, спальня 16.4 кв.м, санузел c душем 3 кв.м, котельная с прачечной 6.4 кв.м и отдельным входом
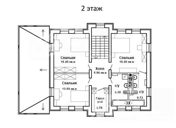
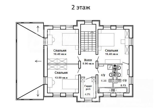
2-ой этаж: холл 6 кв.м, главная спальня 16.4 кв.м с санузлом 5.7 кв.м (с ванной), спальня 16.4 кв.м, спальня 13.6 кв.м, общий санузел 6.3 кв.м (с ванной), общая гардеробная 4.8 кв.м
3-ий этаж: холл 8 кв.м, кабинет-библиотека 24 кв.м, спальня с гардеробной 19.6 кв.м, санузел 3 кв.м (с душем)
Описание внутренней отделки: современные отделка и мебель в стиле Неоклассика, выполненные по дизайн-проекту. В жилых комнатах на стенах интерьерная краска (светло-серого цвета) и дизайнерские обои ЭВА. В санузлах - плитка Porcelanosa, краска интерьерная. Полы в гостиной-кухне - керамогранит (Kerama marazzi), с водяным подогревом; в спальнях и кабинете - кварц-виниловое покрытие под дерево с водяным подогревом; в санузлах - керамогранит Porcelanosa Berna Acero с водяным подогревом. Лестничный марш ж/б монолит шириной 0.95 м, ступени из керамогранита, шаг 27*16.7 см, ограждения - закаленное стекло с металлическими хромированными перилами. Потолки подвесные ГКЛ с нишами под скрытые карнизы и освещение, с различной подсветкой. Сантехника: ванны - Art&Max, унитазы с инсталляцией и раковины - SSWW, смесители - WasserKRAFT Main. Входная дверь - стеклопакет.
Инженерное обеспечение: газовый настенный котел Buderus 32 кВт, бойлер косвенного нагрева 150 л. Вентиляция естественная, установлены кондиционеры.
Мебель, оборудование: кухонный гарнитур белого цвета с каменной столешницей, с витриной для посуды и встроенной техникой: двухкамерный холодильник, электрическая варочная панель, духовой шкаф, посудомоечная машина. Столовая группа на 6 персон, в гостиной просторный угловой диван с коробом для хранения и спальным местом, тумба под ТВ, журнальный столик. Спальни оборудованы всей необходимой мебелью: двуспальные кровати, тумбы, комоды, системы хранения в гардеробных. На мансардном этаже диван для отдыха, шкаф для документов и книг. Стол со стульями и два шезлонга на террасе. Телевизоры в гостиной и кабинете, установлена стиральная машина. На окнах карнизы, шторы и тюль. Множество разнообразных приборов освещения: люстры в общей стилистике дома, настенные бра, встроенные споты. Холл и гостиную украшают напольные комнатные растения.
Дополнительная информация о доме: высота потолков: первый и второй этажи - 3 м; третий этаж (мансарда) - от 0.82 до 2.55 м.
Участок
Площадь участка, соток: 10
Тип участка: поле с ландшафтом
Благоустройство участка: высажен газон, взрослые лесные деревья, устроена стоянка на 2 авто, отмостка вокруг дома
Дополнительная информация об участке: глухой забор из профлиста высотой 1.8 м
Коммуникации
Газ: есть (магистральный)
Э/э: есть (12 кВт)
Водопровод: центральный (ВЗУ на поселок)
Канализация: централизованная (очистные на поселок)
Интернет: есть (оптико волокно)
Охрана: есть (КПП)
Описание инфраструктуры
Инфраструктура в поселке: въездная группа с парковкой, общий выход в лес, частный детский сад. Инфраструктура внешняя: лучшая школа в России в Летово, спортивный центр Теннис с кортами, бассейном и фитнес-клубом. В 1 км метро Филатов Луг. В 500 м остановка общественного транспорта до м Тёплый стан (автобус 878). Мега, Ашан, Икеа, магазины и рестораны в Дубровке, спорткомплексы и иные услуги в п.Газопровод, Воскресенское и г. Московский.
Хочу посмотретьОплата агентству «Белые Ветры»: 210 000 руб.
Поделитесь с друзьями:
Похожие предложения:
Дом в аренду, Президент к/п, 260 м2, 12 сот
Бунинская аллея, Ольховая - от 8 мин на автоДом в аренду, Президент к/п
Калужское ш., 8 км + 3 км
пл. участка: 12 сот
пл. дома: 260 м2
меблирован
Спален: 4. С/узлов: 3.

Дом в аренду, Есенино КП (Марьино), 255 м2, 12 сот
Калужское шоссе, от МКАД: 12+3 км
Ольховая, Рассказовка - от 20 мин на автоДом в аренду, Есенино КП
Киевское ш., 7 км + 9 км
пл. участка: 12 сот
пл. дома: 255 м2
меблирован
Спален: 4. С/узлов: 4.







