Загородный дом, коттедж в аренду на Калужском, Киевском шоссе Подмосковья.

Дом в аренду, Топаз КИЗ

Снят с реализации

Дом 146 кв.м в КП Топаз КИЗ

Код: 460-002

Особенности объекта

Компактный дом 147 кв.м с функциональной планировкой, вдали от городской суеты, в полностью обжитом, охраняемом поселке. Расположен на просторном участке 18 соток с ландшафтным дизайном, прудом и фонтаном. Отдельностоящая Баня и барбекю...

Расположение

Ссылка на карту
Топаз КИЗ (Новоглаголево)
Киевское шоссе, от МКАД: 32 км, всего: 39 км
Калужское шоссе, от МКАД: 29 км, всего: 48 км
Тип застройки: обжитой к/п
Метро: Рассказовка, Филатов луг, Теплый стан; от 31 мин на авто

Дом

Общая площадь строений: 171.7 м2 (дом 146.7 + баня 25 кв.м)
Количество уровней: 2
Спален: 3. С/узлов: 2. Комнат всего: 4.
Опции: баня; терраса; камин.
Материал стен: кирпич
Облицовка стен: облицовочный кирпич
Кровля: металлочерепица
Окна: стеклопакеты ПВХ (двухкамерные)
Стадия готовности: под ключ
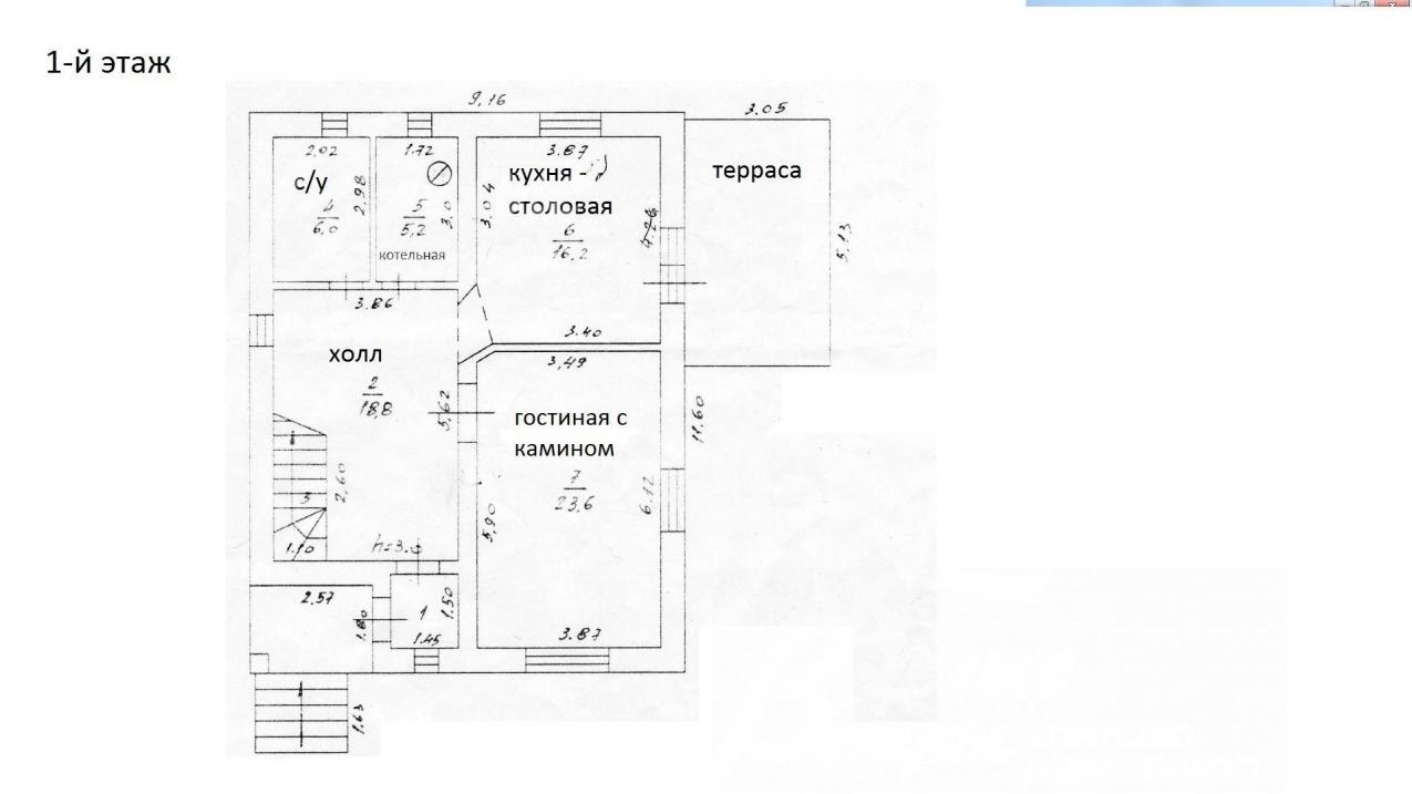
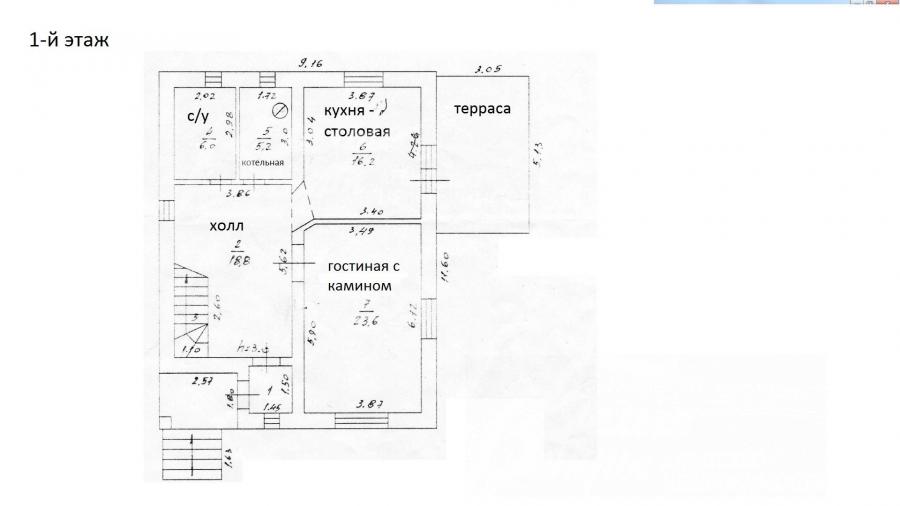
1-ый этаж: холл 18.8 кв.м, санузел 6 кв.м, котельная 5.2 кв.м, кухня-столовая 16.2 кв.м, гостиная с камином 23.6 кв.м, открытая терраса 15 кв.м
2-ой этаж: холл 11.2 кв.м, спальня 12.4 кв.м, спальня 16.7 кв.м, спальня 17.9 кв.м с гардеробной 2.8кв.м, санузел 6.8 кв.м
Описание внутренней отделки: стильный ремонт, качественная, со вкусом подобранная мебель, импортная сантехника, на стенах картины. Лестница из массива твердых пород дерева, на полу подогреваемый керамогранит и паркетная доска. Стены оштукатурены и окрашены, потолки-побелка.
Инженерное обеспечение: многоступенчатая система очистки воды
Мебель, оборудование: дом оснащен всей необходимой мебелью и техникой, включая посудомоечную машину
Дополнительные строения: баня 25 кв.м (комната отдыха, парная и помывочная)

Участок

Площадь участка, соток: 18
Тип участка: лесной, со взрослыми деревьями (ели, березы)
Благоустройство участка: на участке проведен ландшафтный дизайн - обустроен пруд с фонтаном, высажены различные плодово-ягодные кустарники и деревья, альпийская горка, цветники, вымощены дорожки, проведено уличное освещение.

Коммуникации

Газ: есть (магистральный)
Э/э: есть
Водопровод: центральный
Канализация: централизованная
Телефон: есть
Интернет: возможно подключение
Охрана: есть (КПП на въезде в поселок)

Описание инфраструктуры

Обжитой, строго охраняемый коттеджный поселок на 150 домов, расположен в окружении густого смешанного леса. На больших, преимущественно лесных участках поселка возведены элитные дома со всеми коммуникациями. Ежемесячное обслуживание недорогое, эксплуатация осуществляется опытной компанией. В поселке 2 детских площадки, теннисный корт, в пешей доступности магазины, Дикси, аптека, пляж (озеро), рыбалка, грибной лес. В непосредственной близости рестораны, фитнес-клуб, кинотеатр, храм, в 5км - инфраструктура поселка Селятино.

Хочу посмотреть


Оплата агентству «Белые Ветры»: 57 500 руб.

Поделитесь с друзьями:

С помощью агентства загородной недвижимости «Белые Ветры» Вы без труда сможете снять дом в Подмосковье на Юго-западном направлении.
Рейтинг@Mail.ru