Дом в аренду, Высота к/п
Код: 162-009
Особенности объекта
В стародачном элитном поселке на берегу реки, стильный и очень уютный дом на лесном участке. Также на участке баня, большая беседка оборудованая всеми видами барбекю, дом для персонала, большая площадка для машин. Дом выполнен в три этажа: первый этаж кирпичный, второй и третий этажи - оцилиндрованное бревно и полностью меблирован. В доме 3 спальни, главная спальня - двухэтажная с кабинетом и большой гардеробной
Расположение
Ссылка на карту
Высота к/п (Ботаково)
Калужское шоссе, от МКАД: 17 км, всего: 19 км
Киевское шоссе, от МКАД: 21 км, всего: 30 км
Тип застройки: обжитой к/п
Метро: Ольховая, Теплый стан, Бунинская аллея; от 18 мин на авто
Дом
Общая площадь строений: 340 м2 (в т.ч.: жилой дом 190,3 кв.м, дом для персонала 80 кв.м, баня 70 кв.м.)
Количество уровней: 3
Спален: 3. С/узлов: 2. Комнат всего: 5.
Опции: баня; квартира для персонала; терраса; машиномест крытых: 2.
Материал стен: кирпич, оцилиндрованное бревно
Облицовка стен: природный камень
Кровля: мягкая
Окна: стеклопакеты деревянные
Стадия готовности: меблирован
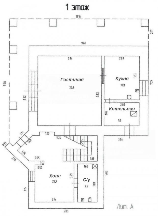
1-ый этаж: холл 23 кв.м, гостиная 29 кв.м с выходом на террасу, кухня 10 кв.м, с/узел 5 кв.м, котельная 6 кв.м
2-ой этаж: три спальни 23 кв.м, 18 кв.м, 14 кв.м, коридор 7 кв.м, терраса 6 кв.м, ванная комната 9 кв.м
3-ий этаж: кабинет 12 кв.м, гардеробная 21 кв.м
Описание внутренней отделки: отделка внутренних стен - декоративная штукатурка; отделка полов - плитка, паркетная доска; установлен монолитный лестничный марш;
Инженерное обеспечение: котел Proterm (Чехия); установлена импортная сантехника; система очистки воды; кондиционеры; установлена пожарная сигнализация, датчики объема
Мебель, оборудование: дом и все строения полностью оборудованы и меблированы
Дополнительные строения: - Баня бревенчатая 70 кв.м
- дом для персонала 80кв.м
- беседка-барбекю с мангалом, печью, коптильней 50 кв.м
- навес для автомобилей
- детский игровой домик
Участок
Площадь участка, соток: 25
Тип участка: лесной (много взрослых деревьев).
Благоустройство участка: произведен ландшафтный дизайн: двухуровневый участок с лесными деревьями и кустарниками, высажены цветы, сделаны дорожки, выполнено освещение, сделан дренаж
Дополнительная информация об участке: участок прямоугольной формы, огороженный забором, облицованым природным камнем с деревяными секциями
Коммуникации
Газ: есть (магистральный)
Э/э: есть (20 кВт)
Водопровод: центральный
Канализация: централизованная
Интернет: есть (Wi-Fi, спутниковое ТВ)
Охрана: есть
Описание инфраструктуры
С одной стороны поселок граничит со стародачными местами - известными поселками "Советский писатель", "Мосдачтрест", территорией детского санатория. С другой стороны - с крупным подмосковным городом Троицк, где на выбор представлена вся необходимая для жизни городская инфраструктура - отличные школы, детские сады, супермаркеты, спортивные центры, филиалы московских вузов и многое дургое.
Элементы положит. окружения
Лесной массив, река
Комментарий к цене
+коммунальные платежи
Хочу посмотретьОплата агентству «Белые Ветры»: 90 000 руб.
Поделитесь с друзьями:
Похожие предложения:
Дом в аренду, Жуковка, 350 м2, 25 сот
Киевское шоссе, от МКАД: 21+12 км
Ольховая, Теплый стан - от 24 мин на автоДом в аренду, Жуковка
Калужское ш., 14 км + 7 км
пл. участка: 25 сот
пл. дома: 350 м2
меблирован
Спален: 4. С/узлов: 3.
Дом в аренду, Пятовское, 340 м2, 20 сот
Калужское шоссе, от МКАД: 17+10 км
Филатов луг, Рассказовка - от 27 мин на автоДом в аренду, Пятовское
Киевское ш., 21 км + 9 км
пл. участка: 20 сот
пл. дома: 340 м2
меблирован
Спален: 4. С/узлов: 2.
Дом в аренду, Апрелевка, 400 м2, 20 сот
Апрелевка, Рассказовка - от 10 мин пешкомДом в аренду, Апрелевка
Киевское ш., 25 км + 1 км
пл. участка: 20 сот
пл. дома: 400 м2
меблирован
Спален: 3. С/узлов: 3.

Дом в аренду, Эколь КП (Фоминское), 397.3 м2, 20 сот
Киевское шоссе, от МКАД: 21+14 км
Ольховая, Теплый стан - от 20 мин на автоДом в аренду, Эколь КП
Калужское ш., 14 км + 4 км
пл. участка: 20 сот
пл. дома: 397.3 м2
меблирован
Спален: 4. С/узлов: 5.

Дом в аренду, Эколь КП (Фоминское), 360 м2, 20 сот
Киевское шоссе, от МКАД: 21+14 км
Ольховая, Теплый стан - от 20 мин на автоДом в аренду, Эколь КП
Калужское ш., 14 км + 4 км
пл. участка: 20 сот
пл. дома: 360 м2
меблирован
Спален: 4. С/узлов: 5.




















