Дом в аренду, Зимний сад к/п
Код: 205-021
Особенности объекта
Аренда дома с качественной и стильной мебелью, в обжитом охраняемом коттеджном поселке Зимний сад. Видео. В доме 2 этажа, гостиная с камином, кухня-столовая, кабинет, 3 спальни, веранда и др. Ухоженный участок с ландшафтным дизайном: газон, дорожки из декоративного камня, фонари декоративные, посажены молодые деревья и кустарники. Возможна аренда на лето!
Расположение
Ссылка на карту
Зимний сад к/п (Первомайское)
Киевское шоссе, от МКАД: 21 км, всего: 26 км
Тип застройки: обжитой к/п
Метро: Крёкшино, Саларьево, Теплый стан; от 23 мин на авто
Коттеджный поселок «Зимний Сад»
Дом
Общая площадь строений: 200 м2
Количество уровней: 2
Спален: 3. С/узлов: 3. Комнат всего: 6.
Опции: сауна; терраса; камин; машиномест крытых: 2.
Материал стен: кирпич
Облицовка стен: облицовочный кирпич, фундамент обложен натуральным
Кровля: натуральная черепица ("БРААС")
Окна: стеклопакеты ПВХ (двухкамерные)
Стадия готовности: меблирован
1-ый этаж: котельная 10,1 кв.м с отдельным входом с улицы, тамбур 6 кв.м, холл 16 кв.м, с/узел 3 кв.м с душевой, постирочная 8 кв.м, кабинет 21 кв.м, холл 12 кв.м, кухня-столовая 36 кв.м, гостиная с камином 37 кв.м и с выходом на веранду
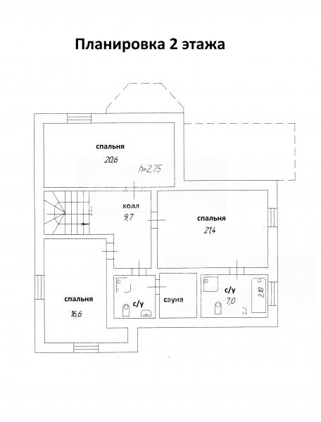
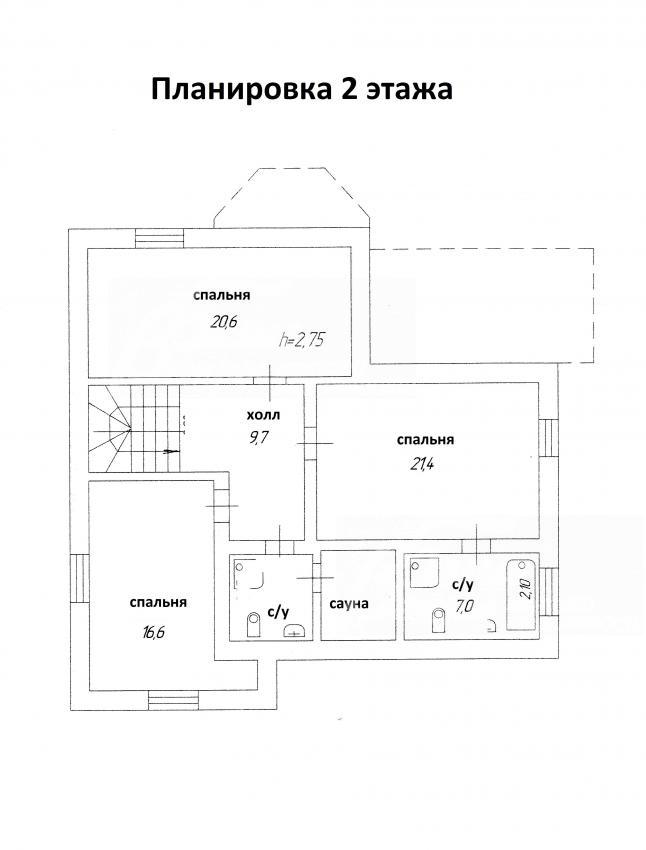
2-ой этаж: холл 30,6 кв.м, спальня с с/узлом, спальня 19 кв.м, с/узел 4 кв.м, спальня 19 кв.м с балконом 3 кв.м
Описание внутренней отделки: отделка внутренних стен - декоративная штукатурка; отделка полов - паркетная доска, плитка с подогревом; установлен монолитный лестничный марш с дубовым покрытием и художественной ковкой шириной 1,20 м; натяжные потолки со встроенной подсветкой, деревянные панели
Инженерное обеспечение: установлен котел VAILLANT (Германия); многоступенчатая система очистки воды; импортная сантехника;
Мебель, оборудование: Дом полностью укомплектован современной качественной мебелью и бытовой техникой
Дополнительные строения: навес на 2 автомобиля, летняя беседка
Участок
Площадь участка, соток: 12
Тип участка: с ландшафтным дизайном
Благоустройство участка: выполнен ландшафтный дизайн участка: газон, дорожки из декоративного камня, фонари декоративные, посажены молодые березы, кусты и деревья; выполнен дренаж; автономный полив участка
Статус земли: земли населенных пунктов, для ИЖС
Дополнительная информация об участке: участок прямоугольной формы, огороженный с фасада деревянным забором на кирпичных столбах, по всему остальному периметру - забор из металлопрофиля на кирпичных столбах; установлены калитка, ворота
Коммуникации
Газ: есть (магистральный)
Э/э: есть (12 кВт)
Водопровод: центральный
Канализация: централизованная
Интернет: есть (Скайлинк)
Охрана: есть
Описание инфраструктуры
Вся городская инфраструктура находится в 10 минутах на машине в поселке Первомайское: школы, дестские сады, поликлинка, банки, рестораны, салоны красоты, спортивный комплекс и тп. Пяти звездочный Отель и СПА-комплекс Теплеево Резорт, включающий в себя: детский сад «Империя Знаний», выездной туристический клуб, спортивные и творческие кружки, подготовительные занятия к школе и тп., бизнес-центр с конференц-залами, рестораны, фитнес-центр, SPA-клуб, 25-метровый бассейн с гейзером и массажными противотоками, детский бассейн с горкой, финские сауны и турецкий хамам, арома-баня, косметология, солярий, имидж-студия, банкоматы, прачечная, химчистка. А также рыбалка, катание на лошадях, квадроциклы, пейнтбол, тир, теннисные корты, баскетбол, залы единоборств, парковка. В в деревне Рогозинино расположены Торговый центр, магазин «Перекресток», "Русская теннисная академия" (кроме тенниса: единоборства, детский клуб, студия фитнеса), ресторан «Весна», СПА-комплекс и Международная школа Внуково.
Элементы положит. окружения
Лесной массив, река
Хочу посмотретьОплата агентству «Белые Ветры»: 60 000 руб.
Поделитесь с друзьями:
Похожие предложения:
Дом в аренду, Подмосковные вечера к/п (Рогозинино), 236 м2, 9 сот
Калужское шоссе, от МКАД: 17+11 км
Саларьево, Рассказовка - от 19 мин на автоДом в аренду, Подмосковные вечера к/п
Киевское ш., 21 км + 4 км
пл. участка: 9 сот
пл. дома: 236 м2
меблирован
Спален: 5. С/узлов: 2.
Дом в аренду, Жуковка, 200 м2, 15 сот
Киевское шоссе, от МКАД: 21+12 км
Ольховая, Теплый стан - от 24 мин на автоДом в аренду, Жуковка
Калужское ш., 14 км + 7 км
пл. участка: 15 сот
пл. дома: 200 м2
меблирован
Спален: 4. С/узлов: 2.

Дом в аренду, Верховье к/п (Верховье), 160 м2, 15 сот
Киевское шоссе, от МКАД: 21+7 км
Филатов луг, Саларьево - от 22 мин на автоДом в аренду, Верховье к/п
Калужское ш., 17 км + 9 км
пл. участка: 15 сот
пл. дома: 160 м2
под ключ
Спален: 3. С/узлов: 2.
Дом в аренду, Звезда-95 к/п (Кленово), 190 м2, 12 сот
Варшавское шоссе, от МКАД: 30+2 км
Бульвар Дмитрия Донского, Коммунарка - от 47 мин на автоДом в аренду, Звезда-95 к/п
Калужское ш., 29 км + 15 км
пл. участка: 12 сот
пл. дома: 190 м2
меблирован
Спален: 4. С/узлов: 2.

















