Продажа таунхауса на Калужском, Киевском шоссе — стоимость, описание, фото, расположение на карте.

Таунхаус, Былово к/п

Снят с реализации

Код: 183-705

Особенности объекта

Выгодное предложение! Торцевой таунхаус 336 кв.м, просторный и светлый, с гаражом и участком 4 сотки (право пользования), с окнами на 3 стороны света, городскими действующими коммуникациями. Рядом наукоград- г. Троицк (школы, дом ученых, дворец Спорта, школа искусств, поликлинники, больницы, кафе, рестораны, фитнесс...) В пешей доступности спортивный парк Красная Пахра и инфраструктура с. Былово (церковь, дом культуры, детский сад). Остановка общественного транспорта до метро Теплый Стан в 500м.

Расположение

Ссылка на карту
Былово к/п (Былово)
Калужское шоссе, от МКАД: 24 км, всего: 27 км
Тип застройки: сформированный к/п
Метро: Ольховая, Теплый стан, Бунинская аллея; от 25 мин на авто
Жилой комплекс «Былово»

Дом

Общая площадь строений: 336 м2
Количество уровней: 3
Спален: 6. С/узлов: 3. Комнат всего: 7.
Опции: машиномест крытых: 1, в т.ч. в теплом гараже: 1.
Материал стен: ячеистый бетон
Облицовка стен: штукатурка с покраской по утеплителю
Кровля: металлочерепица
Окна: стеклопакеты ПВХ (на 3 стороны света, на 3 этаже мансардные окна)
Стадия готовности: под чистовую отделку
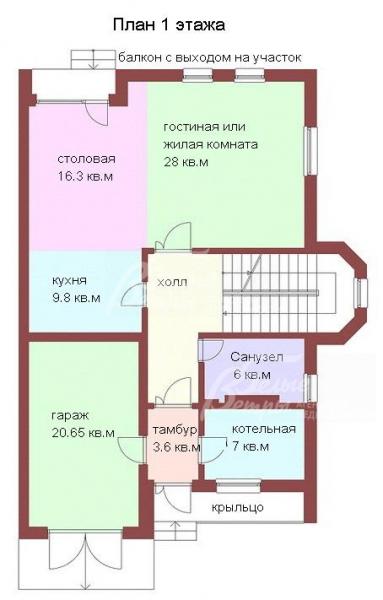
1-ый этаж: гараж 20.6 кв.м, тамбур 3.6 кв.м, котельная 7 кв.м, санузел 6 кв.м, холл 20 кв.м, кухня 9.7 кв.м объединенная со столовой 16.2 кв.м, жилая комната 28 кв.м, холл 19.9 кв.м
2-ой этаж: холл 8.3 кв.м, с/у 6 кв.м, спальня 27.9 кв.м с выходом на лоджию 3.3 кв.м и кабинетом 7 кв.м, спальня 24.5 кв.м с выходом на лоджию 2.2 кв.м, спальня 28.2 кв.м
3-ий этаж: студия 63.8 кв.м, с/у 6 кв.м, спальня 45.4 кв.м
Описание внутренней отделки: установлены двухкамерные стеклопакеты (без подоконных досок), сделана стяжка полов на первом этаже, лестницы монолитные железобетонные, стены ошпаклеваны, оштукатурены
Инженерное обеспечение: выполнена разводка по дому отопления и электрики
Дополнительная информация о доме: перекрытия монолитные, железобетонные, жесткий минеральный утеплитель

Участок

Площадь участка, соток: 4 (право пользования)
Тип участка: без деревьев
Благоустройство участка: участок на 3 стороны света
Статус земли: ИЖС

Коммуникации

Газ: есть
Э/э: есть
Водопровод: центральный (городские коммуникации)
Канализация: централизованная
Телефон: возможно подключение (МГТС)
Интернет: возможно подключение (оптоволокно)
Охрана: есть

Ипотека:

возможна

Описание инфраструктуры

Инфраструктура поселка Былово (магазин, Михайло-Архангельский храм (1862 года)). Спортивный парк Красная Пахра площадью 12 га, которой можно пользоваться и зимой, и летом. На территории "Красной Пахры" оборудованы футбольное поле с искусственным покрытием, волейбольная площадка, теннисный корт, шахматные столы, площадки для воркаута, создана пляжная зона. Через реку Пахра, огибающую парк, возвели два моста, а на берегу построили четыре причала. Отдыхающие могут воспользоваться парковками на 250 (на противоположном берегу) и 75 машин (у входа в парк), раздевалками, туалетами, открыта столовая. В зимние месяцы в парке можно покататься на лыжах. Лыжная трасса, длиной 2 км., летом превращается в велосипедную дорожку.

Элементы положит. окружения

г. Троицк, спортивный парк "Красная Пахра", магазин, церковь, остановка общественного транспорта до м. Теплый Стан, рядом река, лес

Хочу посмотреть


Поделитесь с друзьями:

Агентство недвижимости «Белые Ветры» предлагает Вам выбрать и купить таунхаус на Киевском и Калужском шоссе. Таунхаус — это современный, экономичный и комфортный тип загородного жилья.
Рейтинг@Mail.ru