Продажа таунхауса на Калужском, Киевском шоссе — стоимость, описание, фото, расположение на карте.

Таунхаус, Лесная Сказка ЖК

Снят с реализации

Секция таунхауса 180 кв.м в ЖК Лесная сказка

Код: 572-708

Особенности объекта

Самая большая торцевая секция в охраняемом ЖК, в современном стиле, с панорамным остеклением, ближайший к лесу. В подарок дизайн-проект в стиле "Прованс". В ЖК предусмотрена собственная инфраструктура: детские и спортивные площадки, детский сад, школа, магазин, отделение банка. Все коммуникации центральные. Рядом лес, пруды, провославная школа, храм, г. Троицк. Введен в эксплуатацию. Возможна ипотека. Сбербанк от 7,5%, ВТБ, СМП.

Расположение

Ссылка на карту
Лесная Сказка ЖК (Троицк)
Калужское шоссе, от МКАД: 17 км, всего: 20 км
Киевское шоссе, от МКАД: 21 км, всего: 33 км
Тип застройки: формирующийся к/п
Метро: Ольховая, Бунинская аллея, Теплый стан; от 21 мин на авто

Дом

Общая площадь строений: 180 м2
Год постройки дома: 2017 (строится по 214 ФЗ)
Количество уровней: 3
Спален: 5. С/узлов: 3. Комнат всего: 5.
Опции: балконы, парковка на 1 м/м.
Материал стен: монолитный каркас, газобетонные блоки, утеплитель
Облицовка стен: штукатурка
Кровля: совмещенная рулонная кровля с гидро и пароизоляцией
Окна: стеклопакеты ПВХ (окна панорамные, от пола до потолка, с двухкамерным стеклопакетом)
Стадия готовности: под отделку
1-ый этаж: помещение свободной планировки 62 кв.м. Пример планировки: прихожая-холл 14 кв.м, с/у 4 кв.м, кухня-столовая 17 кв.м, гостиная 10 кв.м, бойлерная, спальня/кабинет 10 кв.м
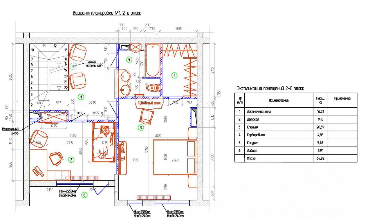
2-ой этаж: помещение свободной планировки 65 кв.м. Пример планировки: холл 16 кв.м, спальня с балконом 14 кв.м, спальня 20,4 кв.м, гардеробная 5 кв.м, с/у 5.5 кв.м
3-ий этаж: помещение свободной планировки 65 кв.м. Пример планировки: холл 16 кв.м, спальня с балконом 14 кв.м, спальня 16,6 кв.м, гардеробная 5 кв.м, с/у 5.5 кв.м
Описание внутренней отделки: секция сдается "под отделку", все этажи со свободной планировкой. Установлена утепленная металлическая входная дверь
Инженерное обеспечение: двухконтурный газовый котел Ferolli (Италия) + радиатор. Коммуникации заведены в дом (на 1 этаж, в котельную)
Дополнительная информация о доме: Высота потолков: на 2-м и 3-м этажах 3 метра. Конструктив здания предусматривает возможность объединения нескольких секций в одну (соседние).

Участок

Площадь участка, соток: 1 (право пользования участком возле секции)
Тип участка: без деревьев
Статус земли: Земли населенных пунктов, МЖС (малоэтажное жилищное строительство)
Дополнительная информация об участке: участок торцевой

Коммуникации

Газ: есть (магистральный)
Э/э: есть (15 кВт на секцию)
Водопровод: центральный (собственный водозаборный узел в поселке)
Канализация: централизованная (очистные сооружения г. Троицк)
Телефон: возможно подключение (оптиковолокно)
Интернет: возможно подключение (оптиковолокно)
Охрана: есть (КПП на въезде в поселок, пропускная система, видеонаблюдение)

Ипотека:

объект аккредитован (в Сбербанке)

Описание инфраструктуры

Детский сад и начальная школа 1-4 классы. Административно-торговый центр, в составе которого помимо служб эксплуатации универсальный магазин, аптека, отделение сбербанка и фельдшерский пункт. В 2 км г.Троицк

Элементы положит. окружения

Лесной массив окружает поселок с 2-х сторон, рядом озера

Хочу посмотреть


Поделитесь с друзьями:

Агентство недвижимости «Белые Ветры» предлагает Вам выбрать и купить таунхаус на Киевском и Калужском шоссе. Таунхаус — это современный, экономичный и комфортный тип загородного жилья.
Рейтинг@Mail.ru