Продажа таунхауса на Калужском, Киевском шоссе — стоимость, описание, фото, расположение на карте.

Таунхаус, Рависсант КП

Снят с реализации

Торцевой таунхаус 168 кв.м в КП Рависант (Пучково)

Код: 327-231

Особенности объекта

Меблированный торцевой таунхаус 168 кв.м с продуманными планировками, удачно подобранной мебелью и аксессуарами, на приусадебном участке 3 сотки. Расположен в обжитом поселке с центральными коммуникациями.

Расположение

Ссылка на карту
Рависсант КП (Пучково)
Калужское шоссе, от МКАД: 17 км, всего: 22 км
Киевское шоссе, от МКАД: 21 км, всего: 33 км
Тип застройки: обжитой к/п
Метро: Ольховая, Прокшино, Теплый стан; от 21 мин на авто
Коттеджный поселок «Рависсант»

Дом

Общая площадь строений: 168 м2
Год постройки дома: 2013
Количество уровней: 3
Спален: 4. С/узлов: 2. Комнат всего: 5.
Опции: терраса; камин.
Материал стен: поризованный к ирпич
Облицовка стен: облицовочный кирпич
Кровля: металлочерепица
Окна: стеклопакеты ПВХ
Стадия готовности: меблирован
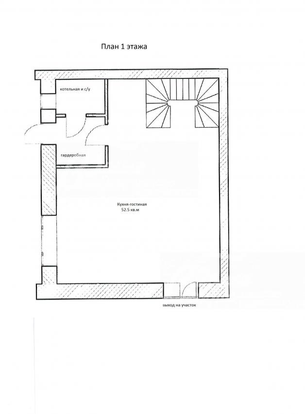
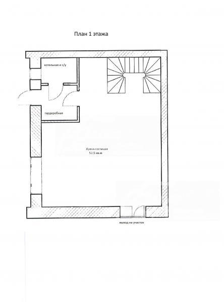
1-ый этаж: холл 4 кв.м, котельная с гостевым санузлом 3 кв.м, гардеробная 2 кв.м, столовая-гостиная 55 кв.м
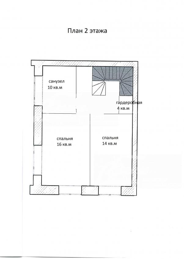
2-ой этаж: санузел 10 кв.м со стеклянным потолком и подстветкой (выполнен народным художником России Исааком Арановичем), холл 6 кв.м, спальня 14 кв.м, спальня 16 кв.м, гардеробная 4 кв.м
3-ий этаж: свободная планировка
Описание внутренней отделки: стены покрашены; полы 1 этажа отделаны плиткой (разновидность итальянского мрамора) - с теплым полом по всему периметру, включая тамбур; на полах 2-го этажа паркетная доска, на мансардном этаже ламинат самой высокой прочности N33. Лестничный марш бетонный - покрыт плиткой (разновидность итальянского мрамора), перила сделаны из кованного железа на Тульском оружейном заводе. Потолки оштукатурены и покрашены, на 3-м этаже - потолок оформлен в скандинавском стиле с частичной отделкой деревом. Установлена импортная сантехника, двери из массива дуба. На 1-м и 2-м этажах хрустальные бра и люстры, на 3-м этаже 2 массивные люстры - кованые и 4 бра -хрустальные
Инженерное обеспечение: 2-х контурный котел Протерм (производство Чехия) на 35 кВт, система очистки воды
Мебель, оборудование: очень качественная мебель из массива дуба по индивидуальному заказу
Дополнительная информация о доме: высота потолков в помещениях 3 м 20 см

Участок

Площадь участка, соток: 3
Тип участка: парковый, с высаженными деревьями
Благоустройство участка: зеленый газон, на участке высажены 2 сосны и цветы
Статус земли: МЖС
Дополнительная информация об участке: прямоугольный участок

Коммуникации

Газ: есть
Э/э: есть
Водопровод: центральный
Канализация: централизованная
Телефон: есть (МГТС)
Интернет: есть (оптиковолокно)
Охрана: есть (ЧОП)

Описание инфраструктуры

В поселке Ново-Троицкое частный детский сад "Яблоневый сад". Из собственной инфраструктуры в поселке - большой благоустроенный пруд, с небольшим пляжем, беседкой и прогулочной зоной. В другой части поселка - детская площадка с беседкой для отдыха и рядом выход в лес с обустроенной зоной для прогулок. В 1 км - общеобразовательная православная школа в дер.Пучково. А всего в 2,5 км - полная развитая городская инфраструктура г.Троицк, до которого ходят регулярные маршрутки. В Троицке фитнес-центр в Троицке бизнес-класса с бассейном Резиденция, рестораны Заречье, Пикник на обочине, школы, детские сады, развивающие центры для детей (Центр Буракова), больницы и многое другое.

Хочу посмотреть


Поделитесь с друзьями:

Агентство недвижимости «Белые Ветры» предлагает Вам выбрать и купить таунхаус на Киевском и Калужском шоссе. Таунхаус — это современный, экономичный и комфортный тип загородного жилья.
Рейтинг@Mail.ru