Дом, Кленовая Аллея КП
Код: 441-810
Особенности объекта
Хорошо спланированный дом под чистовую отделку: большая гостиная и просторная спальня на первом этаже; уютная хозяйская спальня с гардеробной и санузлом на втором. Дом расположен в тихом уютном поселке, окруженном еловым массивом.
Расположение
Ссылка на карту
Кленовая Аллея КП (Уварово)
Киевское шоссе, от МКАД: 21 км, всего: 28 км
Калужское шоссе, от МКАД: 17 км, всего: 25 км
Тип застройки: формирующийся к/п
Метро: Филатов луг, Рассказовка, Теплый стан; от 25 мин на авто
Коттеджный поселок «Кленовая аллея»
Дом
Общая площадь строений: 350 м2
Год постройки дома: 2014
Количество уровней: 3
Спален: 4. С/узлов: 3. Комнат всего: 6.
Опции: машиномест крытых: 2, в т.ч. в теплом гараже: 2.
Материал стен: кирпич
Облицовка стен: декоративная штукатурка Короед
Кровля: металлочерепица
Окна: стеклопакеты ПВХ
Стадия готовности: под ключ
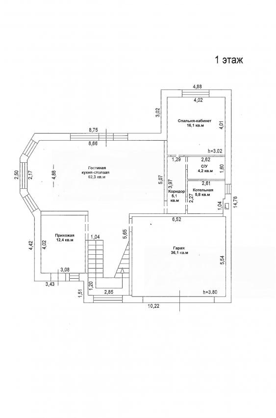
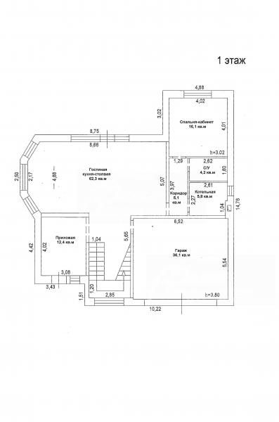
1-ый этаж: холл-прихожая 12.4 кв.м, гостиная кухня-столовая 62 кв.м, коридор 5 кв.м, спальня-кабинет 16 кв.м, с/узел 4 кв.м, гараж 36 кв.м, котельная 5.8 кв.м
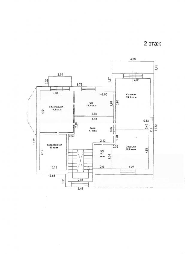
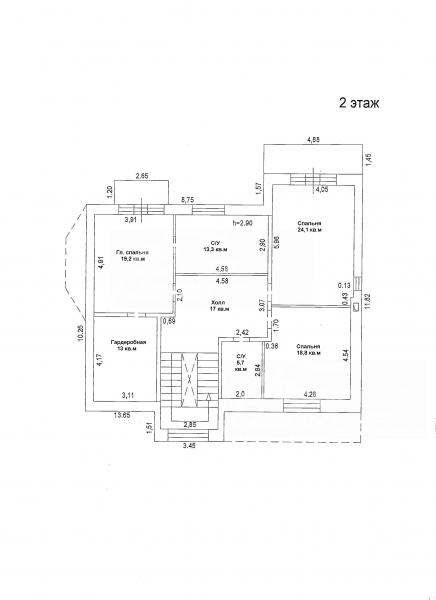
2-ой этаж: холл 17 кв.м, спальня 18.8 кв.м, спальня 24 кв.м, с/узел 5.7 кв.м, главная спальня 19 кв.м с санузлом 13 кв.м и с гардеробной 13 кв.м
3-ий этаж: мансардный этаж: комната отдыха 50 кв.м, спальня 15 кв.м, с/узел 7 кв.м, кладовая 12 кв.м.
Описание внутренней отделки: Качественная стильная отделка. Дорогостоящая плитка и мозаика (Испания, Италия), подоконники из мрамора. Окна больших проемов.
Мебель, оборудование: Сантехника и мебель оговаривается отдельно
Участок
Площадь участка, соток: 15
Тип участка: без деревьев
Статус земли: земли населенных пунктов, для ИЖС
Дополнительная информация об участке: ровный участок прямоугольной формы, по периметру огорожен забором из металлопрофиля
Коммуникации
Газ: есть
Э/э: есть
Водопровод: индивид. скважина
Канализация: автономная
Телефон: возможно подключение
Интернет: возможно подключение
Охрана: есть (КПП)
Описание инфраструктуры
Прогулочная зона в лесном массиве с живым уголком, детскими и спортивными площадками. В 2 км в поселке Птичное - школа, детский сад, фитнес-центр, супермаркет, рестораны. В 5 км в коттеджном поселке «Империал» расположена гимназия «Доверие» - начальная школа и детский сад; Империал Парк Отель & SPA, Русская теннисная академия, Ресторан "Весна", школа Уникум. В 8 км г.Троицк. За считанные минуты вы сможете добраться до аэропорта Внуково, бизнес-парка "Румянцево", городам Апрелевка и Троицк, где имеется множество разнообразных инфраструктурных объектов.
Элементы положит. окружения
Поселок находится рядом с лесным массивом.
Хочу посмотреть