Дом, Академический к/п
Код: 397-607
Особенности объекта
Уникальное предложение!
Безупречный меблированный деревянный дом 400 кв.м на благоустроенном участке 15 соток в обжитом охраняемом поселке в Ватутинках. Качественно выстроенный дом представляет собой сруб из лафета карельской сосны, отшлифованного вручную. В доме продуманная планировка: 4 спальни, одна из которых на первом этаже, просторные ванные комнаты с тёплыми полами, светлая гостиная с камином и выходом на участок, бильярдная. Все помещения с панорамным остеклением, что придаёт дому легкость и естественность освещения. Дом полностью технически оснащен, использованы качественные материалы. В наполнении интерьера использованы как современные, так и антикварные предметы. Поселок расположен в непосредственной близости к городской инфраструктуре - в 5 минутах пешком Russian Desing District - жилой комплекс и культурно-образовательный кластер. Из самого поселка также есть собственный выход в лес и к реке Десна.
В непосредственной близости: школы, гимназии, детские сады, магазины, поликлиники, салоны красоты, химчистки, OZON, WB, автобусные остановки. В 2029 году запустят 2 ближайшие станции метро: "Ватутинки" и "Троицк".
Расположение
Ссылка на карту
Академический к/п (Ватутинки)
Калужское шоссе, от МКАД: 16 км, всего: 17 км
Тип застройки: обжитой к/п
Метро: Ольховая, Прокшино, Теплый стан; от 16 мин на авто
Дом
Общая площадь строений: 400 м2
Количество уровней: 2
Спален: 4. С/узлов: 4. Комнат всего: 7.
Опции: камин; машиномест крытых: 1, в т.ч. в теплом гараже: 1.
Материал стен: сруб из лафета (Карельская сосна 25 см)
Облицовка стен: брёвна отшлифованы вручную и покрыты маслом REMMERS и противопожарной пропиткой
Кровля: мягкая
Окна: стеклопакеты деревянные (панорамные)
Стадия готовности: меблирован
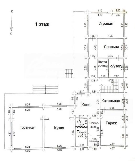
1-ый этаж: прихожая, гардеробная, кухня-столовая, гостиная с камином, гостевая спальня с санузлом, игровая комната (бильярдная), постирочная, гостевой санузел, котельная, гараж на 1м/м.
2-ой этаж: холл, мастер спальня с ванной комнатой, две детские спальни, санузел, кабинет.
Инженерное обеспечение: установлен газовый котел, конвекторы электрические MINiB, теплые полы во всех ванных комнатах и санузлах. Оборудована система фильтрации воды, газовая и пожарная сигнализация, охранная сигнализация Гольфстрим.
Мебель, оборудование: дом полностью обставлен качественной мебелью и оборудован всей необходимой техникой
Дополнительная информация о доме: фундамент ленточный, перекрытия дома деревянные
Участок
Площадь участка, соток: 15
Тип участка: с плодовыми деревьями
Благоустройство участка: на участке высажены плодовые деревья и декоративные цветущие кустарники, молодые туи вдоль забора
Дополнительная информация об участке: участок правильной формы, огорожен
Коммуникации
Газ: есть (магистральный)
Э/э: есть (12 кВт)
Водопровод: индивид. скважина
Канализация: автономная (станция биоочистки)
Интернет: есть (оптоволокно)
Охрана: есть (шлагбаум)
Описание инфраструктуры
Инфраструктура поселка Ватутинки, в 5 минутах ходьбы Russian Desing District - жилой комплекс и культурно-образовательный кластер В непосредственной близости: школы, гимназии, детские сады, магазины, поликлиники, салоны красоты, химчистки, OZON, WB, автобусные остановки. Для семейного активного отдыха: стадионы, хоккейные площадки, спортивный парк. Из самого поселка собственный выход в Ватутинский лесной массив и реке Десна. В 2029 году планируется запуск 2 ближайших станций метро: "Ватутинки" и "Троицк".
Хочу посмотретьПоделитесь с друзьями:
Похожие предложения:
Дом, Подолье КП (Шаганино), 457 м2, 16 сот
Варшавское шоссе, от МКАД: 24+6 км
Ольховая, Бунинская аллея - от 27 мин на автоДом, Подолье КП
Калужское ш., 25 км + 7 км
пл. участка: 16 сот
пл. дома: 457 м2
под ключ
Спален: 6. С/узлов: 3.


Дом, Гайд Парк к/п (Софьино), 453 м2, 15.3 сот
Варшавское шоссе, от МКАД: 24+10 км
Ольховая, Теплый стан - от 26 мин на автоДом, Гайд Парк к/п
Калужское ш., 25 км + 3 км
пл. участка: 15.3 сот
пл. дома: 453 м2
меблирован
Спален: 4. С/узлов: 2.

Дом, Чистые Ключи КП (Милюково), 375 м2, 15 сот
Саларьево, Рассказовка - от 15 мин на автоДом, Чистые Ключи КП
Киевское ш., 21 км + 5 км
пл. участка: 15 сот
пл. дома: 375 м2
меблирован
Спален: 5. С/узлов: 2.











