Дом, Академический к/п
Код: 397-908
Особенности объекта
Уютное шале с высокими потолками в уникальной локации!
В тихом месте в окружении творческой интеллигенции безупречный меблированный деревянный дом 467 кв.м включая террасы около 80 кв.м на благоустроенном участке 15 соток в обжитом охраняемом стародачном поселке "Академический". Сруб из лафета карельской сосны, отшлифованный вручную - светлый дом с панорамным остеклением с высокими потолками. В доме продуманная планировка: 4 спальни, одна из которых на первом этаже, просторные ванные комнаты с тёплыми полами, светлая гостиная с камином и выходом на участок, бильярдная. Все помещения с панорамным остеклением, что придаёт дому легкость и естественность освещения. Дом полностью технически оснащен, использованы качественные материалы. В наполнении интерьера использованы как современные, так и антикварные предметы. Рядом с поселком уникальная 100-летняя липовая аллея. Поселок расположен в непосредственной близости к городской инфраструктуре - в 5 минутах пешком Russian Desing District - жилой комплекс и культурно-спортивный образовательный кластер. Из самого поселка также есть собственный выход в лес и к реке Десна. В непосредственной близости: школы, гимназии, детские сады, магазины, поликлиники, салоны красоты, химчистки, OZON, WB, автобусные остановки. В 2029 году запустят 2 ближайшие станции метро: "Ватутинки" и "Троицк".
Расположение
Ссылка на карту
Академический к/п (Ватутинки)
Калужское шоссе, от МКАД: 16 км, всего: 17 км
Тип застройки: обжитой к/п
Метро: Ольховая, Прокшино, Теплый стан; от 16 мин на авто
Дом
Общая площадь строений: 467 м2
Год постройки дома: 2012
Количество уровней: 2
Спален: 4. С/узлов полных: 3. С/узлов неполных: 1. Комнат всего: 7.
Опции: терраса (открытая 78 кв.м); камин (Дровяной Contura (Швеция).); машиномест крытых: 1, в т.ч. в теплом гараже: 1.
Материал стен: сруб из лафета (Карельская сосна 25 см из лесов в окрестностях поселка Вытегра рядом с Онежским озером)
Цоколь отделан камнем.
Облицовка стен: брёвна отшлифованы вручную и покрыты маслом REMMERS 9премиальная немецкая марка) и противопожарной пропиткой
Кровля: мягкая (По периметру кровли установлена система антимолния. Металлические водосточные трубы.)
Окна: стеклопакеты деревянные (панорамные 2-х камерные из сосны)
Стадия готовности: меблирован (мебель известных европейских марок, а также антикварная)
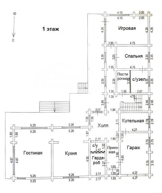
1-ый этаж: прихожая 8,7 кв.м, гардеробная 7 кв.м, холл 17,6 кв.м, лестничный холл 8,7 кв.м, кухня-столовая 35 кв.м, гостиная с камином 35 кв.м, коридор 11,2 кв.м, гостевая мастер спальня 16 кв.м с санузлом 9 кв.м, игровая комната (бильярдная) 26 кв.м, постирочная 6,6 кв.м, гостевой санузел 3 кв.м, котельная 12 кв.м, гараж на 1м/м 25 кв.м. Терраса по периметру дома 78,2 кв.м
2-ой этаж: холл 20 кв.м, мастер спальня 26,6 кв.м с ванной комнатой 8,5 кв.м, две детские спальни по 21,5 кв.м, санузел общий 11,7 кв.м, кабинет 11,7 кв.м.
Описание внутренней отделки: Стены преимущественно -сруб из лафета, на полу доска толщиной 4 см из лиственницы, в санузлах плитка из мрамора Perlino Blanco (Италия), в прихожей и гардеробной керамогранит (Италия).
Инженерное обеспечение: установлен газовый котел Viessmann Vitogas 100 на 60 кВт (Германия), бойлер ACV Smart (Бельгия). Радиаторы по дому Arbonia, а также внутрипольные конвекторы везде, где панорамные окна с принудительным обдувом и панелями регулировки температуры в помещениях на стенах MINiB, водяные теплые полы во всех санузлах. Премиальная сантехника в санузлах: ванны Villeroy-Boch (Германия), раковины: Heritage (Англия), туалеты Galassia (Италия), смесители AM PM (Германия). Розетки и выключатели -дизайнерские (фарфор, хром производства Италия). Медная электрическая проводка. Многоступенчатая очистка воды (США), газовая и пожарная сигнализация, охранная сигнализация Гольфстрим. Автоматические въездные ворота, а также автоматические гаражные ворота с подъемным механизмом.
Мебель, оборудование: На кухне гарнитур Arrex (Италия), большой остров 1*1,5м, столешница и фартук -искусственный камень. Вся встроенная техника SMEG (варочная газовая панель, духовой шкаф, вытяжка, посудомоечная машина), встроенный холодильник Liebherr. Стол и стулья коллекционные из массива ореха, ручной работы мастера из Венеции. Стол 3,5м*1,2м. В гостиной журнальный стол, буфет-комод, диван – антикварные отреставрированные, дуб, кожаный диван Baxter (Италия), диван из текстиля (Бельгия). Мебель в спальнях производства США. Люстры (хрусталь, латунь) и декор - Бельгия. На окнах премиальный текстиль Restoration Hardware. Дополнительный холодильник Bosсh, стиральная машина, винный шкаф Liebherr.
Декор -коллекция старинной русской утвари (утюги, самовары и т.д)
Дополнительные строения: Есть площадка под барбекю.
Дополнительная информация о доме: Двери из массива дуба. Удобная лестница: ступени, ограждения, перила -все дуб. Размеры ступеней: 110*29,5*17см. На веранде в 2025г полностью заменена террасная палубная доска (искусственный материал, не требующий ухода, долгого срока эксплуатации). Фундамент ленточный, перекрытия дома деревянные Дом построен по индивидуальному проекту московского архитектурного бюро.
Участок
Площадь участка, соток: 15
Тип участка: лесной
Благоустройство участка: на участке высажены плодовые деревья и декоративные цветущие кустарники, молодые туи вдоль забора
Статус земли: Земли населенных пунктов, для ведения гражданами садоводства и огородничества, для ведения дачного хозяйства
Дополнительная информация об участке: участок расположен в конце тупиковой улицы, тишина и спокойствие. На участке вековые хвойные и лиственные деревья, взрослые яблони, кусты смородины, крыжовника, жасмина, барбариса, а также туи, гортензии. Участок правильной формы, огорожен. Отмостка по периметру дома, а также площадка под стоянку авто выложена брусчаткой.
Коммуникации
Газ: есть (магистральный)
Э/э: есть (12 кВт)
Водопровод: индивид. скважина
Канализация: автономная (станция биоочистки не требующая откачки.)
Интернет: есть (оптоволокно)
Охрана: есть (шлагбаум)
Описание инфраструктуры
Инфраструктура поселка Ватутинки, в 5 минутах ходьбы Russian Desing District - жилой комплекс и культурно-образовательный кластер В непосредственной близости: школы, гимназии, детские сады, магазины, поликлиники, салоны красоты, химчистки, OZON, WB, автобусные остановки. Для семейного активного отдыха: стадионы, хоккейные площадки, спортивный парк. Из самого поселка собственный выход в Ватутинский лесной массив и реке Десна. В 2029 году планируется запуск 2 ближайших станций метро: "Ватутинки" и "Троицк".
Элементы положит. окружения
Стародачное место, объединяющее 3 легендарных поселка: Советский писатель, Комфорт и Академический. Окружение - творческие интеллигентные соседи, безопасность и тишина, близость инфраструктуры. Жителям доступны прогулочные зоны поселков, 100 летняя липовая аллея, выход в Ватутинский лесной массив и к реке Десна.
Хочу посмотретьПоделитесь с друзьями:
Похожие предложения:
Дом, Гайд Парк к/п (Софьино), 453 м2, 15.3 сот
Варшавское шоссе, от МКАД: 24+10 км
Ольховая, Теплый стан - от 26 мин на автоДом, Гайд Парк к/п
Калужское ш., 25 км + 3 км
пл. участка: 15.3 сот
пл. дома: 453 м2
меблирован
Спален: 4. С/узлов: 2.

Дом, Подмосковные вечера к/п (Рогозинино), 520 м2, 15 сот
Калужское шоссе, от МКАД: 17+11 км
Саларьево, Рассказовка - от 19 мин на автоДом, Подмосковные вечера к/п
Киевское ш., 21 км + 4 км
пл. участка: 15 сот
пл. дома: 520 м2
меблирован
Спален: 5. С/узлов: 3.
Дом, Власово КП, 495 м2, 15.5 сот
Минское шоссе, от МКАД: 22+5 км
Крёкшино, Рассказовка - от 16 мин пешкомДом, Власово КП
Киевское ш., 21 км + 2 км
пл. участка: 15.5 сот
пл. дома: 495 м2
меблирован
Спален: 4. С/узлов: 3.

Дом, Ильичевка к/п (Ильичевка), 528 м2, 15 сот
Киевское шоссе, от МКАД: 21+10 км
Крёкшино, Ольховая - от 24 мин на автоДом, Ильичевка к/п
Калужское ш., 17 км + 5 км
пл. участка: 15 сот
пл. дома: 528 м2
меблирован
Спален: 5. С/узлов: 5.
















