Дом, Александровы пруды КП
Код: 518-927
Особенности объекта
Возможна семейная ипотека! Лидер продаж! Один из самых популярных и востребованных проектов за последние годы! Новый современный, качественно построенный дом в КП Александровы пруды. Функциональная планировка - 4 спальни, одна из которых на первом этаже. Проект, симпатичный снаружи, с хорошими видовыми характеристиками, на участке правильной формы. Охраняемый коттеджный поселок с отличной зоной отдыха с большим озером и обустроенной набережной, тихое живописное место. Московская прописка.
Расположение
Ссылка на карту
Александровы пруды КП
Калужское шоссе, от МКАД: 25 км, всего: 38 км
Варшавское шоссе, от МКАД: 24 км, всего: 30 км
Тип застройки: формирующийся к/п
Метро: Подольск, Ольховая, Теплый стан; от 26 мин на авто
Коттеджный поселок «Александровы Пруды»
Дом
Общая площадь строений: 230 м2
Год постройки дома: 2023
Количество уровней: 2
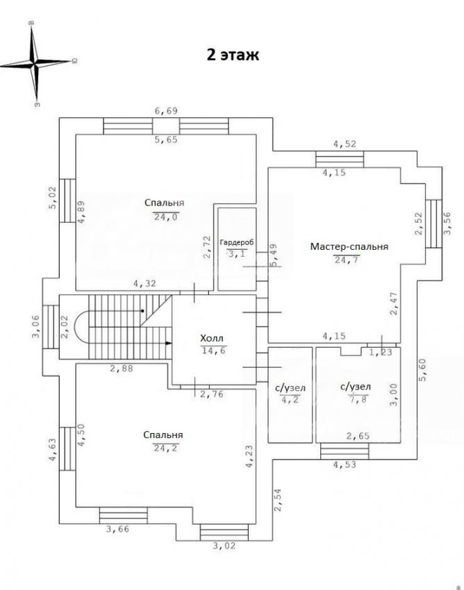
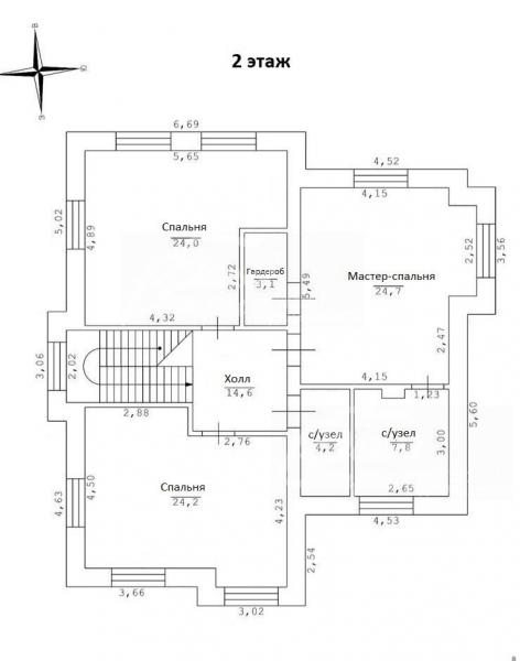
Спален: 4. С/узлов: 3. Комнат всего: 5.
Опции: терраса (крытая).
Материал стен: поризованный керамический блок (Гжельский завод) - толщ.380 мм
Облицовка стен: облицовочный кирпич Braer - толщ.120 мм
Кровля: металлочерепица Grand Line (водостоки пластиковые)
Окна: стеклопакеты ПВХ (двухкамерные Brusbox Aero)
Стадия готовности: под чистовую отделку (White box)
1-ый этаж: крыльцо; холл - бойлерная/постирочная 14.5 кв.м, санузел 3.6 кв.м, гостиная 41 кв.м, кухня-столовая 25.7 кв.м с выходом на террасу 17 кв.м, спальня 14 кв.м
2-ой этаж: холл 14.6 кв.м, спальня 24 кв.м с гардеробной 3 кв.м, спальня 24 кв.м, санузел 4 кв.м, мастер-спальня 24.7 кв.м с санузлом 8 кв.м
Описание внутренней отделки: отделка White box: стены оштукатурены, полы бетонные. Потолок 2го этажа - бетонный монолит. Лестница бетонная шириной 86 см
Инженерное обеспечение: заведены вода, электричество и газ, электрика разведена до точек. В котельной установлен котёл Viessmann Vitopend 100.
Дополнительная информация о доме: дом в стиле современной классики. Фундамент - монолитная плита армированная 40 см, перекрытия монолитные между 1м и 2м этажами, на чердаке пол деревянный + утеплитель 20см (каменная вата Роквул).
Участок
Площадь участка, соток: 7.5
Тип участка: поле
Благоустройство участка: участок выровнен, установлен забор: профильный по периметру, лицевая сторона на кирпичных столбах, с откатными воротами. Организованы бетонные площадка под парковку 1 авто, отмостка и дорожки, устроен дренаж.
Статус земли: земли населённых пунктов, для дачного строительства
Дополнительная информация об участке: вторая линия от леса
Коммуникации
Газ: есть (магистральный)
Э/э: есть (8 кВт)
Водопровод: индивид. скважина
Канализация: автономная (септик)
Интернет: возможно подключение (оптоволокно)
Охрана: есть (2 КПП, патрулирование)
Описание инфраструктуры
В поселке «Александровы пруды» созданы идеальные условия для комфортной и цивилизованной загородной жизни: благоустроенные береговые линии с беседками и площадками для барбекю, спортивные площадки, зоны отдыха с открытыми беседками, пешеходные дорожки, возможность покататься на лодке, рыбалка, прогулки за грибами в соседний лес. Освященный родник в дер.Александрово. Детский центр развития ребенка. Поблизости находится г. Подольск и п.Щапово с богатой городской инфраструктурой.
Хочу посмотретьПоделитесь с друзьями:
Похожие предложения:
Дом, Крекшино Вайт Вилладж , 210 м2, 6 сот
Киевское шоссе, от МКАД: 22+4 км
Санино - от 7 мин на автоДом, Крекшино Вайт Вилладж
Минское ш., 22 км + 4 км
пл. участка: 6 сот
пл. дома: 210 м2
под отделку
Спален: 4. С/узлов: 3.
Дом, Бородино Вилладж, 252 м2, 8.54 сот
Симферопольское шоссе, от МКАД: 26+4 км
Подольск - от 23 мин на автоДом, Бородино Вилладж
Варшавское ш., 24 км + 4 км
пл. участка: 8.54 сот
пл. дома: 252 м2
под отделку
Спален: 5. С/узлов: 3.

Дом, Бородино Вилладж, 252 м2, 9.23 сот
Симферопольское шоссе, от МКАД: 26+4 км
Подольск - от 23 мин на автоДом, Бородино Вилладж
Варшавское ш., 24 км + 4 км
пл. участка: 9.23 сот
пл. дома: 252 м2
под отделку
Спален: 5. С/узлов: 3.

Дом, Зеленые холмы к/п (Першино), 232 м2, 7.2 сот
Филатов луг, Рассказовка - от 23 мин на автоДом, Зеленые холмы к/п
Киевское ш., 21 км + 4 км
пл. участка: 7.2 сот
пл. дома: 232 м2
коробка
Спален: 4. С/узлов: 3.
Дом, Крекшино Вайт Вилладж , 230 м2, 6 сот
Киевское шоссе, от МКАД: 22+4 км
Санино - от 7 мин на автоДом, Крекшино Вайт Вилладж
Минское ш., 22 км + 4 км
пл. участка: 6 сот
пл. дома: 230 м2
под отделку
Спален: 4. С/узлов: 3.



















