Продажа дачи, коттеджа, дома на Киевском, Калужском шоссе — цена, описание, фото, расположение на карте.

Дом, Бельгийское предместье к/п

Снят с реализации

Код: 308-807

Особенности объекта

Готовый коттедж со свободной планировкой, предполагается 6 спален. Натуральный керамический облицовочный бельгийский кирпич, немецкая натуральная черепица. Центральные коммуникации. Газ в дом заведен, установлен котел Vaillant (Германия), 15 кВт электричества, выход к реке и перелеску. Поселок полностью застроен, в одном стиле - стиле старинной Европы. Удобное расположение между Калужским и Киевским шоссе всего в 7 км от МКАД

Расположение

Ссылка на карту
Бельгийское предместье к/п (Летово)
Калужское шоссе, от МКАД: 7 км, всего: 9 км
Киевское шоссе, от МКАД: 7 км, всего: 14 км
Тип застройки: сформированный к/п
Метро: Прокшино, Теплый стан, Филатов луг; от 10 мин на авто
Коттеджный поселок «Бельгийское Предместье»

Дом

Общая площадь строений: 529 м2
Год постройки дома: 2011
Количество уровней: 4
Спален: 6. С/узлов: 4. Комнат всего: 8.
Опции: терраса; машиномест крытых: 2, в т.ч. в теплом гараже: 2; возможно оборудовать камин, сауну.
Материал стен: монолитный ж/б каркас заложен кирпичом+утеплитель 50 мм
Облицовка стен: натуральный керамический облицовочный кирпич (Бельгия)
Кровля: натуральная черепица
Окна: стеклопакеты ПВХ (Rehau Blitz 2-х камерные, ламинированные под дерево)
Стадия готовности: под отделку (со свободной планировкой)
Цоколь: Помещение свободного назначения 109.5 кв.м
1-ый этаж: Предполагаемая планировка: крыльцо 11.5 кв.м, тамбур, прихожая 10 кв.м, холл 7 кв.м, гостиная 24.6 кв.м со вторым светом, столовая 20 кв.м, кухня 24 кв.м с выходом на террасу 20 кв.м, с/узел 5 кв.м, спальня 15.5 кв.м, гараж 47 кв.м, бойлерная 8 кв.м с выходом на улицу
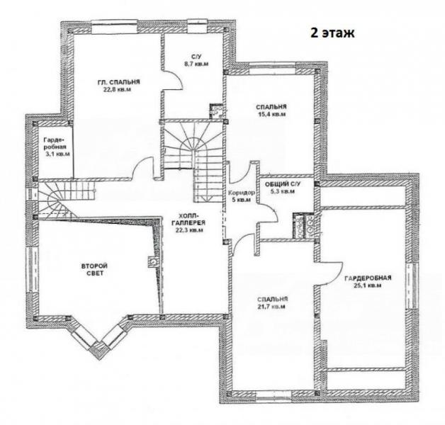
2-ой этаж: Предполагаемая планировка: холл-галерея 22 кв.м, Главная спальня 23 кв.м с с/узлом 9 кв.м и гардеробной, спальня 15.5 кв.м, спальня 22 кв.м с гардеробной 25 кв.м, с/узел 5 кв.м
3-ий этаж: Предполагаемая планировка: игровая 52 кв.м, спальня 28 кв.м, с/узел 5 кв.м. Большая площадь под кладовые - около 25 кв.м
Описание внутренней отделки: без внутренней отделки, сделан тепловой контур, вставлены окна, утеплена крыша, временная деревянная лестница
Инженерное обеспечение: газ заведен в дом, подключен газовый котел Vaillant (Германия), вентиляция естественная приточно-вытяжная, счетчики воды и электричества
Дополнительная информация о доме: Бельгийский старогородской стиль. Фундамент дома ж/б монолитный ленточный, ж/б монолитные перекрытия, высота потолков 3 метра.

Участок

Площадь участка, соток: 19
Тип участка: с выходом к реке
Благоустройство участка: вокруг дома сделан дренаж
Статус земли: земли населенных пунктов, для дачного строительства
Дополнительная информация об участке: участок прямоугольный двухуровневый и имеет уклон к реке, по фасаду установлены кирпичные столбы на бетонном цоколе, по периметру металлические столбы на бетонном цоколе.

Коммуникации

Газ: есть (магистральный)
Э/э: есть (15 кВт)
Водопровод: центральный
Канализация: централизованная
Телефон: возможно подключение (МГТС)
Интернет: возможно подключение (оптиковолокно, спутниковое ТВ)
Охрана: есть (строгая, КПП, патрулирование)

Описание инфраструктуры

В 1-2 км дер.Летово (церковь, тенисный центр, Международная школа «Летово») и в 5км г. Московский (вся городская инфраструктура).

Элементы положит. окружения

Участок имеет свой выход к реке Сосенке, лесной массив в 500 метрах, тихое красивое место.

Хочу посмотреть


Поделитесь с друзьями:

Собираетесь купить дом, дачу или коттедж на Калужском или Киевском направлении? Обязательно воспользуйтесь услугами компании «Белые Ветры», старейшего оператора загородной недвижимости на Юго-западе Подмосковья!
Рейтинг@Mail.ru