Дом, Бурцево КП
Код: 231-610
Особенности объекта
Новый дом в скандинавском стиле 350 кв.м с дизайнерской отделкой под ключ! Охраняемый поселок бизнес класса "Бурцево" со всеми центральными коммуникациями в окружении леса и озера. В отделке дома использованы натуральные материалы, индивидуальный дизайнерский подход ко всем деталям интерьера. В доме кухня-гостиная со вторым светом, 5 спален, каждая со своим санузлом, кабинет, сауна с комнатой отдыха или тренажерным залом, высокие потолки, панорамные окна. Участок 20 соток с ландшафтным дизайном, автополивом. На участке площадка для костра/барбекю, навес на 3 авто. ИЖС, московская прописка. Удобная близость от Москвы и станций метро.
Расположение
Ссылка на карту
Бурцево КП (Бурцево)
Киевское шоссе, от МКАД: 14 км, всего: 15 км
Тип застройки: сформированный к/п
Метро: Филатов луг, Аэропорт Внуково, Саларьево; от 18 мин на авто
Дом
Общая площадь строений: 350 м2
Год постройки дома: 2024
Количество уровней: 2
Спален: 5. С/узлов: 6. Комнат всего: 7.
Опции: сауна; терраса; камин; холодный подвал; машиномест крытых: 3.
Материал стен: канадская технология (каркас) с утеплением, вентилируемый фасад –лиственница
Облицовка стен: планкен из термолиственницы
Окна: стеклопакеты алюминиевые (2-х камерные ALUTECH, панорамные)
Стадия готовности: под ключ (с установленным кухонным гарнитуром)
Цоколь: Подвальное помещение ок 30 кв.м для хранения.
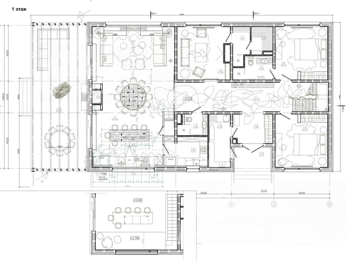
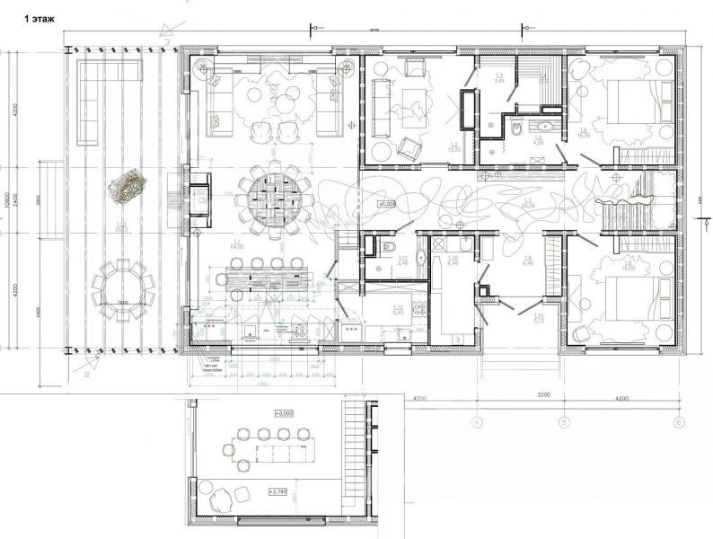
1-ый этаж: крыльцо 5 кв.м, прихожая 6.5 кв.м, холл 25 кв.м, гардеробная 6.5 кв.м, гостевой санузел 4.6 кв.м, двухсветная кухня-столовая-гостиная 65 кв.м, с камином и выходом на террасу 55 кв.м, спальня/кабинет 16 кв.м, СПА-зона: сауна 7 кв.м, санузел 4.6 кв.м, комната отдыха 15.5 кв.м, тренажерный зал 16 кв.м; постирочная 6.5 кв.м, котельная
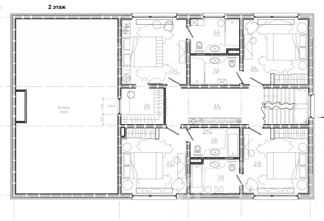
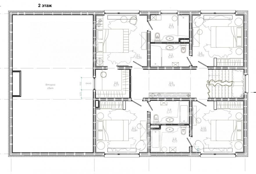
2-ой этаж: холл 19 кв.м, две спальни по 16 кв.м с ванными комнатами по 5.5 кв.м, две спальни по 15.5 кв.м с ванными комнатами по 6 кв.м, общая гардеробная 5.8 кв.м
Описание внутренней отделки: качественные натуральные материалы. Стены - покраска, декоративная штукатурка, сланец, кварц. Полы на 1-ом этаже - микроцемент (теплые водяные), 2-ой этаж - инженерная доска (дуб 20 мм); в санузлах - сланец, галька, микроцемент (теплые водяные). Потолки - водоэмульсионная краска, тонированная вагонка.
Двери - невидимки под покраску UNION, дверные ручки DEO (матовый хром); входные в гостиную и в СПА - раздвижные амбарные (дуб 100летний) по индивидуальному проекту. Лестница - дуб, ковка по индивидуальному проекту из старинного дуба. Покрытие террасы - доски старинного дуба. Ступени и терраса из камня базальт толщиной 2 см.
Инженерное обеспечение: котел VIESSMAN, система увлажнения UNIVERSE BOSON. Установлены конвекторы и радиаторы ARBONIA, ZENDER, внутрипольные конвекторы, где панорамные окна.
Кондиционирование - мульти-сплит система HISENSE, 6 штук. Розетки LEGRAN CELIAN. Электрическая печь в сауне TYLO.
Мебель, оборудование: кухня GIULIA NOVARS, встроенная техника KUPPERSBUSCH (духовой шкаф, варочная панель, посудомоечная машина), вытяжка Elica, холодильник LIEBHERR. Зеркала из массива тика TEAK HOUSE, CIELO ARCADIA PLUTO. Консоли в коридорах, консоль под телевизор и основания светильников в гостиной, стол в столовой из старого дуба с черной тонировкой, столешница барной стойки на кухне - массив дуба, индивидуальный проект.
Люстра в гостиной – дизайнерская индивидуальный проект.
Сантехника DURAVIT. Смесители CARLO FRATTINI SPILLO UP. Ванные BETTE OCEAN. Душевые лотки VIEGA ADVANTIX VARIO. Полотенцесушители электрические MARGAROLI SERENO.
Дополнительные строения: - Беседка-барбекю (базальт, термодерево), светильники CENTRSVET LOCUS, площадка для костра/барбекю.
- Навес на 3 машиномета - термодерево, светильники CENTRSVET LOCUS
Дополнительная информация о доме: высота потолков: 1 этаж - в спальнях гипсокартон 2.9 м,
в гостиной 5.6 - 7.6 м; 2 этаж – 2.3 - 4 м.
Участок
Площадь участка, соток: 20.04
Тип участка: с деревьями и ландшафтом
Благоустройство участка: на участке выполнен ландшафтный дизайн, дренаж, установлена система автополива - бак на 3000л, освещение CENTRSVET GARDEN REEDS. Высажены плодовые деревья: яблони, вишня, рябина.
Статус земли: Земли населенных пунктов. ИЖС
Дополнительная информация об участке: забор - проф. лист на бетонном основании
Коммуникации
Газ: есть (магистральный (Межрегионгаз))
Э/э: есть (15 кВт)
Водопровод: индивид. скважина
Канализация: централизованная
Интернет: есть (оптоволокно)
Охрана: есть (КПП оборудовано видеонаблюдением и автоматическими воротами (открытие с телефона))
Описание инфраструктуры
Инфраструктура поселка городского типа Внуково
Хочу посмотретьПоделитесь с друзьями:
Похожие предложения:
Дом, Чистые Ключи КП (Милюково), 330 м2, 16 сот
Саларьево, Рассказовка - от 15 мин на автоДом, Чистые Ключи КП
Киевское ш., 21 км + 5 км
пл. участка: 16 сот
пл. дома: 330 м2
меблирован
Спален: 5. С/узлов: 3.
Дом, Высота к/п (Ботаково), 370 м2, 21 сот
Киевское шоссе, от МКАД: 21+9 км
Ольховая, Теплый стан - от 18 мин на автоДом, Высота к/п
Калужское ш., 17 км + 2 км
пл. участка: 21 сот
пл. дома: 370 м2
меблирован
Спален: 4. С/узлов: 3.



Дом, Мирный кп (Елизарово), 300 м2, 20 сот
Калужское шоссе, от МКАД: 17+20 км
Саларьево, Ольховая - от 21 мин на автоДом, Мирный кп
Киевское ш., 21 км + 8 км
пл. участка: 20 сот
пл. дома: 300 м2
меблирован
Спален: 5. С/узлов: 2.


Дом, Графские пруды КП (Каменка), 390 м2, 25 сот
Крёкшино, Рассказовка - от 31 мин на автоДом, Графские пруды КП
Киевское ш., 21 км + 7 км
пл. участка: 25 сот
пл. дома: 390 м2
меблирован
Спален: 4. С/узлов: 3.
















