Продажа дачи, коттеджа, дома на Киевском, Калужском шоссе — цена, описание, фото, расположение на карте.

Дом, Бунин Парк КП

29 900 000
369 075 $
318 326 €

Код: 387-212

Особенности объекта

Готовность внутренней отделки и благоустройства участка октябрь 2025. Новый дом под ключ с центральными коммуникациями в охраняемом коттеджом поселке Бунин парк. Функциональная планировка: 5 спален (одна спальня на 1-ом этаже), объединенное пространство кухни, столовой и гостиной. Высокое качество строительства и отделочных материалов. Рядом вся инфраструктура, остановка общественного транспорта в 600 м, до метро 10 минут на машине. Низкие коммунальные платежи.

Расположение

Ссылка на карту
Бунин Парк КП (Столбово)
Калужское шоссе, от МКАД: 8 км, всего: 12 км
Тип застройки: обжитой к/п
Метро: Бунинская аллея, Ольховая, Теплый стан; от 6 мин на авто
Коттеджный поселок «Бунин Парк»

Дом

Общая площадь строений: 148 м2
Год постройки дома: 2025
Количество уровней: 3
Спален: 5. С/узлов: 2. Комнат всего: 6.
Материал стен: газобетон
Облицовка стен: штукатурка
Кровля: мягкая (SHINGLAS, пластиковая водосточная система)
Окна: стеклопакеты ПВХ (REHAU, 2-камерные)
Стадия готовности: под ключ
1-ый этаж: прихожая 4 кв м, санузел 9,7 кв.м, кухня-столовая-гостиная 22,8 кв м с выходом на задний двор, спальня 13.5 кв.м.
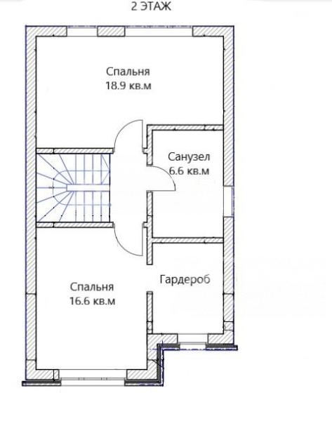
2-ой этаж: спальня 18,9 кв м с гардеробной, спальня 16,6 кв.м, санузел 6.6 кв м.
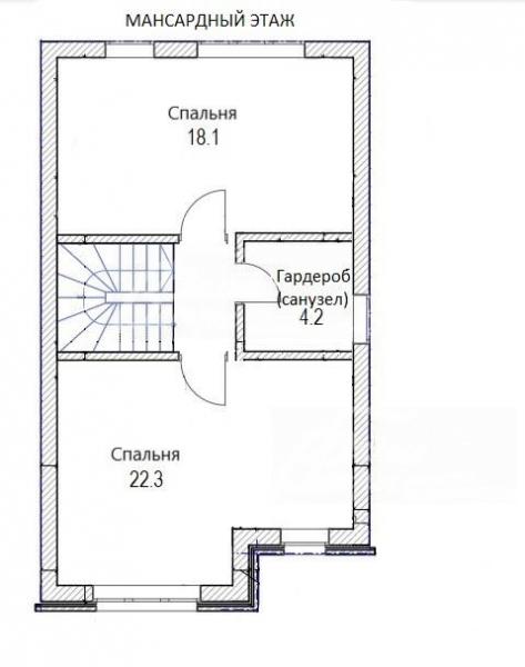
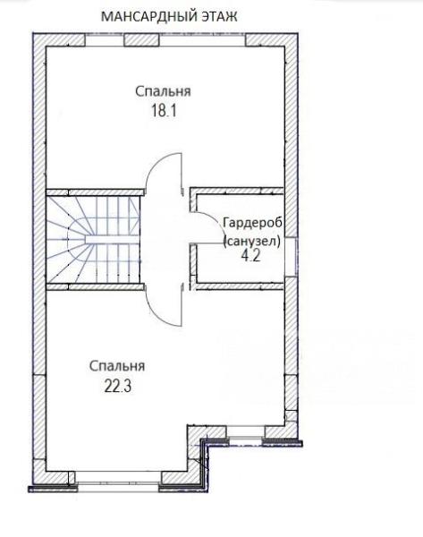
3-ий этаж: холл 2,4 кв.м, спальня 18,1 кв.м, спальня 22,3 кв.м, гардеробная (возможно переделать в санузел, трубы подведены) 4,2 кв.м.
Описание внутренней отделки: на стенах поклеены обои флизелиновые, зарубежные. Разведен водяной теплый пол, отделка пола - качественный ламинат на 1 этаже, в санузлах - керамогранит Kerama marazzi. Лестница на монолитном основании шириной 1 метр, ступени отделаны керамогранитом Kerama marazzi, ограждение - ковка. Натяжные потолки. Установлена сантехника: ванная Reimar, раковина Sanita Luxe, инсталляции Grohe. Установлены радиаторы Kermi. Деревянные межкомнатные двери, производитель ALBERO.
Инженерное обеспечение: Электрический котел
Мебель, оборудование: Оборудованы санузлы
Дополнительная информация о доме: дом выполнен в классическом стиле. Фундамент - плита монолитная 30 см (установлена на песчаной подушке 1 м), ж/б плиты перекрытия. Высота потолков: 1 этаж - 2.9 м, 2 этаж - 2.6 м, 3 этаж - от 1.2 м до 2.6 м.

Участок

Площадь участка, соток: 3.13
Тип участка: без деревьев
Благоустройство участка: Участок выровнен, засеян газон, выложены дорожки и парковочная зона в брусчатке
Статус земли: земли населенных пунктов для ИЖС
Дополнительная информация об участке: участок находится в центре поселка и огорожен по периметру металлическим забором.

Коммуникации

Газ: есть (магистральный, в процессе подключения)
Э/э: есть (15 кв, прямой договор с мосэнерго)
Водопровод: центральный
Канализация: централизованная
Интернет: есть (оптоволокно)
Охрана: есть (КПП, видеонаблюдение по поселку)

Описание инфраструктуры

Рядом с поселком расположена остановка общественного транспорта, а у самого КПП остановка маршруток "нам по пути". Вблизи поселок Воскресенское, Потапово и мкр. Южное Бутово с полноценной развитой городской инфраструктурой: частные и муниципальные школы и детские сады расположены в 1 км от поселка. ТЦ Потапово, Арус-П, Бунинская аллея, Бутово Молл, МЕГА Теплый стан. Филиал № 4 ТГБ ДЗМ, Филиал № 3 ТГБ ДЗМ, Филиал Газпром Трансгаз Москва центр диагностики и реабилитации, Поликлиника № 121, филиал № 6, Детская городская поликлиника № 118, филиал № 2. Для прогулок парк Воскресенский, детский ландшафтный парк Южное Бутово.

Хочу посмотреть


Поделитесь с друзьями:

Собираетесь купить дом, дачу или коттедж на Калужском или Киевском направлении? Обязательно воспользуйтесь услугами компании «Белые Ветры», старейшего оператора загородной недвижимости на Юго-западе Подмосковья!
Рейтинг@Mail.ru