Дом, Дубровка ЖК
Код: 108-455
Особенности объекта
Фундаментальный дом оригинально спроектирован в уникальном элитном поселке с собственной богатой инфраструктурой (супермаркет, фитнес-центр, бассейн, кафе-рестораны, СПА-салон, парково-прогулочная зона, т.д.).
Расположение
Ссылка на карту
Дубровка ЖК (Сосенки)
Калужское шоссе, от МКАД: 5 км, всего: 6 км
Тип застройки: сформированный к/п
Метро: Ольховая, Теплый стан, Прокшино; от 15 мин пешком
Жилой комплекс «Дубровка»
Дом
Общая площадь строений: 940 м2
Год постройки дома: 2009
Количество уровней: 4
Спален: 8. С/узлов: 8. Комнат всего: 14.
Опции: сауна; терраса; камин; машиномест крытых: 2, в т.ч. в теплом гараже: 2; винный погреб, тренажерный зал.
Материал стен: кирпич + утеплитель
Облицовка стен: полимерная колерованная штукатурка
Кровля: мягкая
Окна: стеклопакеты ПВХ (двухкамерные)
Стадия готовности: под отделку
Цоколь: Помещения свободного назначения, предполагается — тренажерный зал, винный погреб, сауна, комната отдыха, кладовые, санузел, хозяйственные помещения. Общая площадь цоколя 316.5 кв.м;
1-ый этаж: гараж 45 кв.м (на два автомобиля), прихожая с окном 28 кв.м, санузел 9 кв.м, кабинет/жилая комната 21 кв.м, кухня 23 кв.м, столовая 30 кв.м, двухсветная гостиная 42 кв.м с выходом на веранду 20 кв.м, каминный зал 64 кв.м, котельная. Всего 1этаж — 296 кв.м;
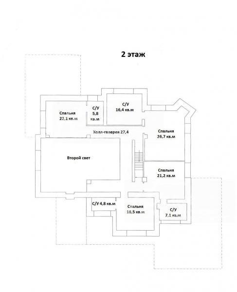
2-ой этаж: три спальни 22 кв.м, 30 кв.м и 24 кв.м, каждая с собственными вместительными санузлами. Всего 2й этаж — 167 кв.м;
3-ий этаж: Свободная планировка ~ 200 кв.м
Описание внутренней отделки: стены воровнены и оштукатурены, сделана черновая стяжка пола, сделаны теплые полы в санузлах, установлен ж/б лестничный марш. Тепловой контур разведен по дому. Установлена металлическая входная дверь
Инженерное обеспечение: установлены 2 котла и бойлер на 200 л Buderus G 234 LOGAN; естественная приточно-вытяжная вентиляция
Дополнительная информация о доме: фундамент ленточный монолит, преекрытия ж/б плиты + монолит; архитектурный стиль: современная классика;
Участок
Площадь участка, соток: 33
Тип участка: поле
Благоустройство участка: участок выровнен
Дополнительная информация об участке: участок расположен в середине первой улицы поселка, имеет ораждение по периметру;
Коммуникации
Газ: есть (магистральный)
Э/э: есть (15 кВт)
Водопровод: центральный
Канализация: централизованная
Телефон: возможно подключение
Интернет: возможно подключение
Охрана: есть (безопасность жилого комплекса обеспечивается круглосуточным патрулированием службой вневедомственной охраны и сотрудниками контроля доступа, а так же пропускным режимом и современной системой видеонаблюдения)
Описание инфраструктуры
Охраняемый жилой комплекс с гостевой парковкой. На въезде большой фитнес-центр Дубровка с бассейном, СПА-зоной, салоном красоты и тренажерным залом. При въезде расположены три супермаркета один из них «Перекресток», «Азбука Вкуса», «Пятерочка». Торговый центр «Уютный дом», кулинария, банк, аптека, 3 ресторана: SomeMeat, Florentini, Чё Хотели Пили Ели, кафе Таверна и Вкусно и Точка, ветеринарная клиника, банкоматы, Дом быта, шиномонтаж, зоомагазин, офис нотариуса. Для детей жилого комплекса Дубровка работают: семейный центр и детский сад «Радость» со спортивными и творческими секциями. Частная школа Tower Bridge School (от 4 до 11 лет), где есть группа раннего развития, подготовка к школе, начальная школа и дополнительные занятия (творчество, живопись, иностранные языки и спортивные секции). Частная школа «СО-Знание Дубровка» для детей 0-11 классов, частная школа с начальными классами (1-4 класс) Эволуччи. На территории поселка благоустроена лесная прогулочная зона, места с беседками для барбекю, беловые и велосипедные дорожки, есть мини-зоопарк. Действуют пункты выдачи заказов Ozon и Яндекс Маркет, Wildberries, Сдек. Православный Храм в 10 минутах пешком. В 10 минутах пешком метро Ольховая. В 10 минутах на машине частная школа Летово (с 7 по 11 класс), теннисный клуб Теннис.ру, городская инфраструктура поселков Коммунарка, Воскресенское, Николо-Хованское (поликлиники, больницы, десткие сады и школы, торговые комплексы, рестораны, фитнес клубы, банки, Мои документы и др.)
Элементы положит. окружения
соседние коттеджи высокого уровня, развитая инфраструктура в поселке, близость к Москве, тихое место
Хочу посмотретьПоделитесь с друзьями:
|
|
|