Дом, Искра к/п
Код: 134-333
Особенности объекта
Комфортный дом по оригинальному проекту (в английском стиле) с дизайнерским интерьером на прекрасном участке с многомерными липами и березами, со всеми коммуникациями. Коттеджный поселок со спортивной и детской площадками. Стародачное место. Рядом лес, озеро. Поселок в тишине в окружении шикарного леса. Отличная дорога и транспортная доступность: в 1 км от КПП поворот на поселок прямо через развязку на Калужском шоссе - до МКАД 10-15 минут на авто, до 2028 года рядом будут построены и запущены 2 станции метро - Ватутинки (1км от поселка) и Троицк.
Расположение
Ссылка на карту
Искра к/п (Ватутинки)
Калужское шоссе, от МКАД: 16 км, всего: 17 км
Тип застройки: стародачное место
Метро: Ольховая, Теплый стан, Бунинская аллея; от 12 мин на авто
Коттеджный поселок «Искра (Ватутинки)»
Дом
Общая площадь строений: 314 м2 (дом 290 кв.м + домик персонала 24 кв.м)
Количество уровней: 3
Спален: 4. С/узлов: 5. Комнат всего: 8.
Опции: сауна; квартира для персонала; терраса; камин; машиномест крытых: 3.
Материал стен: пеноблок + утеплитель
Облицовка стен: штукатурка, клинкерная плитка
Кровля: мягкая (Финляндия)
Окна: стеклопакеты деревянные (двухкамерные с противомоскитными сетками)
Стадия готовности: меблирован
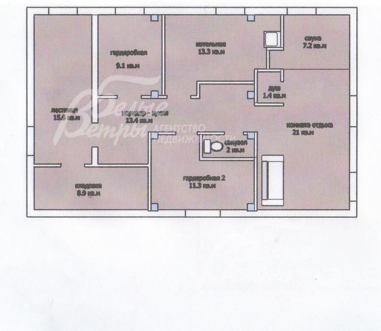
Цоколь: зона сауны с парной, комнатой отдыха 21 кв.м и душевой, спальня для персонала 11.3 кв.м, холодная кладовая 8.9 кв.м, гардеробная 9.1 кв.м, санузел, котельная-постирочная 13.3 кв.м.
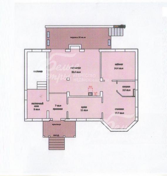
1-ый этаж: прихожая 7 кв.м, кухня 11 кв.м, столовая с эркером 17.7 кв.м, гостиная 32.4 кв.м с выходом на террасу 20 кв.м, кабинет 14.4 кв.м, санузел 3.5 кв.м.
2-ой этаж: холл, три спальни со своими санузлами: спальня 18 кв.м с санузлом 3 кв.м, спальня 16 кв.м с санузлом 3 кв.м, спальня 17 кв.м с санузлом 8 кв.м
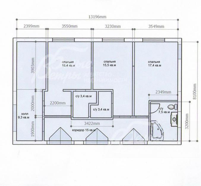
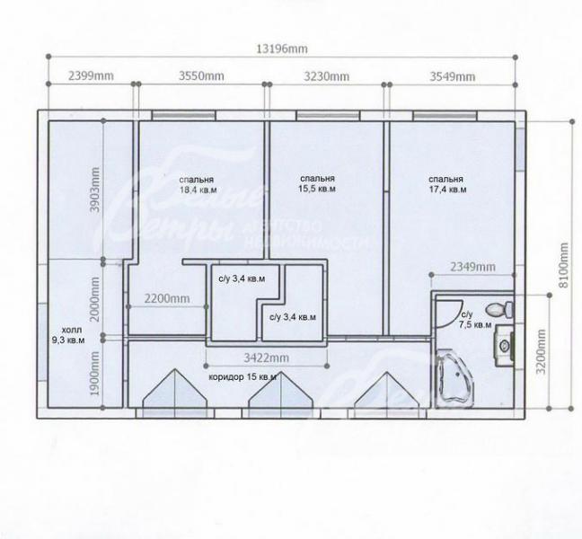
3-ий этаж: холл, три спальни со своими санузлами: спальня 18.4 кв.м с санузлом 3.4 кв.м, спальня 15.5 кв.м с санузлом 3.4 кв.м, спальня 17.4 кв.м с санузлом 7.5 кв.м.
Описание внутренней отделки: выполнена стильная отделка качественными материалами. Стены выровнены и покрашены (гостиная, спальни - обои, пр-во Франция, в т.ч. дорогие - бумажные). Полы: весь цоколь + 1-ый этаж, кроме кабинета - кафель с водяным подогревом; спальни - ламинат. Лестница из лиственницы, ширина - 1,1 м. Подвесные многоуровневые потолки, лепнина на карнизах (гипс). Установлена импортная сантехника (Германия, Италия). Все коммуникации разведены, розетки Legrand. Межкомнатные двери шпонированные - на втором этаже и в цоколе; на первом этаже - из массива канадского дуба. В доме выполнена дизайнерская отделка интерьера (в английском стиле).
Инженерное обеспечение: установлены котел Vitogas 40 кВт, бойлер Smart 250 л; система очистки питьевой воды. Центральная принудительная система вентиляции. Установлены счетчики воды и электричества; домофон. По дому и участку работает Wi-Fi.
Мебель, оборудование: дом полностью меблирован. Гостиная и кухня обставлены мебелью Ikea + Красногорская мебельная фабрика.
Дополнительные строения: .
- Дом для персонала 24 кв.м: комната, кухня, санузел. В дом заведены: газ, вода, канализация, есть котел.
- Терраса 7х7 м на цоколе с бетонной брусчаткой, с подведенными водой и электричеством.
Дополнительная информация о доме: дом с ж/б фундаментом и ж/б перекрытиями с дизайнерской отделкой и интерьером в английском стиле. Высота потолков: цокольный этаж - 2,33 м, 1-ый этаж - 2,83 м, мансардный этаж - до 2,87 м.
Участок
Площадь участка, соток: 13
Тип участка: с деревьями и ландшафтом
Благоустройство участка: участок с вековыми березами, с выполненным ландшафтным дизайном: высажено более 30 хвойных деревьев, фруктовый сад, устроен газон и многоуровневый "французский" огород, проложены дорожки; сделан дренаж вокруг дома. Площадка для барбекю 64 кв.м с подведенными водопроводом и канализацией.
Статус земли: земли поселений, для садоводства
Дополнительная информация об участке: участок ровный, прямоугольной формы, расположенный в центре поселка и огороженный по фасаду металлическим забором высотой 2 м, по остальному периметру - деревянным забором высотой 1.5 м
Коммуникации
Газ: есть (магистральный)
Э/э: есть (15 кВт)
Водопровод: центральный
Канализация: централизованная (+ септик)
Телефон: есть (МГТС)
Интернет: есть (оптоволокно, Wi-Fi)
Описание инфраструктуры
Спортивная и детская площадки в поселке, полная городская инфраструктура поселка Ватутинки (школа, десткий сад, магазины, аптека и т.д.). В 2025 г в одном километре от поселка будет построена станция метро Ватутинки.
Хочу посмотретьПоделитесь с друзьями:
Похожие предложения:
Дом, Александровы пруды КП, 260 м2, 12 сот
Варшавское шоссе, от МКАД: 24+6 км
Подольск, Ольховая - от 26 мин на автоДом, Александровы пруды КП
Калужское ш., 25 км + 13 км
пл. участка: 12 сот
пл. дома: 260 м2
меблирован
Спален: 4. С/узлов: 2.
Дом, Лаптево КП, 370 м2, 14.5 сот
Ольховая, Бунинская аллея - от 12 мин на автоДом, Лаптево КП
Калужское ш., 8 км + 4 км
пл. участка: 14.5 сот
пл. дома: 370 м2
меблирован
Спален: 5. С/узлов: 3.
Дом, Ирбис кп (Уварово), 350 м2, 10 сот
Калужское шоссе, от МКАД: 17+8 км
Филатов луг, Рассказовка - от 25 мин на автоДом, Ирбис кп
Киевское ш., 21 км + 7 км
пл. участка: 10 сот
пл. дома: 350 м2
меблирован
Спален: 6. С/узлов: 2.











