Продажа дачи, коттеджа, дома на Киевском, Калужском шоссе — цена, описание, фото, расположение на карте.

Дом, Кокошкино

Снят с реализации

Дом под ключ 394 кв.м в Кокошкино

Код: 260-211

Особенности объекта

Новый, готовый к проживанию загородный дом расположенный на участке с лесными и плодовыми деревьями, граничащий с озером. В доме: 4 уровня, гостиная, кухня, 4 комнаты, 3 санузла, мансарда. Есть собственный выход к озеру. Великолепный вид из окон.

Расположение

Ссылка на карту
Кокошкино
Киевское шоссе, от МКАД: 17 км, всего: 20 км
Боровское шоссе, от МКАД: 19 км, всего: 20 км
Тип застройки: коттеджная застройка
Метро: Кокошкино, Пыхтино, Филатов луг; от 3 мин пешком

Дом

Общая площадь строений: 394 м2
Год постройки дома: 2008
Количество уровней: 4
Спален: 3. С/узлов: 2. Комнат всего: 7.
Опции: кабинет.
Материал стен: кирпич
Облицовка стен: оштукатурены и покрашены
Кровля: мягкая
Окна: стеклопакеты ПВХ
Стадия готовности: под ключ
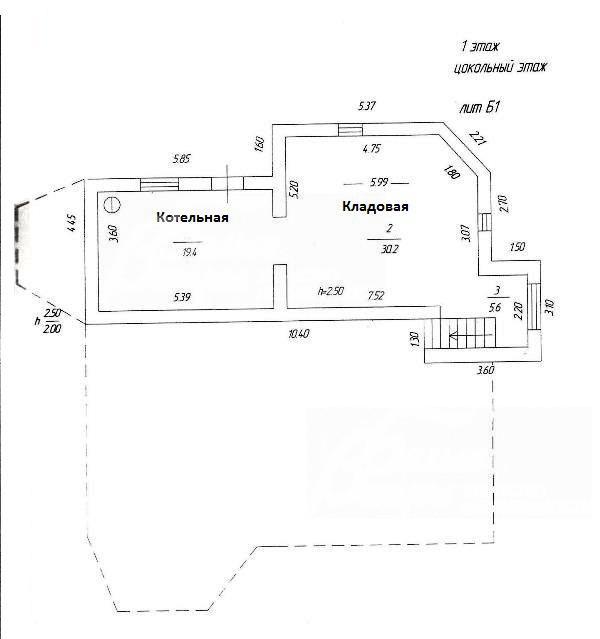
Цоколь: коридор, котельная 19 кв.м, кладовая 30 кв.м
1-ый этаж: холл 41 кв.м, гостиная 68 кв.м, кухня 24 кв.м, с/узел
2-ой этаж: холл 16 кв.м, кабинет 24 кв.м, спальня 22 кв.м, гардеробная 6 кв.м, спальня 20 кв.м с с/узлом 6.5 кв.м, спальня/гостиная 37 кв.м
3-ий этаж: мансарда - помещение свободного назначения 65 кв.м
Описание внутренней отделки: стены оштукатурены и покрашены; полы - плитка, ламинат; потолки натяжные; лестничный марш деревянный, установлены двери, подоконники пластиковые
Инженерное обеспечение: установлен котел Protherm, фильтры воды, счетчики электричества и газа, вентиляция естественная, все коммуникации разведены по дому
Мебель, оборудование: в санузлах установлена сантехника
Дополнительные строения: Гараж 70 кв.м.
Дополнительная информация о доме: фундамент ленточный, перекрытия ж/бетонные, высота потолков 3 м

Участок

Площадь участка, соток: 14.5
Тип участка: лесной (сосны, ели, березы и др.)
Благоустройство участка: двухуровневый участок; сделаны дорожки, освещение, дренаж
Статус земли: ИЖС
Дополнительная информация об участке: участок трапециевидной формы, расположен в центре поселка, огорожен металлопрофилем на каменных столбах

Коммуникации

Газ: есть (магистральный)
Э/э: есть (15 кВт)
Водопровод: индивид. скважина
Канализация: автономная
Телефон: возможно подключение
Интернет: возможно подключение

Описание инфраструктуры

В Кокошкино есть музыкальная и две общеобразовательные школы. Также работает филиал Российского государственного гуманитарного института. В 2001 году был построен православный храм. Крупные центры, где местные жители закупаются и развлекаются, находятся возле МКАД.

Элементы положит. окружения

Лесной массив расположен в 300 метрах, пруд в 5 метрах от участка.

Хочу посмотреть


Поделитесь с друзьями:

Собираетесь купить дом, дачу или коттедж на Калужском или Киевском направлении? Обязательно воспользуйтесь услугами компании «Белые Ветры», старейшего оператора загородной недвижимости на Юго-западе Подмосковья!
Рейтинг@Mail.ru