Дом, Крекшино КП
Код: 220-725
Особенности объекта
Видеоролик Отлично спланированный кирпичный коттедж расположенный в КП бизнес-класса Крекшино. Во всех помещениях выполнена отделка под ключ с использованием высококачественных материалов. Ванные комнаты полностью оборудованы сантехникой. Главное достоинство дома - это лучшее соотношение качества, комфорта и цены!
Расположение
Ссылка на карту
Крекшино КП (д.Крекшино)
Киевское шоссе, от МКАД: 21 км, всего: 25 км
Минское шоссе, от МКАД: 22 км, всего: 24 км
Тип застройки: формирующийся к/п
Метро: Крёкшино, Рассказовка, Саларьево; от 9 мин на авто
Коттеджный поселок «Крекшино»
Дом
Общая площадь строений: 344 м2
Год постройки дома: 2007
Количество уровней: 2
Спален: 3. С/узлов: 3. Комнат всего: 5.
Опции: терраса; камин; машиномест крытых: 1, в т.ч. в теплом гараже: 1.
Материал стен: кирпич
Облицовка стен: плитка
Кровля: натуральная черепица
Окна: стеклопакеты деревянные
Стадия готовности: под ключ (с мебелью)
1-ый этаж: крыльцо 7.5 кв.м, прихожая 9 кв.м, холл 19 кв.м, гостиная с камином 41 кв.м с выходом на террасу 25 кв.м, кухня-столовая 19 кв.м, кабинет 16.5 кв.м; коридор, с/узел 4 кв.м, постирочная; гараж на 1 а/м 24 кв.м, котельная 10 кв.м с выходом на участок
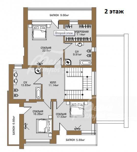
2-ой этаж: холл 11 кв.м, главная спальня 23 кв.м с гардеробной 7 кв.м, с с/узлом 10 кв.м и с выходом на балкон 9 кв.м; спальня 17.5 кв.м с балконом 6 кв.м; спальня 16 кв.м с балконом 6.6 кв.м, с/узел 14 кв.м
Описание внутренней отделки: стены оштукатурены и окрашены; пол - паркет, плитка под камень; потолки подвесные со встроенной подсветкой; лестничный марш монолитный, ступени отделаны камнем; установлены двери
Инженерное обеспечение: установлены котел Viessmann Vitogas и бойлер Vitocell, счетчики воды, газа и электричества
Мебель, оборудование: во всех санузлах установлена импортная сантехника
Участок
Площадь участка, соток: 15.64
Тип участка: без деревьев
Благоустройство участка: участок ровный, засеян газоном
Статус земли: земли поселений для ИЖС
Дополнительная информация об участке: участок правильной формы, по периметру огорожен забором
Коммуникации
Газ: есть
Э/э: есть
Водопровод: центральный
Канализация: централизованная
Телефон: есть
Интернет: есть
Охрана: есть
Описание инфраструктуры
Удобная транспортная доступность по 3-м шоссе: Минское шоссе, вт.ч. Платная трасса - до Москва-Сити 25 мин, Киевское шоссе и Боровское шоссе. В поселке есть собственная лесопарковая зона отдыха на 5Га, гостевая парковка, несколько детских игровых площадок, многофункциональная спортивная площадка для баскетбола, волейбола, мини-футбола. На территории поселка находится Храм Воздвижения Креста Господня, где проходят службы и занятия для детей в Воскресной школе. Запланировано строительство большого общественного центра 7000 кв.м со спортивными залами, бассейном, различными культурно-бытовыми объектами. В шаговой доступности располагается фермерский рынок, продуктовые магазины, аптеки. Рядом есть несколько частных и муниципальных школ и детских садов. Частная школа и детский сад «МЭШ» Московская экономическая школа в 7 минутах на машине (5.9км), Гимназия Святителя Василия Великого в 8 минутах на машине (6.1 км.) ГБОУ школа № 2057 в 12 мин на машине, Премьерский лицей в 20мин пешком (1,9км). Многофункциональный спортивный комплекс для занятий гимнастикой, акробатикой, спортивными танцами, плаванием «Жаворонки» всего в 6 минут на машине (3.6 км.), загородный клуб «Усадьба Крёкшино» менее чем в 700 метрах от КП. В 5 минутах езды находится магазин Перекресток. В 1 км - Загородный клуб Александр с ресторанами, барами, банями, озером с пляжем, зоопарком, фермой, салоном красоты и пр. Также доступна инфраструктура пос.Крекшино, Марушкино, г.Апрелевка (в 5 мин езды), г.Одинцово и Ново-Переделкино (в 10 км). В шаговой доступности остановка общественного транспорта – автобусы и маршрутные такси до ж/д станции Крекшино, м.Саларьево, м.Румянцево, м.Ново-Переделкино, г.Одинцово, г.Троицк.
Элементы положит. окружения
5 Га парковой зоны.
Хочу посмотретьПоделитесь с друзьями:
Похожие предложения:
Дом, Фортопс КП (Былово), 328 м2, 15 сот
Ольховая, Теплый стан - от 23 мин на автоДом, Фортопс КП
Калужское ш., 24 км + 2 км
пл. участка: 15 сот
пл. дома: 328 м2
меблирован
Спален: 5. С/узлов: 4.
Дом, Две Поляны к/п (Птичное), 310 м2, 15 сот
Киевское шоссе, от МКАД: 21+9 км
Ольховая, Теплый стан - от 26 мин на автоДом, Две Поляны к/п
Калужское ш., 17 км + 7 км
пл. участка: 15 сот
пл. дома: 310 м2
меблирован
Спален: 4. С/узлов: 4.

Дом, Чистые Ключи КП (Милюково), 375 м2, 15 сот
Саларьево, Рассказовка - от 15 мин на автоДом, Чистые Ключи КП
Киевское ш., 21 км + 5 км
пл. участка: 15 сот
пл. дома: 375 м2
меблирован
Спален: 5. С/узлов: 2.
Дом, Академический к/п (Ватутинки), 400 м2, 15 сот
Ольховая, Прокшино - от 16 мин на автоДом, Академический к/п
Калужское ш., 16 км + 1 км
пл. участка: 15 сот
пл. дома: 400 м2
меблирован
Спален: 4. С/узлов: 4.


Дом, Фортопс КП (Былово), 328 м2, 15 сот
Ольховая, Теплый стан - от 23 мин на автоДом, Фортопс КП
Калужское ш., 24 км + 2 км
пл. участка: 15 сот
пл. дома: 328 м2
под ключ
Спален: 5. С/узлов: 4.



















