Дом, Крекшино КП
Код: 220-745
Особенности объекта
Расположение
Ссылка на карту
Крекшино КП (д.Крекшино)
Киевское шоссе, от МКАД: 21 км, всего: 25 км
Минское шоссе, от МКАД: 22 км, всего: 24 км
Тип застройки: обжитой к/п
Метро: Крёкшино, Рассказовка, Саларьево; от 9 мин на авто
Коттеджный поселок «Крекшино»
Дом
Общая площадь строений: 334 м2
Количество уровней: 2
Спален: 4. С/узлов: 3. Комнат всего: 5.
Опции: терраса; камин; машиномест крытых: 1, в т.ч. в теплом гараже: 1; панорамные окна в пол.
Материал стен: наружные стены – «теплая керамика» RAUF, внутренние стены - кирпич
Облицовка стен: кирпич (облицовочный кирпич и декоративная фасадная доска из лиственницы.)
Кровля: цементно-песчаная черепица (цементно-песчаная черепица Braas.)
Окна: стеклопакеты деревянные (двухкамерные)
Стадия готовности: под отделку
1-ый этаж: крыльцо 8 кв.м, прихожая 9 кв.м, холл 19 кв.м, гостиная с камином 41 кв.м и с выходом на террасу 25 кв.м, кухня-столовая 19 кв.м, кабинет/спальня 17 кв.м, коридор, санузел 4 кв.м, постирочная 4 кв.м, котельная 10 кв.м, гараж на 1 а/м 24 кв.м
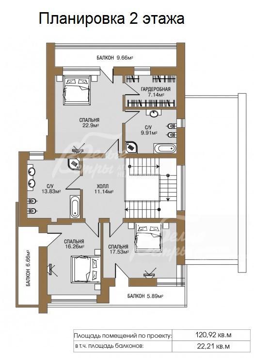
2-ой этаж: холл 11 кв.м, главная спальня 23 кв.м с гардеробной 7 кв.м с санузлом 10 кв.м и с выходом на балкон 10 кв.м, спальня 18 кв.м с выходом на балкон 6 кв.м, санузел 14 кв.м, спальня 16 кв.м с выходом на балкон 6 кв.м
Инженерное обеспечение: В дом заведены коммуникации (водопровод, электричество,
канализация). В гараже установлены ламельные автоматические ворота.
Участок
Площадь участка, соток: 15
Тип участка: без деревьев
Статус земли: земли поселений, для ИЖС
Дополнительная информация об участке: Участок правильной прямоугольной формы, выровнен, выполнен дренаж, огорожен кованым забором по фасаду в едином стиле поселка.
Коммуникации
Газ: есть (магистральный)
Э/э: есть (15 кВт)
Водопровод: центральный
Канализация: централизованная
Телефон: есть (оптоволокно)
Интернет: есть (оптоволокно)
Охрана: есть (строгоохраняемый поселок, КПП)
Описание инфраструктуры
Удобная транспортная доступность по 3-м шоссе: Минское шоссе, вт.ч. Платная трасса - до Москва-Сити 25 мин, Киевское шоссе и Боровское шоссе. В поселке есть собственная лесопарковая зона отдыха на 5Га, гостевая парковка, несколько детских игровых площадок, многофункциональная спортивная площадка для баскетбола, волейбола, мини-футбола. На территории поселка находится Храм Воздвижения Креста Господня, где проходят службы и занятия для детей в Воскресной школе. В шаговой доступности располагается фермерский рынок, продуктовые магазины, аптеки. Рядом есть несколько частных и муниципальных школ и детских садов. Частная школа и детский сад «МЭШ» Московская экономическая школа в 7 минутах на машине (5.9км), Гимназия Святителя Василия Великого в 8 минутах на машине (6.1 км.) ГБОУ школа № 2057 в 12 мин на машине, Премьерский лицей в 20мин пешком (1,9км). Многофункциональный спортивный комплекс для занятий гимнастикой, акробатикой, спортивными танцами, плаванием «Жаворонки» всего в 6 минут на машине (3.6 км.), загородный клуб «Усадьба Крёкшино» менее чем в 700 метрах от КП. В 5 минутах езды находится магазин Перекресток. В 1 км - Загородный клуб Александр с ресторанами, барами, банями, озером с пляжем, зоопарком, фермой, салоном красоты и пр. Также доступна инфраструктура пос.Крекшино, Марушкино, г.Апрелевка (в 5 мин езды), г.Одинцово и Ново-Переделкино (в 10 км). В шаговой доступности остановка общественного транспорта – автобусы и маршрутные такси до ж/д станции Крекшино, м.Саларьево, м.Румянцево, м.Ново-Переделкино, г.Одинцово, г.Троицк.
Элементы положит. окружения
5 Га парковой зоны в аренде. Поселок вплотную примыкает к лесному массиву. В пешей доступности каскад прудов, где можно ловить рыбу.
Хочу посмотретьПоделитесь с друзьями:
Похожие предложения:
Дом, Европейская долина к/п (Шаганино), 370 м2, 16.6 сот
Варшавское шоссе, от МКАД: 24+5 км
Прокшино, Коммунарка - от 29 мин на автоДом, Европейская долина к/п
Калужское ш., 25 км + 8 км
пл. участка: 16.6 сот
пл. дома: 370 м2
меблирован
Спален: 5. С/узлов: 2.
Дом, Крекшино КП (д.Крекшино), 333 м2, 12 сот
Минское шоссе, от МКАД: 22+2 км
Крёкшино, Рассказовка - от 9 мин на автоДом, Крекшино КП
Киевское ш., 21 км + 4 км
пл. участка: 12 сот
пл. дома: 333 м2
под отделку
Спален: 4. С/узлов: 3.
Дом, Ново-Троицкое к/п (Пучково), 377 м2, 15 сот
Киевское шоссе, от МКАД: 21+9 км
Ольховая, Теплый стан - от 21 мин на автоДом, Ново-Троицкое к/п
Калужское ш., 17 км + 3 км
пл. участка: 15 сот
пл. дома: 377 м2
меблирован
Спален: 4. С/узлов: 4.
Дом, Монреаль КП , 314 м2, 17.3 сот
Киевское шоссе, от МКАД: 32+15 км
Апрелевка, Ольховая - от 25 мин на автоДом, Монреаль КП
Калужское ш., 29 км + 10 км
пл. участка: 17.3 сот
пл. дома: 314 м2
под отделку
Спален: 4. С/узлов: 3.

Дом, Две Поляны к/п (Птичное), 310 м2, 15 сот
Киевское шоссе, от МКАД: 21+9 км
Ольховая, Теплый стан - от 26 мин на автоДом, Две Поляны к/п
Калужское ш., 17 км + 7 км
пл. участка: 15 сот
пл. дома: 310 м2
меблирован
Спален: 4. С/узлов: 4.

|
|



















