Продажа дачи, коттеджа, дома на Киевском, Калужском шоссе — цена, описание, фото, расположение на карте.

Дом, Лесное Озеро к/п

Снят с реализации

Коттедж из клееного бруса в охраняемом к/п Лесное Озеро

Код: 131-841

Особенности объекта

Уникальный коттедж премиум-класса, возведенный из клеёного бруса в современном стиле по авторскому архитектурному проекту. Высококачественные экологические материалы строительства, дизайнерский проект. Эксклюзивная мебель из Франции, США, Англии в стиле "Прованс". Квартира для персонала, гостевой дом. Чудесный видовой участок с лесом.  Обжитой охраняемый коттеджный поселок, окруженный лесом, с собственным озером. Видеоролик

Расположение

Ссылка на карту
Лесное Озеро к/п (Кузенёво)
Калужское шоссе, от МКАД: 25 км, всего: 29 км
Тип застройки: сформированный к/п
Метро: Ольховая, Теплый стан, Подольск; от 29 мин на авто
Коттеджный поселок «Лесное Озеро (Кузенево)»

Дом

Общая площадь строений: 600 м2 (в т.ч.: основной дом 391 кв.м, гостевой дом 202 кв.м)
Год постройки дома: 2010
Количество уровней: 4
Спален: 6. С/узлов: 5. Комнат всего: 8.
Опции: баня; сауна; купель; квартира для персонала; терраса; камин; холодный подвал; машиномест крытых: 2, в т.ч. в теплом гараже: 2.
Материал стен: клееный профилированный брус
Облицовка стен: окрашеный брус, цоколь - дикий камень
Кровля: натуральная черепица (керамическая)
Окна: стеклопакеты деревянные (двухкамерные из массива дерева, мансардные окна)
Стадия готовности: меблирован
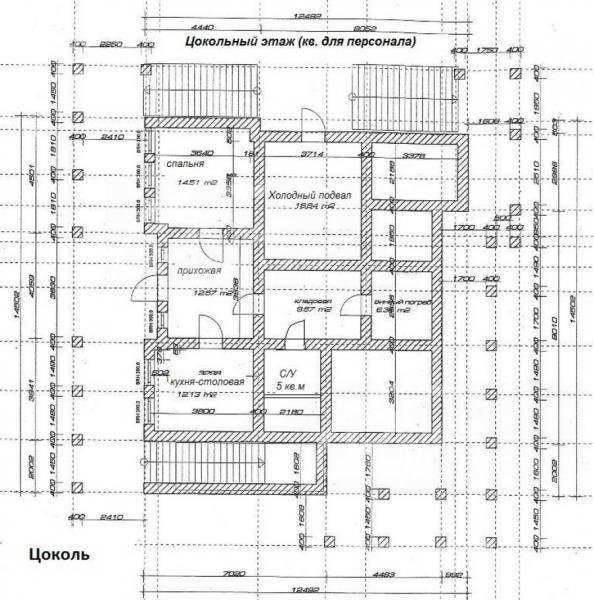
Цоколь: Погреб с отдельным входом 17 кв.м
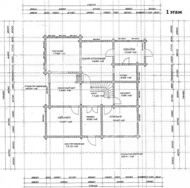
1-ый этаж: Прихожая 8.6 кв.м, холл 11 кв.м, каминный зал 15 кв.м с выходом на веранду, гостиная со вторым светом 18 кв.м, кухня-столовая 19 кв.м, кладовая 10 кв.м, кабинет 15 кв.м, гостевая спальня 15.5 кв.м, с/узел 8 кв.м, опоясывающая дом открытая веранда 116 кв.м
2-ой этаж: холл 15 кв.м, детская спальня 15 кв.м с с/узлом 8.6 кв.м, спальня 19 кв.м с гардеробной 10 кв.м, с с/узлом 5.6 кв.м и балконом 5 кв.м, спальня 15.5 кв.м с с/узлом-прачечной 8 кв.м.
3-ий этаж: мансарда - спальня 31.5 кв.м с с/узлом 14 кв.м и кладовыми.
Описание внутренней отделки: Дизайнерская отделка и мебель. Брус во всем доме окрашен в различные тона, подобраны под интерьер. Пол - кафель с водяным подогревом, половая доска (лиственница), на верандах - палубная доска. Потолки деревянные, с выделенными балками. Лестничный марш из массива дерева ценных пород, шириной 0,9 м. Двери и подоконники также из массива дерева.
Инженерное обеспечение: установлены газовый котёл Viessmann (Германия) 90 кВт, бойлер Reflex 300 л, на каждое строение свой бойлер; пятиступенчатая система очистки воды. Резервный дизельный генератор 13 кВт, стабилизаторы напряжения в эл.сети. Счетчики воды и электричества. На участке оборудована система датчиков движения.
Мебель, оборудование: Дом обставлен эксклюзивной мебелью из Франции, США, Англии ( Roche Bobois, Grand Park Avenue (США), Английские интерьеры). Мебель в стиле "Прованс" и копии старофранцузских вещей. Кухня выполнена по индивидуальному дизайну и полностью укомплектована. Ковры на полу из натуральной шерсти - северный Иран, коллекция "Старая Англия".
Дополнительные строения: - Квартира для персонала (с отдельным входом в цоколе Основгого дома): прихожая 13 кв.м, с/узел 5 кв.м, спальня 14.5 кв.м, кухня-столовая 12 кв.м, кладовая 10 кв.м, винный погреб 6.4 кв.м.
- Вспомогательный дом 202 кв.м: цокольный - гараж на два автомобиля 56.6 кв.м (заливной пол с водосточной системой (можно мыть авто), помещения технического назначения 9 кв.м (система водоподготовки и стабилизаторы напряжения), бойлерная 12 кв.м (котел, бойлер и оборудование для бассейна);
1 этаж - прихожая 10 кв.м, с/узел 5 кв.м, гостевой зал с мини-кухней 25 кв.м с выходом на террасу 17 кв.м, спальня с гардеробом 20 кв.м, тренажерный зал 23 кв.м, предбанник 24 кв.м с ванной, душевой и купелью (2.5х1.8 м глубиной 2.5м), сауна 9.5 кв.м.
Дополнительная информация о доме: Дом в классическом архитектурном стиле, зодчество. Фундамент дома железобетонный монолитный, перекрытия 1го этажа бетонные, остальные - деревянные. Высота потолков от 3 до 6.7 метров в каминном двухсветном зале.

Участок

Площадь участка, соток: 50
Тип участка: лесной, более 100 деревьев с ландшафтом
Благоустройство участка: На участке выполнен ландшафтный дизайн известной ландшафтной компанией: проложены прогулочные дорожки, установлены чугунные лавочки, организовано уличное освещение с датчиками светорегулировки уровня яркости и система автоматического полива газона. Большая солнечная площадка газона около 15 сот. Французский огород около 4 соток. Высажены декоративные кустарники и деревья. А так же на участке взрослые ели - 23 шт., лиственницы -17 шт., 7 сосен, 14 дубов, 27 берёз.
Статус земли: земли населенных пунктов, для индивидуального жилищного строительства
Дополнительная информация об участке: прямоугольный участок крайний к лесу, огорожен забором из кирпича с деревянными пролётами, с бетонным фундаментом.

Коммуникации

Газ: есть (магистральный)
Э/э: есть (24 кВт)
Водопровод: центральный (+ индивидуальная скважина 75 м)
Канализация: централизованная
Телефон: есть (МГТС)
Интернет: возможно подключение (оптиковолокно по границе)
Охрана: есть (КПП, патрулирование территории)

Описание инфраструктуры

В коттеджном поселке: собственное большое озеро с зоной отдыха вокруг него: детские и универсальная спортивные площадки

Элементы положит. окружения

Поселок с четырёх сторон окружён лесом, преимущественно хвойным, в посёлке природное озеро, на котором ведётся строительство общественной беседки и зоны отдыха.

Хочу посмотреть


Поделитесь с друзьями:

Собираетесь купить дом, дачу или коттедж на Калужском или Киевском направлении? Обязательно воспользуйтесь услугами компании «Белые Ветры», старейшего оператора загородной недвижимости на Юго-западе Подмосковья!
Рейтинг@Mail.ru