Продажа дачи, коттеджа, дома на Киевском, Калужском шоссе — цена, описание, фото, расположение на карте.

Дом, Летово

Снят с реализации

Двухэтажный дом из бруса 280 кв.м на участке 15 соток в д. Летово

Код: 383-910

Особенности объекта

Двухэтажный дом с отделкой и мебелью из бруса, с 6-ю спальнями, баней, квартирой для персонала, расположенный в нескольких минутах от лучшей школы в России и всего в нескольких километрах от МКАД.

Расположение

Ссылка на карту
Летово
Калужское шоссе, от МКАД: 7 км, всего: 9 км
Киевское шоссе, от МКАД: 7 км, всего: 14 км
Тип застройки: коттеджная застройка
Метро: Ольховая, Теплый стан, Филатов луг; от 8 мин на авто

Дом

Общая площадь строений: 400 м2 (дом 280,7 кв.м, гараж с гостевым домом 67,7 кв.м, баня 50 кв.м)
Год постройки дома: 2001 (гараж с гостевым домом - 2008)
Спален: 6. С/узлов: 3. Комнат всего: 7.
Опции: баня; квартира для персонала; терраса; холодный подвал; машиномест крытых: 2, в т.ч. в теплом гараже: 2.
Материал стен: брус
Облицовка стен: кирпич
Кровля: оцинкованный профлист
Окна: стеклопакеты ПВХ
Стадия готовности: меблирован
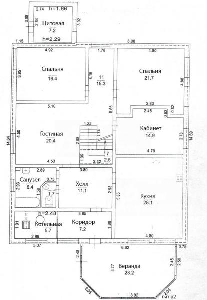
1-ый этаж: веранда 23 кв.м, коридор 7 кв.м, гостиная 36 кв.м, 2 спальни 19 и 22 кв.м, кабинет 15 кв.м, кухня 28,1 кв.м, с/у 8 кв.м, щитовая 7 кв.м, котельная 5 кв.м
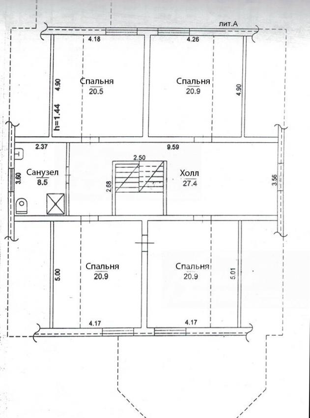
2-ой этаж: холл 27 кв.м, 4 спальни по 21 кв.м, с/у 9 кв.м
Описание внутренней отделки: Паркет из лиственницы толщиной 25 мм, с/у отделаны плиткой, лестничный марш из сосны, импортная сантехника, филенчатые двери из массива сосны, шпонированы орехом, подоконники из массива дерева.
Инженерное обеспечение: котел Ишма 40, 40кВт, бойлер Drazice 260 л., трехступенчатая система очистки воды
Мебель, оборудование: Дом полностью меблирован
Дополнительные строения: баня с хозблоком 50 кв.м - комната отдыха, парная (3 полки), русская печь (финн), душ; гараж с квартирой персонала (гостевой квартирой) 2-х этажный 68 кв.м; теплица на деревянном каркасе с остеклением 15 кв.м

Участок

Площадь участка, соток: 15
Тип участка: парковый с деревьями
Благоустройство участка: множество плодовых и лесных деревьев и кустарники
Статус земли: Земли поселений, для ведения личного подсобного хозяйства
Дополнительная информация об участке: 6 минут пешком до реки Сосенка, в шаговой доступности каскад прудов, 700 м. до леса

Коммуникации

Газ: есть (магистральный)
Э/э: есть (35 кВт, 380)
Водопровод: колодец (автономное, 2 колодца (12 колец))
Канализация: автономная (автономная, септик (без откачки))
Телефон: нет
Интернет: нет
Охрана: нет

Описание инфраструктуры

Инфраструктура коттеджных поселков Антоновка (продуктовый магазин), Бельгийская деревня (детский сад, ресторан), Дубровка, также г.Московский. Непосредственно вблизи поселка расположен спортивный стадион с футбольным полем и спортивной площадкой. Рядом расположен храм Архангела Михаила. В пешей доступности школа "Летово"

Элементы положит. окружения

лесной массив, пруды

Хочу посмотреть


Поделитесь с друзьями:

Собираетесь купить дом, дачу или коттедж на Калужском или Киевском направлении? Обязательно воспользуйтесь услугами компании «Белые Ветры», старейшего оператора загородной недвижимости на Юго-западе Подмосковья!
Рейтинг@Mail.ru