Дом, Левитан КП
Код: 170-803
Особенности объекта
Роскошная резиденция класса De-Luxe отделана по авторскому дизайн-проекту и представляет собой единый комплекс из двух жилых строений и СПА-зоны с бассейном. Изысканные, в том числе и антикварные материалы отделки, элементы декора, высококачественное оборудование. Комплекс расположен в уже обжитом элитном, клубном коттеджном поселке на берегу реки Пахра, вблизи леса.
Расположение
Ссылка на карту
Левитан КП (Шаганино)
Калужское шоссе, от МКАД: 25 км, всего: 30 км
Варшавское шоссе, от МКАД: 24 км, всего: 31 км
Тип застройки: сформированный к/п
Метро: Ольховая, Теплый стан, Бунинская аллея; от 27 мин на авто
Коттеджный поселок «Левитан»
Дом
Общая площадь строений: 1300 м2 (состоит из двух смежных жилых строений и СПА-зоны с бассейном)
Год постройки дома: 2009 (отделка 2011 года)
Количество уровней: 3
Спален: 6. С/узлов: 8. Комнат всего: 11.
Опции: бассейн; сауна; терраса; машиномест крытых: 2, в т.ч. в теплом гараже: 2; 5 каминов; две квартиры-студии для нянь и гувернеров.
Материал стен: кирпич
Облицовка стен: клинкерный облицовочный кирпич
Кровля: натуральная черепица (керамическая August Berentelg's'Co Klinkergruppe)
Окна: стеклопакеты деревянные (стекло английское энергосберегающее)
Стадия готовности: под ключ
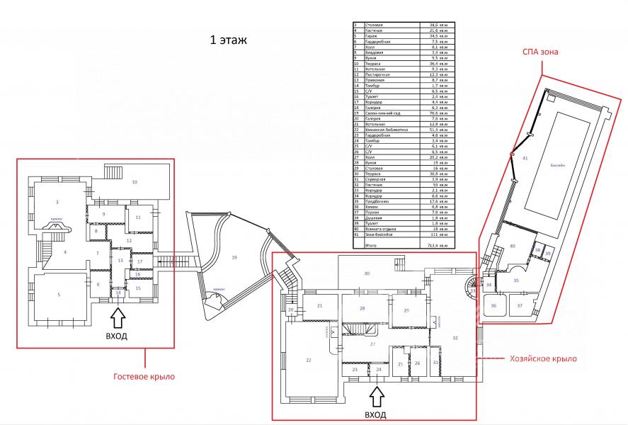
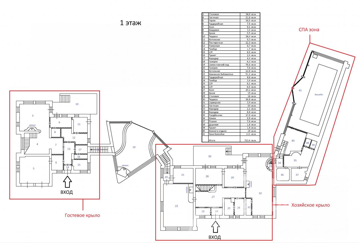
1-ый этаж: Основной дом: прихожая с гардеробной, холл, большой гостевой с/узел, кухня, cтоловая с выходом на террасу, гостиная с выходом в зону бассейна и Спа (две бани: сауна и хамам, джакузи), каминный зал (через него проход в Гостевой дом), большой зал с панорамным остеклением и камином, котельная.
Гостевой дом: прихожая с гардеробной, с/узел, гостиная, столовая с камином, кухня с кладовой и с выходом на террасу, с/узел, постирочная, котельная; гараж на два м/места
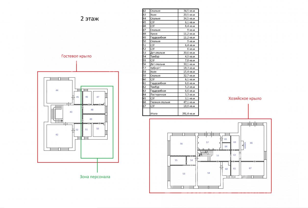
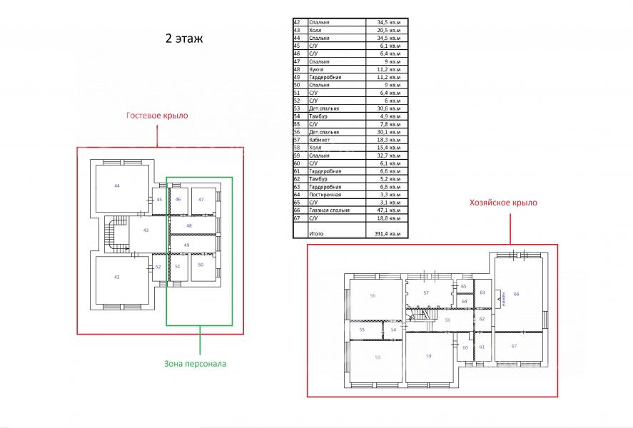
2-ой этаж: Основной дом: две детские спальни с с/узлом, спальня с с/узлом, кабинет с с/узлом, спальня хозяев с с/узлом и двумя гардеробными, прачечная-гладильная.
Гостевой дом: холл, две гостевые спальни, каждая с с/узлом; две квартиры-студии, в каждой: кухня-столовая, спальня, с/узел.
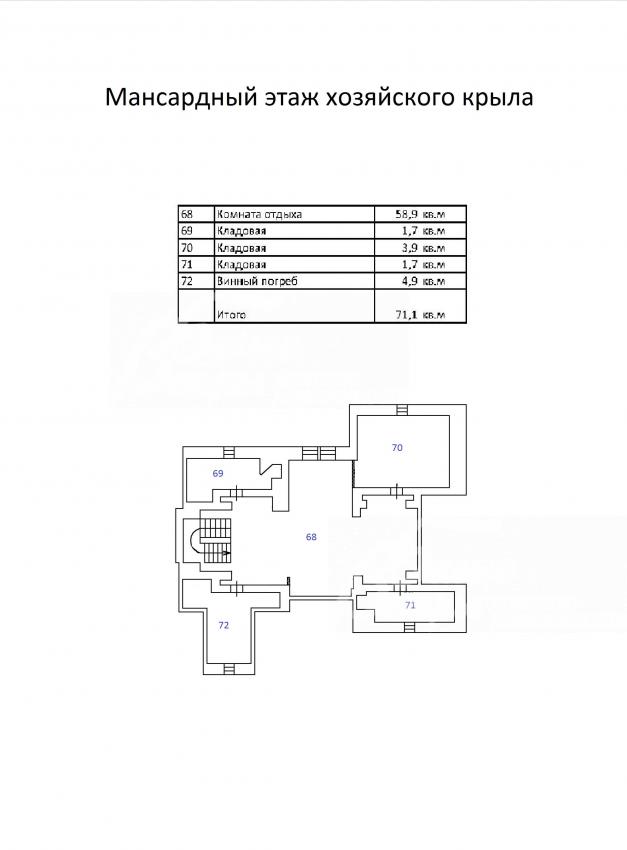
3-ий этаж: Основной дом: мансарда - зона отдыха с кольянной и большими нишами, возможно организовать винную комнату и т.п.
Описание внутренней отделки: стены - декоративная штукатурка, покраска, обои; пол - массив ценных пород дерева, плитка; потолки - сложные многоуровневые с подсветкой, декорированы элементами из гипса, расписаны вручную; лестничный марш железобетонный монолит, отделан деревом и декоративной плиткой, подоконники - натуральный камень
Инженерное обеспечение: котел Viessmann, система очистки воды, установлены кондиционеры, оборудована система вентиляции в бассейне, счетчики воды и электричества, все коммуникации разведены по дому
Мебель, оборудование: Усадьба полностью меблирована по индивидуальному заказу от известных итальянских производителей, эксклюзивная сантехника, роскошные светильники, шторы.
Дополнительные строения: Беседка, площадка для барбекю. Домик для обслуживающего персонала.
Дополнительная информация о доме: Фундамент - монолитная плита на сваях, перекрытия - ж/б монолит.
Участок
Площадь участка, соток: 48
Тип участка: солнечный участок с ландшафтом
Благоустройство участка: выполнен сложный многоуровневый ландщафтный дизайн: сделаны дорожки, освещение участка,система автоматического полива, дренаж. Площадка перед домом вымощена натуральным камнем.
Статус земли: земли населенных пунктов, для индивидуального жилищного строительства
Дополнительная информация об участке: участок ровный, правильной формы, расположен в центре поселка, огорожен кованым забором на кирпичных столбах
Коммуникации
Газ: есть (магистральный)
Э/э: есть (50 кВт)
Водопровод: центральный
Канализация: централизованная
Телефон: возможно подключение (МГТС за доп.плату)
Интернет: возможно подключение (высокоскоростной, Wi-Fi, цифровое ТВ - за доп.плату)
Охрана: есть (строгая вооруженная)
Описание инфраструктуры
В поселке набережная протяженностью 400 м, собственный причал, мостики, лодочная станция, пляж, площадки для пикников и детская площадка, парковая территория площадью 10 га, часовня. А так же продуктовый маркет в Щапово, 5 минут на авто, школа Ника в 5 минутах на авто
Элементы положит. окружения
Тихое место, 180 метров до леса, 150 метров до реки Пахра
Хочу посмотретьПоделитесь с друзьями:
Похожие предложения:
Дом, Искра к/п (Ватутинки), 1438 м2, 45 сот
Ольховая, Теплый стан - от 12 мин на автоДом, Искра к/п
Калужское ш., 16 км + 1 км
пл. участка: 45 сот
пл. дома: 1438 м2
меблирован
Спален: 7. С/узлов: 5.






