Продажа дачи, коттеджа, дома на Киевском, Калужском шоссе — цена, описание, фото, расположение на карте.

Дом, Левитан КП

Снят с реализации

Код: 170-905

Особенности объекта

Уютный двухэтажный коттедж удовлетворит самые взыскательные требования владельца к качеству и комфорту проживания. Классические линии фасадов, спокойные цветовые решения, игра света на скатах кровли – все это придает загородному дому неповторимое очарование.
Большие окна позволяют солнечному свету заполнять весь дом, создавая единое световое пространство.
Планировочное решение помещений основательно продумано. На первом этаже расположены кухня, гостиная, совмещенная со столовой и выходом на террасу, гостевая спальня и ванные комнаты, а также технические помещения. На втором этаже – три спальни с ванными комнатами и гардеробной.

Расположение

Ссылка на карту
Левитан КП (Шаганино)
Калужское шоссе, от МКАД: 25 км, всего: 30 км
Варшавское шоссе, от МКАД: 24 км, всего: 31 км
Тип застройки: обжитой к/п
Метро: Ольховая, Теплый стан, Бунинская аллея; от 27 мин на авто
Коттеджный поселок «Левитан»

Дом

Общая площадь строений: 350 м2
Год постройки дома: 2009
Количество уровней: 2
Спален: 4. С/узлов: 4. Комнат всего: 6.
Опции: терраса; камин; машиномест крытых: 2, в т.ч. в теплом гараже: 2.
Материал стен: кирпич
Облицовка стен: клинкерный облицовочный кирпич ABC Klinkergruppe
Кровля: натуральная черепица (керамическая черепица August Berentelg's'Co Klinkergruppe, водосточная система металл)
Окна: стеклопакеты деревянные (двухкамерные с английским энергосберегающим стеклом, панорамные в гостиной, мансардные окна Velux.)
Стадия готовности: меблирован
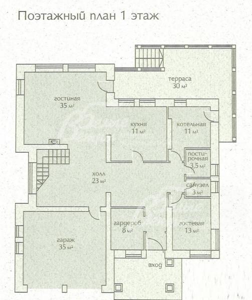
1-ый этаж: холл 23 кв.м, гардероб 13 кв.м, гостиная 35 кв.м с камином и выходом на террасу 30 кв.м, кухня 11 кв.м, спальня 13 кв.м, санузел 3 кв.м, постирочная 4 кв.м, котельная 11 кв.м, гараж 35 кв.м;
2-ой этаж: холл 21 кв.м, спальня 35 кв.м с санузлом 13 кв.м, спальня 35 кв.м с санузлом 13 кв.м, спальня 23 кв.м с санузлом 9 кв.м и с гардеробной 10 кв.м;
Описание внутренней отделки: выполнена современная классическая отделка: стены окрашены, в санузлах плитка; пол - кафель с водяным подогревом, ламинат высшей категории. Потолки подвесные, на 2-м этаже скошенные потолки - натяжные. Лестничный марш дубовый шириной 1 метр. Подоконники ПВХ, ламинированные под дерево.
Инженерное обеспечение: газовый котел Viessmann на 50 кВт, бойлер Reflex на 200 л, вентиляция естественная приточно-вытяжная, оборудована пожарная сигнализация; счетчики воды и электричества. Электрика Legrand, в гостиной и холле встроенные напольные радиаторы.
Мебель, оборудование: кухонный гарнитур из массива дерева со встроенной техникой Hotpoint-Ariston. Камин облицован натуральным камнем. В санузлах установлена сантехника производства Италии.
Дополнительная информация о доме: дом выполнен в классическом стиле, фундамент - монолитная плита на сваях, перекрытия ж/б монолитные, высота потолков на 1-м этаже 3.15 м, на 2-м этаже до 4-х метров.

Участок

Площадь участка, соток: 24
Тип участка: без деревьев, вторая линия от воды
Благоустройство участка: на участке газон, сделан дренаж
Статус земли: земли населенных пунктов для ИЖС
Дополнительная информация об участке: участок немного трапециевидной формы с уклоном, в центре поселка, огорожен кованым забором высотой 1.2 м, по бокам на бетонном цоколе

Коммуникации

Газ: есть (магистральный)
Э/э: есть (20 кВт)
Водопровод: центральный
Канализация: централизованная
Телефон: возможно подключение (МГТС за доп.оплату)
Интернет: возможно подключение (высокоскоростной, цифровое ТВ за доп.оплату)
Охрана: есть (строгая, вооруженная, КПП)

Описание инфраструктуры

В поселке набережная протяженностью 400 м, собственный причал, мостики, лодочная станция, пляж, площадки для пикников и детская площадка, парковая территория площадью 10 га, часовня. А так же продуктовый маркет в Щапово, 5 минут на авто, школа Ника в 5 минутах на авто

Элементы положит. окружения

Лесной массив расположен в 200 метрах, в 100 метрах протекает река Пахра с благоустроенной зоной отдыха.

Хочу посмотреть


Поделитесь с друзьями:

Похожие предложения:

Дом, Околица ДСК (Докукино д.), 368.9 м2, 23.75 сот

код: 571-902
Варшавское шоссе, от МКАД: 30+3 км
Калужское шоссе, от МКАД: 15+25 км
Метро Ольховая, Теплый стан - от 12 мин на авто
под ключ, спален: 2, с/узлов: 2

Дом, Околица ДСК

Код объекта: 571-902
Варшавское ш., 30 км + 3 км
пл. участка: 23.75 сот
пл. дома: 368.9 м2
под ключ
Спален: 2. С/узлов: 2.
49 000 000 
Собираетесь купить дом, дачу или коттедж на Калужском или Киевском направлении? Обязательно воспользуйтесь услугами компании «Белые Ветры», старейшего оператора загородной недвижимости на Юго-западе Подмосковья!
Рейтинг@Mail.ru