Дом, Лужайкино КП
Код: 122-903
Особенности объекта
Современный дом в формирующемся коттеджном поселке в окружении леса. Коттеджный посёлок Лужайкино находится в экологически чистом районе Новой Москвы. Круглосуточная охрана, пропускная система, въезд в поселок через КПП. 4 действующие коммуникации. Просторный светлый дом с функциональной планировкой и с качественной мебелью. Все необходимые объекты социальной инфраструктуры находятся в близлежащем посёлке Шишкин Лес. Удобная транспортная доступность, московская прописка.
Став владельцем этого замечательного дома, Вы безусловно оцените комфорт загородной жизни.
Расположение
Ссылка на карту
Лужайкино КП (Шарапово)
Калужское шоссе, от МКАД: 29 км, всего: 38 км
Киевское шоссе, от МКАД: 32 км, всего: 47 км
Тип застройки: сформированный к/п
Метро: Ольховая, Теплый стан, Прокшино; от 37 мин на авто
Коттеджный поселок «Лужайкино»
Дом
Общая площадь строений: 272 м2
Год постройки дома: 2018
Количество уровней: 2
Спален: 3. С/узлов: 2. Комнат всего: 4.
Опции: терраса (две большие террасы по 20 кв.м); открытая площадка на 1 авто.
Облицовка стен: штукатурка короед, фундамент - плитка под искуственный камень
Кровля: мягкая
Окна: стеклопакеты ПВХ (двухкамерные)
Стадия готовности: меблирован
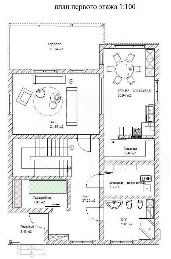
1-ый этаж: крыльцо 5 кв.м, холл 27 кв.м, гардеробная 7 кв.м, котельная-постирочная 8 кв.м; санузел 10 кв.м, гостиная 25 кв.м, кухня - столовая 21 кв.м, кладовка 5 кв.м, терраса 18 кв.м;
2-ой этаж: балкон 20 кв.м, спальня 24 кв.м, холл 18 кв.м, санузел 7 кв.м, спальня 23 кв.м, спальня 23 кв.м, гардеробная 9 кв.м; балкон 7 кв.м;
Описание внутренней отделки: на 1-м этаже стены окрашены, оклеены обоями, отделаны плиткой в санузлах; на 2-м этаже вагонка; полы на 1-м этаже ламинат, плитка, доска на террасе; на 2-м этаже ламинат, плитка в санузлах; лестница - массив сосны; потолки на 1-м этаже натяжные, на 2-м отделан ГКЛ окрашен ; все коммуникации разведены по дому; сантехника установлена; двери ламинированные;
Инженерное обеспечение: газовый котел двухконтурный;
Мебель, оборудование: установлен качественный кухонный гарнитур белорусской фабрики ЗОВ со встроенной бытовой техникой (варочная панель, вытяжка, духовой шкаф, печь СВЧ, посудомоечная машина, холодильник), большой раздвижной стол и 8 стульев. В гостиной угловой диван, журнальный стол, система хранения, напольный светильник. В холле большой комод, зеркало. В постирочной стиральная машина. В детской комнате кровать с дополнительным выдвижным спальным местом, столик и стульчик, система хранения, детский спортивный комплекс. В комнате большой шкаф, двуспальная кровать с анатомическим матрасом Askona, прикроватные тумбочки. В главной спальне туалетный столик, в гардеробной комнате система хранения, напольное зеркало;
Дополнительная информация о доме: фундамент ленточный на сваях; перекрытия ж/б на 1-ом этаже; дом в классическом современном архитектурном стиле; высота потолков на 1-ом этаже 3 м, на 2-ом этаже - до 3.5 м;
Участок
Площадь участка, соток: 8
Тип участка: с деревьями
Благоустройство участка: ровный огороженный участок с газоном, высажены 9 сосен, 1 ель. Есть стоянка для авто. На территории установлена детская игровая площадка Савушка-15 с зимней и летней горками;
Статус земли: земли населенных пунктов для ИЖС
Дополнительная информация об участке: участок прямоугольной формы, расположен в середине поселка огражден забором высотой 2 м: по фасаду металлический штакетник, по бокам и сзади металлический штакетник и металлопрофиль;
Коммуникации
Газ: есть
Э/э: есть (15 кВт)
Водопровод: центральный
Канализация: централизованная
Интернет: есть (оптоволокно заведено в дом и подключено)
Охрана: есть (круглосуточная, автоматический шлагбаум)
Описание инфраструктуры
Инфраструктура внешняя: Санаторий-курорт "Михайловское". Загородный клуб Лачи, конно-спортивная база, бассейн, сауны, поликлиника. В 1,5 км ПГТ "Шишкин Лес" (больницы, школы, детский сад, магазины, клуб)
Элементы положит. окружения
Лес
Хочу посмотреть