Дом, Милорадово
Код: 371-916
Особенности объекта
Меблированный дом, построенный в классическом стиле, с элегантной облицовкой серым кирпичом – для постоянного проживания или представительной загородной дачи. В планировке дома: двухсветная гостиная с камином, тёплый гараж, крытая терраса, обустроенный цокольный этаж с сауной и комнатой для персонала. Дом стоит на просторном благоустроенном участке, прилегающем к лесной зоне. На территории участка сохранены реликтовые сосны и ели, есть большая парковка и уютная беседка из бруса с мангалом. Участок находится в престижном стародачном коттеджном посёлке рядом с городской инфраструктурой.
Расположение
Ссылка на карту
Милорадово
Калужское шоссе, от МКАД: 10 км, всего: 11 км
Тип застройки: стародачное место
Метро: Ольховая, Теплый стан, Бунинская аллея; от 8 мин на авто
Коттеджный поселок «Милорадово»
Дом
Общая площадь строений: 370 м2
Год постройки дома: 2005 (отделка обновлена в 2023 году)
Количество уровней: 3
Спален: 4. С/узлов: 4. Комнат всего: 8.
Опции: квартира для персонала (комната в цоколе с отдельным выходом); терраса; камин (дровяной, двухсторонний); холодный подвал; машиномест крытых: 2, в т.ч. в теплом гараже: 2; двухсветная гостиная.
Материал стен: брус + кирпич
Облицовка стен: стены - облицовочный кирпич (покрашен в серый цвет), ступени крыльца - древесно-полимерный композит
Кровля: металлочерепица
Окна: стеклопакеты ПВХ (двухкамерные, на втором этаже часть окон - арочная, снаружи окна ламинированы в серый цвет)
Стадия готовности: меблирован
Цоколь: холл 6,5 кв.м, сауна 5,5 кв.м, комната отдыха 24 кв.м, душевая 3 кв.м, санузел 4 кв.м, комната для персонала 12 кв.м, котельная с постирочной 9 кв.м, холодная кладовая 11,5 кв.м, кладовая
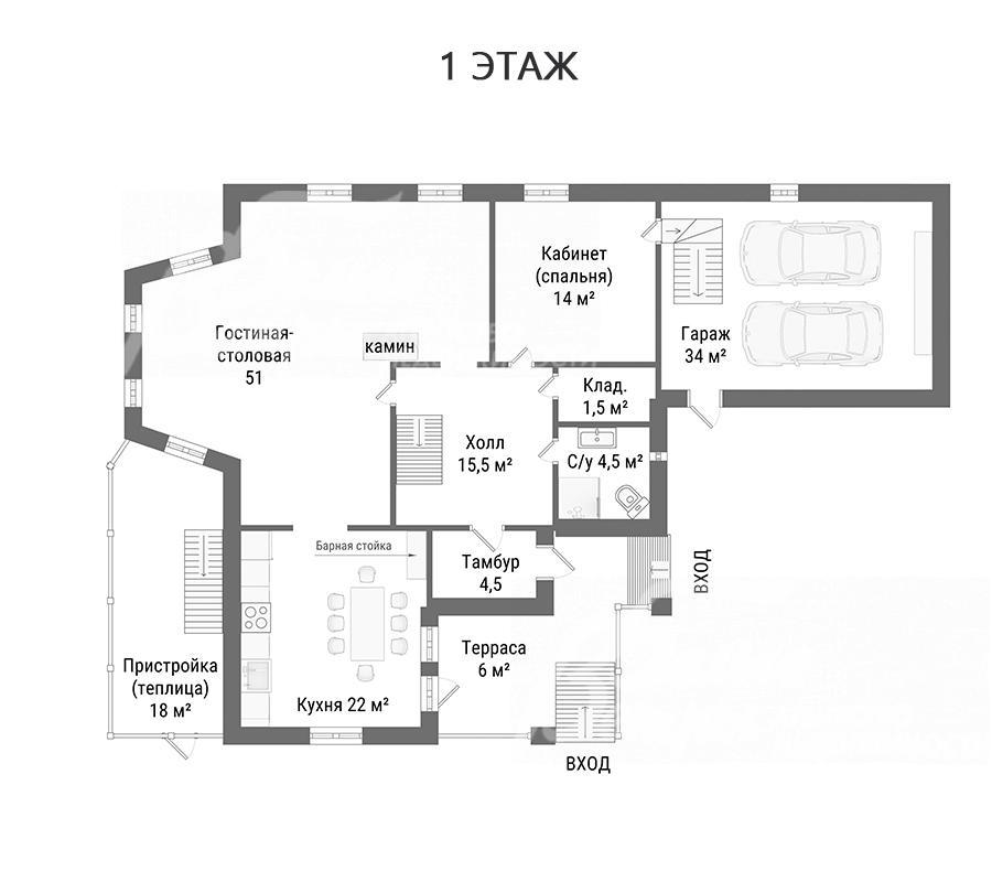
1-ый этаж: тамбур 4,5 кв.м, холл 15,5 кв.м, гостиная-столовая 51 кв.м, кухня 22 кв.м с выходом на террасу 6 кв.м, кабинет (спальня) 14 кв.м, санузел 4,5 кв.м, кладовая 1,5 кв.м, гараж 34 кв.м, пристройка 18 кв.м
2-ой этаж: холл 12 кв.м, галерея 9 кв.м, спальня 33 кв.м с гардеробной 2,5 кв.м и двумя выходами на балкон, спальня 25 кв.м с гардеробной 5,5 кв.м, спальня 14 кв.м с гардеробной, санузел с ванной 5,5 кв.м, санузел 1,5 кв.м, игровая 25,5 кв.м с гардеробной, санузел 2,5 кв.м
Описание внутренней отделки: интерьер дома выполнен в классическом стиле. Стены окрашены, в санузлах – коллекционная импортная плитка. На полу в холле первого этажа и в санузлах - коллекционная плитка (ковер), на кухне – плитка, в других помещениях - кварцвиниловое покрытие («ёлочка»). Потолки из гипсокартона. Установлены стальные панельные радиаторы, ламинированные межкомнатные двери с матовым стеклом, входная дверь ПВХ со стеклом, пластиковые подоконники. На второй этаж ведёт лестница из деревянного бука на стальном каркасе. Гостиную украшает камин с двусторонним порталом, отделанным белым кварцем и серым мрамором. Второй этаж – со сводчатыми мансардными потолками. На полу 1-го этажа и в санузлах 2-го этажа – тёплые полы
Инженерное обеспечение: отопление – через газовый котёл прямого нагрева Dunrirk (Турция); горячее водоснабжение – через газовый накопительный водонагреватель (бойлер) Bradford; установлена многоступенчатая система очистки воды; в спальнях есть кондиционеры; перед домом – система видеоконтроля
Мебель, оборудование: дом укомплектован всей основной мебелью. На кухне – гарнитур со светлыми глянцевыми фасадами молочного цвета со встроенной техникой Bosh (газовая плита, духовой шкаф, посудомоечная машина), холодильник Miele, столешница и барная стойка из кварцевого агломерата (черного цвета с белыми вкраплениями), фартук из плитки. В санузлах установлена сантехника, есть биде или гигиенический душ
Дополнительные строения: деревянная крытая беседка из бруса 2,5×5 м с большим столом на 8 персон, кирпичным мангалом. В беседку проведено освещение
Дополнительная информация о доме: межэтажные перекрытия – железобетонные
Участок
Площадь участка, соток: 11.3
Тип участка: с деревьями
Благоустройство участка: территория участка оформлена по проекту ландшафтного дизайна: дорожки и парковка на 6 автомобилей уложены брусчаткой на бетонном основании, сохранены реликтовые лесные деревья, в том числе сосны, высажены ели
Статус земли: земли населенных пунктов; вид разрешенного использования: для индивидуального жилищного строительства
Дополнительная информация об участке: участок расположен в престижной локации в середине коттеджного посёлка: в тихом живописном месте у леса. Участок огорожен забором
Коммуникации
Газ: есть (магистральный, госкомпания)
Э/э: есть (15 кВт, госкомпания)
Водопровод: центральный (централизованное ВЗУ санатория)
Канализация: централизованная (централизованные очистные санатория)
Телефон: возможно подключение
Интернет: есть (проводной)
Охрана: есть (охраняемый коттеджный посёлок, перед домом – система видеоконтроля)
Описание инфраструктуры
Инфраструктура санатория «Десна» Управления Делами Президента.
Хочу посмотретьПоделитесь с друзьями:
Похожие предложения:
Дом, Лаптево КП, 370 м2, 14.5 сот
Ольховая, Бунинская аллея - от 12 мин на автоДом, Лаптево КП
Калужское ш., 8 км + 4 км
пл. участка: 14.5 сот
пл. дома: 370 м2
меблирован
Спален: 5. С/узлов: 3.
Дом, Ново-Троицкое к/п (Пучково), 377 м2, 15 сот
Киевское шоссе, от МКАД: 21+9 км
Ольховая, Теплый стан - от 21 мин на автоДом, Ново-Троицкое к/п
Калужское ш., 17 км + 3 км
пл. участка: 15 сот
пл. дома: 377 м2
меблирован
Спален: 4. С/узлов: 4.







