Дом, Никольские Озера к/п
Код: 345-821
Особенности объекта
Новый дом под финишную отделку с современной стильной североевропейской архитектурой. Строгоохраняемый коттеджный поселок бизнес-класса на берегу большого озера, граничащий с лесом с другой стороны. Центральные коммуникации. Отличный функционал дома: СПА зона с сауной, хамамом и комнатой отдыха, 5 больших спален с собственными санузлами и гардеробными, большая терраса. Высокие потолки. Выполнена разводка коммуникаций по дому до точек. Установлены радиаторы, теплые полы.
Расположение
Ссылка на карту
Никольские Озера к/п (Филино)
Калужское шоссе, от МКАД: 35 км, всего: 37 км
Тип застройки: сформированный к/п
Метро: Коммунарка, Ольховая, Прокшино; от 34 мин на авто
Коттеджный поселок «Никольские Озера»
Дом
Общая площадь строений: 430 м2
Год постройки дома: 2015
Количество уровней: 2
Спален: 5. С/узлов полных: 6. С/узлов неполных: 1. Комнат всего: 6.
Опции: сауна; терраса; камин; холодный подвал.
Материал стен: керамический блок поризованный Porotherm 38 GL + 100 мм утеплителя (базальтовая вата Rockwoll)
Облицовка стен: цоколь - натуральный камень (песчаник), стены - фиброцементный сайдинг
Кровля: мягкая (водосточная труба металлическая)
Окна: стеклопакеты ПВХ (внутри и снаружи ламинированные под дерево, мансардные окна Velux)
Стадия готовности: под финишную отделку
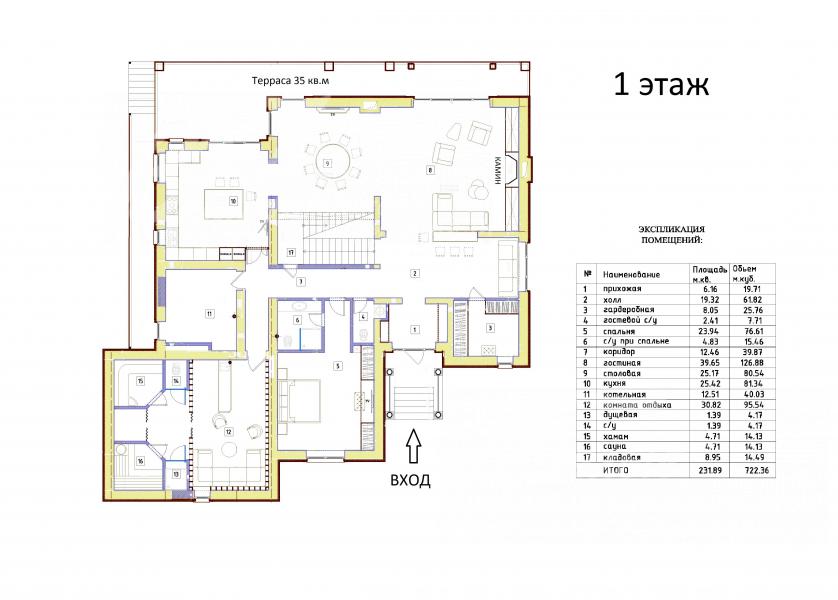
1-ый этаж: крыльцо, прихожая 6 кв.м, холл 19 кв.м, гардеробная 8 кв.м, зона гостиной 40 кв.м с камином и выходом на террасу, зона столовой 25 кв.м, зона кухни 25 кв.м с выходом на террасу, спальня 24 кв.м с санузлом 5 кв.м (душевая), гостевой санузел 2 кв.м, кладовая 9 кв.м, коридор 12 кв.м, СПА зона (комната отдыха 31 кв.м, сауна 5 кв.м, хамам 5 кв.м, туалет 2 кв.м, душевая 1 кв.м), котельная 13 кв.м со своим выходом на улицу;
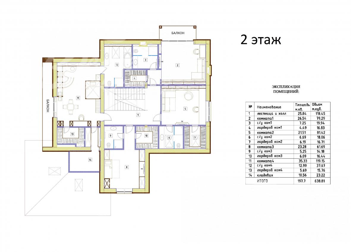
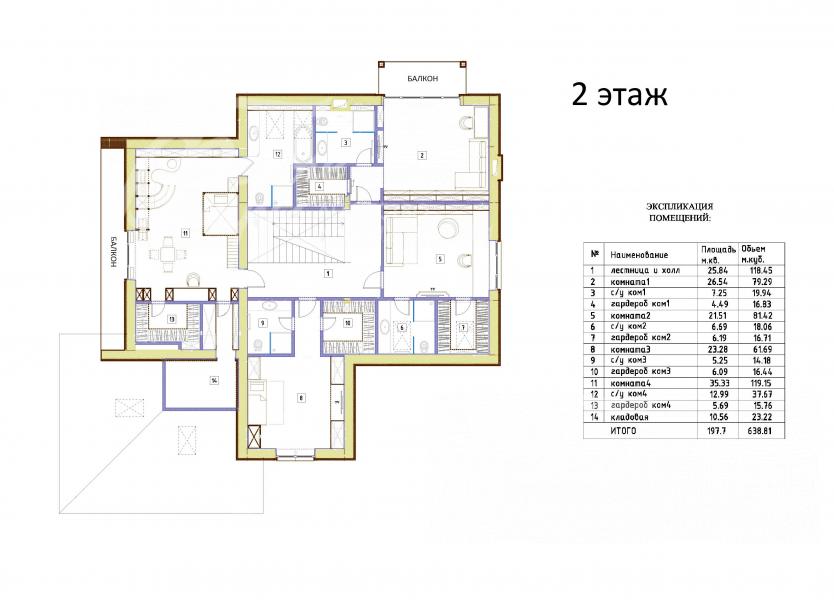
2-ой этаж: холл 26 кв.м, спальня 27 кв.м с санузлом 7 кв.м (душевая), с гардеробной 5 кв.м и выходом на балкон, спальня 22 кв.м с санузлом 7 кв.м (душевая) и с гардеробной 6 кв.м, спальня 23 кв.м с санузлом 5 кв.м (душевая) и гардеробной 7 кв.м, главная спальня 35 кв.м с санузлом 13 кв.м (ванная и душевая), с двумя гардеробными 6 кв.м и 11 кв.м и с выходом на балкон;
Описание внутренней отделки: под финишную отделку. Стены выровнены и отшпаклеваны. На полу залита чистовая стяжка, проложены теплые полы. Широкая ж/б лестница, потолки ГКЛ подвесные разноуровневые. Вся инженерия разведена до точек, радиаторы стальные Stelrad (Нидерланды);
Инженерное обеспечение: газовый котел BUDERUS 60 кВт с электронным блоком управления, бойлер косвенного нагрева BUDERUS на 300 л. Естественно-приточная вентиляция
Дополнительная информация о доме: Фундамент - ж/б монолитная лента, плиты перекрытия ж/б монолитные. Высота потолков: 1 этаж - 3,14 м, 2 этаж - от 2,2 м до 3,8 м.
Участок
Площадь участка, соток: 15
Тип участка: без деревьев
Статус земли: земли населённых пунктов для дачного строительства
Дополнительная информация об участке: участок ровный, правильной формы, находится в центре поселка и огорожен деревянным забором на метал. столбах с бетонным цоколем;
Коммуникации
Газ: есть (магистральный)
Э/э: есть (15 кВт)
Водопровод: центральный
Канализация: централизованная
Интернет: есть (оптоволокно)
Охрана: есть (КПП, ЧОП)
Описание инфраструктуры
При въезде в поселок расположен благоустроенный пляж с песком у озера и прогулочная зона по набережной с ландшафтным парком. Вокруг поселка организовали зеленную трассу в лесу (велосипед, прогулка, зимой лыжи). На территории поселка есть административное здание, где расположены: администрация и служба эксплуатации поселка, детский досуговый центр Family House с мини-детским садом для детей от 3 до 7 лет. Также в центре проходят занятия по йоге, пилатесу, ментальной арифметике, творческие мастер-классы как для детей, так для взрослых: живопись, гончарная мастерская, валяние из шерсти, флористика, лепка из полимерной глины. Есть логопед. Работает супермаркета, винный магазин и пункт выдачи заказов Wildberries, есть банкомат. Организованы детские и спортивные площадки, футбольное поле, площадка для большого тенниса летом, а в зимнее время заливают каток. Есть два прогулочных бульвара с лавочками. Поселок полностью построен, обжит и обеспечен всеми центральными коммуникациями. Внутри поселка широкие и освещаемые дороги. На въезде в поселок установлен контрольно-пропускной пункт с охраной и шлагбаумом. К поселку ведет асфальтированная дорога. Всего в 6 минутах езды на машине находится аэроклуб "Мое небо", где можно полетать на параплане. А для любителей лошадей в 11 минутах расположен конно-спортивный комплекс "Темп". Всего 15 минут на машине, и вы окажетесь в поселке Шишкин Лес, где есть все необходимое для комфортной жизни: государственная школа и детский сад №2075, частные образовательные учреждения, супермаркеты, пункты выдачи заказов, банки и банкоматы, администрация, поликлиника, автомобильный центр и многое другое. А полная городская инфраструктура в поселке Красная Пахра (20 минут на машине) и наукоград Троицк (30 минут на машине).
Элементы положит. окружения
Озеро, лес
Хочу посмотретьПоделитесь с друзьями:
Похожие предложения:
Дом, Лесное Озеро к/п (Кузенёво), 435 м2, 15 сот
Ольховая, Теплый стан - от 29 мин на автоДом, Лесное Озеро к/п
Калужское ш., 25 км + 4 км
пл. участка: 15 сот
пл. дома: 435 м2
под отделку
Спален: 4. С/узлов: 3.




