Дом, Ново-Спасское к/п
Код: 118-814
Особенности объекта
Уютный двухуровневый коттедж "под ключ", утопает в зелени в обжитом коттеджном поселке, окруженном лесом. Видеоролик. Удачная планировка, светлые помещения, великолепные виды. Участок с лесными деревьями, граничит с лесом.
Расположение
Ссылка на карту
Ново-Спасское к/п (Поповка)
Калужское шоссе, от МКАД: 17 км, всего: 27 км
Киевское шоссе, от МКАД: 21 км, всего: 30 км
Тип застройки: обжитой к/п
Метро: Крёкшино, Ольховая, Теплый стан; от 28 мин на авто
Коттеджный поселок «Ново-Спасское»
Дом
Общая площадь строений: 298 м2
Год постройки дома: 2011
Количество уровней: 2
Спален: 4. С/узлов: 2. Комнат всего: 5.
Опции: сауна; терраса; камин; машиномест крытых: 2.
Материал стен: керамзитобетонные блоки+утеплитель
Облицовка стен: декоративная фасадная штукатурка
Кровля: мягкая
Окна: стеклопакеты ПВХ
Стадия готовности: под ключ
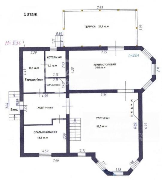
1-ый этаж: холл 14 кв.м, гостиная 53.5 кв.м, кухня-столовая 35.6 кв.м с выходом на террасу 29 кв.м (отделана лиственницей), кабинет-спальня 14.5 кв.м, с/узел, прачечная-кладовая 10 кв.м, котельная 6 кв.м
2-ой этаж: холл 19 кв.м, спальня 24 кв.м, спальня 19.6 кв.м, с/узел 11 кв.м, сауна 11 кв.м, спальня 36 кв.м
Описание внутренней отделки: стены на 1м этаже - декоративная штукатурка, на 2м - обои; пол - паркетная доска, кафель, все полы с водяным подогревом; потолки натяжные тканевые бесшовные, многоуровневые со встроенным светом; лестничный марш деревянный (дубовый массив), двери деревянные
Инженерное обеспечение: котел Beretta, бойлер на 200л; все коммуникации разведены по дому, электрика Niessen; вентиляция естественная приточно-вытяжная, счетчики электричества
Мебель, оборудование: установлена сантехника (пр-во Италия)
Дополнительные строения: Навес на 2 а/м 40 кв.м
Дополнительная информация о доме: Классический архитектурный стиль. Фундамент и перекрытия железобетонные, высота потолков 3 м.
Участок
Площадь участка, соток: 11
Тип участка: лесной (18 берез и елей)
Благоустройство участка: на участке рулонный газон, сделан дренаж, оборудована уличная подсветка дома
Статус земли: земли населенных пунктов, для ИЖС
Дополнительная информация об участке: участок прямоугольной формы, огорожен деревянным забором на металлических столбах, по фасаду - металлический на бетонных столбах
Коммуникации
Газ: есть (магистральный, подключен)
Э/э: есть (15 кВт)
Водопровод: центральный
Канализация: централизованная
Телефон: возможно подключение (МГТС)
Интернет: возможно подключение (высокоскоростной)
Охрана: есть
Описание инфраструктуры
В поселке спортивная площадка, прогулочные пешеходные зоны, детский игровой городок. В г.Троицке : фитнес-центр бизнес-класса с бассейном и теннисными кортами "Резиденция", рестораны, школы, детские сады, развивающие центры для детей (Центр Буракова), больницы
Элементы положит. окружения
Тихое место, прилесной участок, недалеко находится платный пляж п.Первомайское.
Хочу посмотретьПоделитесь с друзьями:
Похожие предложения:
Дом, Цветочный-2 КП, 283 м2, 8 сот
Ольховая, Теплый стан - от 29 мин на автоДом, Цветочный-2 КП
Калужское ш., 24 км + 5 км
пл. участка: 8 сот
пл. дома: 283 м2
меблирован
Спален: 5. С/узлов: 3.




