Дом, Новое Бачурино к/п
Код: 503-312
Особенности объекта
Загородный дом в камерном обжитом поселке всего 8 км от МКАД. Качественная отделка и меблировка с элементами ар-деко. Функциональная планировка. Есть крытая терраса с мангальной зоной, гараж на 2 а/м, большая зона парковки, покрытая брусчаткой. Развитая инфраструктура района Коммунарка, Южное Бутово.
Расположение
Ссылка на карту
Новое Бачурино к/п (Бачурино дер)
Калужское шоссе, от МКАД: 4 км, всего: 7 км
Тип застройки: сформированный к/п
Метро: Ольховая, Бунинская аллея, Теплый стан; от 13 мин на авто
Дом
Общая площадь строений: 300 м2
Год постройки дома: 2012
Количество уровней: 2
Спален: 5. С/узлов: 2. Комнат всего: 6.
Опции: камин; машиномест крытых: 2, в т.ч. в теплом гараже: 2.
Материал стен: кирпич и пеноблок
Облицовка стен: цоколь отделан искусственным камнем, стены оштукатурены
Кровля: мягкая
Окна: стеклопакеты ПВХ
Стадия готовности: меблирован
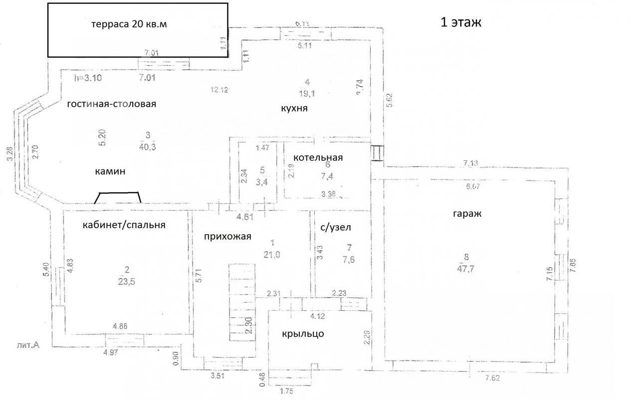
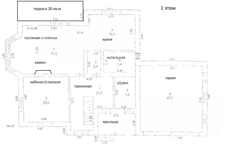
1-ый этаж: Крыльцо, прихожая 21 кв.м, санузел 7.6 кв.м, спальня-кабинет 23.5 кв.м, гостиная-столовая 40 кв.м, кухня 19 кв.м, гардеробная, котельная 7.4 кв.м, гараж 47.7 кв.м, терраса 20 кв.м.
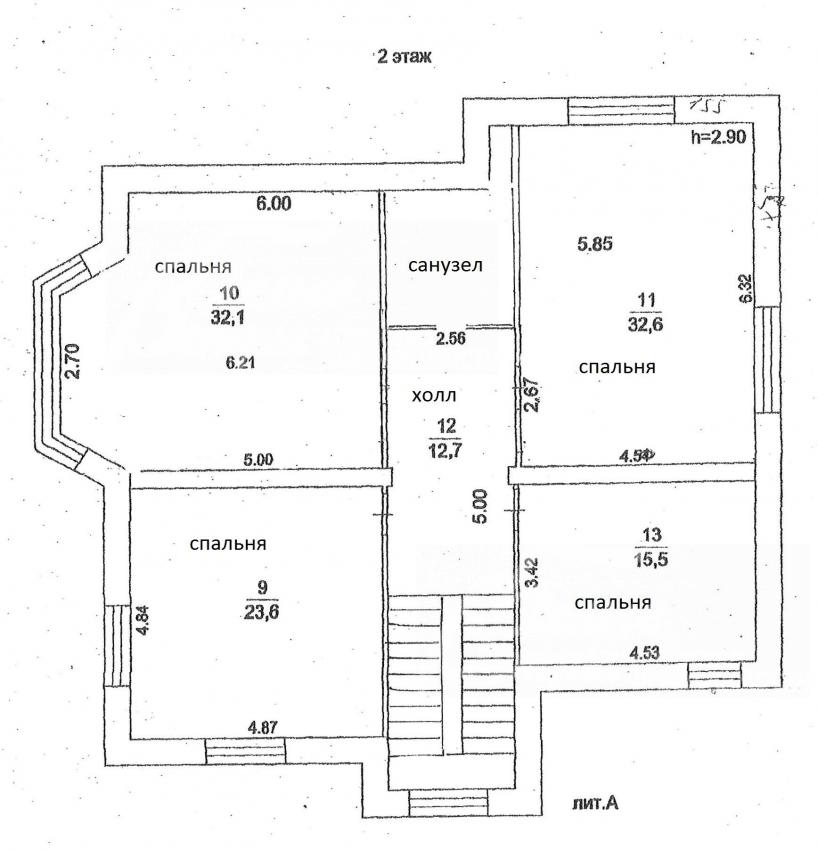
2-ой этаж: Спальня 23.6 кв.м, спальня 32 кв.м, спальня 32.6 кв.м, спальня 15.5 кв.м, санузел, холл 12.7 кв.м.
Описание внутренней отделки: Отделка выполнена в стиле арт деко из качественных итальянских материалов. Стены оклеены бумажными и виниловыми обоями ( пр-ва США). Полы отделаны паркетной доской и плиткой с водяным подогревом на 1 этаже и в санузле на 2 этаже. Лестничный марш -металлический каркас с деревянными ступенями. Потолки оштукатурены и выровнены. Вся сантехника установлена. Все коммуникации разведены под ключ. Радиаторы стальные марки Kermi. Двери дубовые шпонированные.
Инженерное обеспечение: В доме установлен двухконтурный котел марки Protherm мощностью 45 кВт, бойлер косвенного нагрева Protherm на 200 л и бойлер прямого нагрева Baxi. В каждой комнате кондиционеры Electrolux.
Дополнительная информация о доме: Фундамент монолитная плита, перекрытия межэтажные монолитные.
Участок
Площадь участка, соток: 12.7
Тип участка: с деревьями
Благоустройство участка: На участке растут туи и яблони, сделан дренаж,входит в общую ливневку.
Статус земли: Земли поселений для ИЖС
Дополнительная информация об участке: Участок прямоугольной правильной формы, 2 справа, огражден кованым забором в едином стиле поселка с лицевой стороны, по внутренним сторонам деревянным забором.
Коммуникации
Газ: есть
Э/э: есть (15 кВт)
Водопровод: центральный
Канализация: централизованная
Телефон: возможно подключение
Интернет: есть
Описание инфраструктуры
Инфраструктура п.Коммунарка, в 7 км ТЦ "Мега", "Ашан", "Икеа".
Хочу посмотретьПоделитесь с друзьями:
Похожие предложения:
Дом, Лаптево КП, 370 м2, 14.5 сот
Ольховая, Бунинская аллея - от 12 мин на автоДом, Лаптево КП
Калужское ш., 8 км + 4 км
пл. участка: 14.5 сот
пл. дома: 370 м2
меблирован
Спален: 5. С/узлов: 3.
Дом, Милорадово, 370 м2, 11.3 сот
Ольховая, Теплый стан - от 8 мин на автоДом, Милорадово
Калужское ш., 10 км + 1 км
пл. участка: 11.3 сот
пл. дома: 370 м2
меблирован
Спален: 4. С/узлов: 4.








