Продажа дачи, коттеджа, дома на Киевском, Калужском шоссе — цена, описание, фото, расположение на карте.

Дом, Новое Глаголево КП

Снят с реализации

Код: 240-426

Особенности объекта

Дом расположен в центре поселка, в отстроенной части. Полностью готов для проживания. Хороший качественный ремонт.

Расположение

Ссылка на карту
Новое Глаголево КП (Новоглаголево)
Киевское шоссе, от МКАД: 32 км, всего: 37 км
Тип застройки: сформированный к/п
Метро: Филатов луг, Рассказовка, Теплый стан; от 27 мин на авто
Коттеджный поселок «Новое Глаголево»

Дом

Общая площадь строений: 412 м2
Год постройки дома: 2013
Количество уровней: 3
Спален: 5. С/узлов: 3. Комнат всего: 8.
Опции: камин; машиномест крытых: 1, в т.ч. в теплом гараже: 1.
Материал стен: кирпич+утеплитель
Облицовка стен: Голицынский облицовочный кирпич
Кровля: мягкая (Тегола)
Окна: стеклопакеты ПВХ
Стадия готовности: под ключ
1-ый этаж: тамбур, холл 34 кв.м, гостиная 25 кв.м с камином, столовая с эркером 31 кв.м, кухня 20 кв.м, кладовая 6 кв.м, постирочная 8 кв.м, с/узел, котельная 13 кв.м с отдельным входом, гараж 28 кв.м
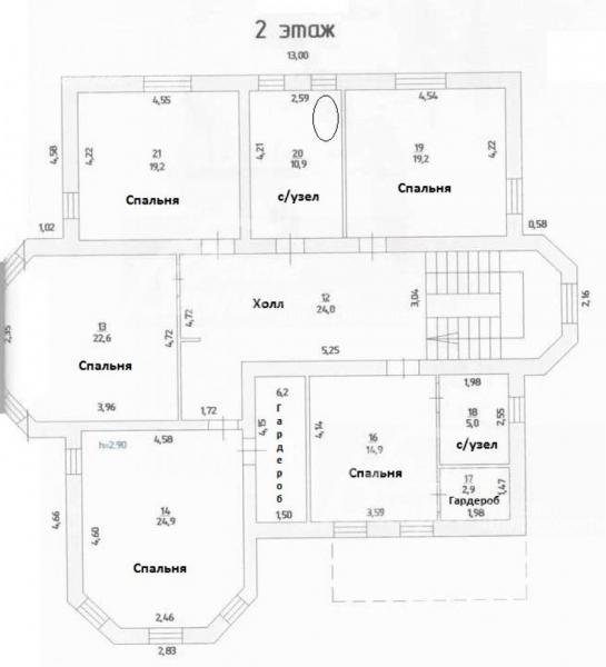
2-ой этаж: холл 24 кв.м, спальня/кабинет 23 кв.м, две спальни по 19 кв.м, с/узел с ванной 11 кв.м, спальня 25 кв.м с гардеробной 6 кв.м, спальня 15 кв.м с гардеробной и с/узлом 5 кв.м с душевой кабиной
3-ий этаж: мансарда - помещение свободного назначения 92 кв.м с мансардными окнами
Описание внутренней отделки: Выполнен хороший ремонт с использованием качественных материалов. Стены оклеены обоями, на 1м этаже - обои под покраску (пр-ва Венгрии); потолки натяжные, пол - паркетная доска Barlinek, в кухне и с/узлах плитка с подогревом (коллекция Kerama Marazzi), в мансарде - ковролин. Лестничный марш железобетонный, отделан дубом. Двери шпонированные.
Инженерное обеспечение: котел Protherm 65 кВт (Чехия), бойлер Reflex на 200 л; все коммуникации разведены по дому, электрика Legrand, установлены радиаторы Kermi
Дополнительная информация о доме: Фундамент ленточный ж/б, перекрытия железобетонные, высота потолков 2.86 - 2.97 м

Участок

Площадь участка, соток: 15
Тип участка: с молодыми деревьями
Благоустройство участка: на участке газон, высажены молодые ели и сосна, площадка перед домом вымощена тротуарной плиткой
Статус земли: земли населенных пунктов, для МЖС
Дополнительная информация об участке: ровный участок прямоугольной формы в центре поселка, по фасаду огорожен кованым забором на бетонных столбах, по бокам и сзади - металлопрофиль

Коммуникации

Газ: есть
Э/э: есть
Водопровод: центральный
Канализация: централизованная
Телефон: возможно подключение
Интернет: возможно подключение
Охрана: есть (ЧОП, КПП, патрулирование территории, видеонаблюдение)

Описание инфраструктуры

В коттеджном поселке или по границе с ним расположены: ресторан на берегу пруда, оборудованный пляж, салон красоты, SPA-салон, зоны релаксации, магазины, спортивные и игровые площадки, прибрежная прогулочная зона, вертолетная площадка, храм Святого Великомученика Пантелеймона. Дороги вымощены брусчаткой, организовано уличное освещение. В пешей доступности находится коттеджный поселок "Глаголево-Парк" с богатой инфраструктурой: фитнес-центр с 25-метровым бассейном, аптека, медпункт, детский сад, школа, банк, магазины, современный кинотеатр, крытый теннисный корт. Так же рядом богатая инфраструктура коттеджной застройки деревни Новоглаголево, в том числе торгово-офисный центр, лечебно-профилактический центр. Удобное транспортное сообщение с Москвой: автобусы, маршрутные такси.

Элементы положит. окружения

Лесной массив расположен в 500 метрах, в 300 метрах - пруд.

Хочу посмотреть


Поделитесь с друзьями:

Собираетесь купить дом, дачу или коттедж на Калужском или Киевском направлении? Обязательно воспользуйтесь услугами компании «Белые Ветры», старейшего оператора загородной недвижимости на Юго-западе Подмосковья!
Рейтинг@Mail.ru