Дом, Огонёк к/п
Код: 222-202
Особенности объекта
Роскошная усадьба воплощенная в классическом стиле в камерном поселке класса люкс, на территории смешанного леса. Витражное остекление, высококачественные материалы строительства, отделки и оборудование, живописные окрестности и прекрасные места для прогулок создают здесь все необходимые условия для комфортного отдыха и проживания.
Расположение
Ссылка на карту
Огонёк к/п (Рассудово)
Киевское шоссе, от МКАД: 36 км, всего: 39 км
Тип застройки: сформированный к/п
Метро: Апрелевка, Рассказовка, Саларьево; от 24 мин на авто
Коттеджный поселок «Огонек (Рассудово)»
Дом
Общая площадь строений: 643 м2
Год постройки дома: 2010
Количество уровней: 4
Спален: 4. С/узлов: 4. Комнат всего: 7.
Материал стен: кирпич
Облицовка стен: штукатурка
Кровля: металлочерепица
Окна: стеклопакеты деревянные
Стадия готовности: под ключ
Цоколь: домашний кинозал 35 кв.м, зона сауны 30 кв.м с парной, хамамом, с/узлом, душевой; теплая кладовая 25.5 кв.м, холодная кладовая 20 кв.м, вещевая кладовая 12 кв.м, котельная 8 кв.м
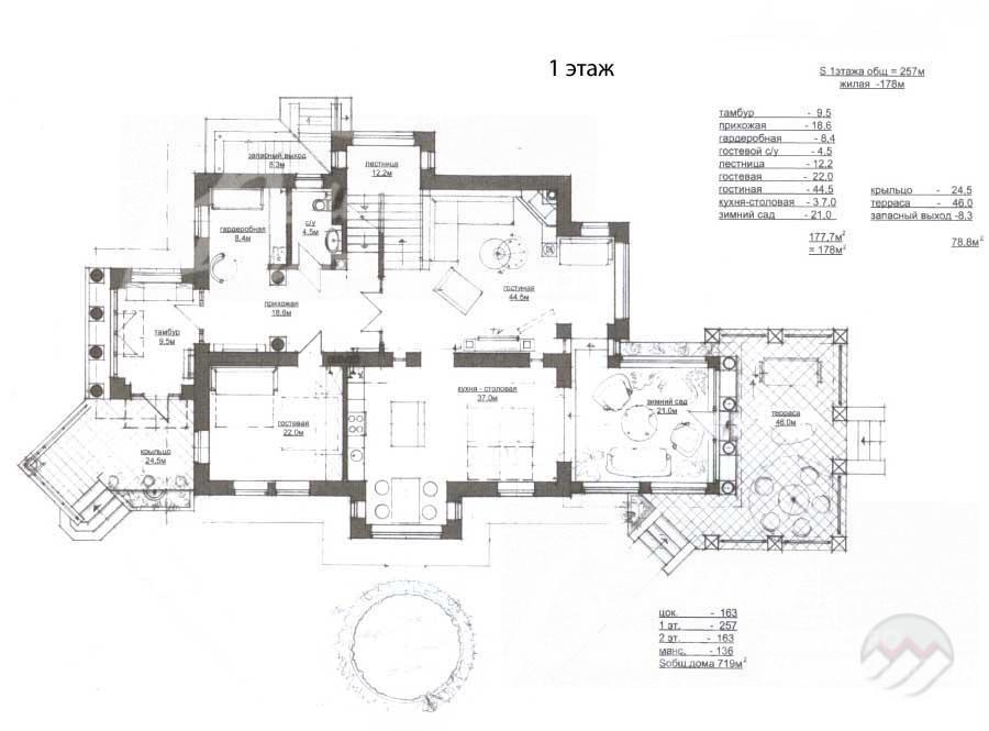
1-ый этаж: крыльцо 24.5 кв.м, тамбур 9.5 кв.м, прихожая 18.5 кв.м, гардеробная 8.4 кв.м, гостиная 44.5 кв.м, кухня-столовая 37 кв.м, зимний сад 21 кв.м, открытая терраса 46 кв.м, гостевая спальня 22 кв.м
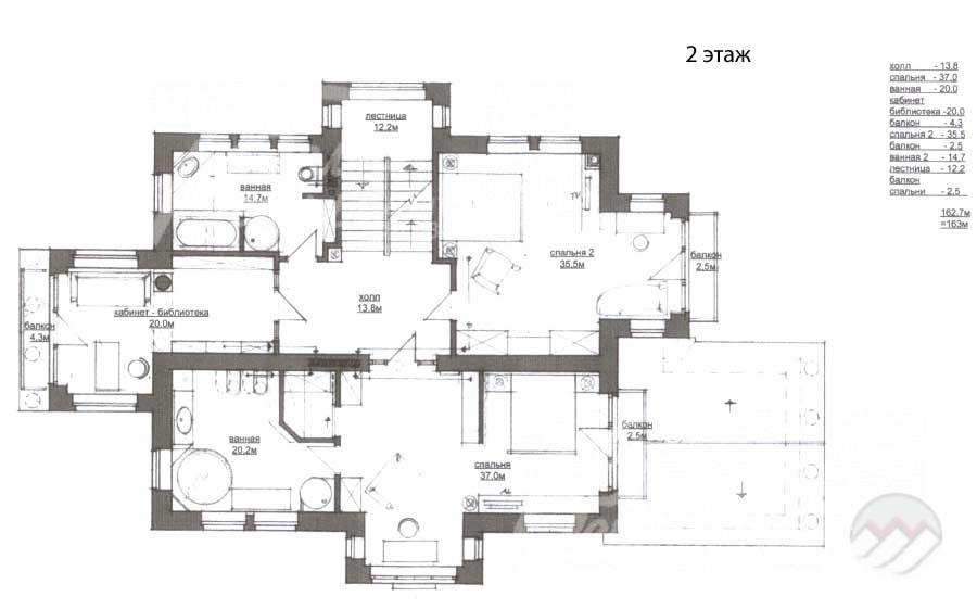
2-ой этаж: холл 14 кв.м, кабинет/библиотека 20 кв.м с балконом. Главная спальня 37 кв.м с будуаром, своей ванной комнатой 20 кв.м и балконом; спальня 35.5 кв.м с балконом, с/узел 15 кв.м
3-ий этаж: комната отдыха 20 кв.м, бильярдная 80 кв.м, тренажерная, с/узел 15 кв.м, кладовая
Описание внутренней отделки: на стенах обои, полы - паркет, плитка; потолки - гипсокартон с подсветкой; лестничный марш деревянный на металлическом каркасе, двери - массив клена с остеклением, подоконники мраморные
Инженерное обеспечение: котел De Dietrich, установлены фильтры очистки воды, приточная вентиляция и система кондиционирования Daikin, счетчики электричества и газа
Мебель, оборудование: в санузлах установлена элитная немецкая сантехника Jacob Delafon, Axor, Duravit
Дополнительные строения: крытая веранда - барбекю 40 кв.м
Дополнительная информация о доме: классический архитектурный стиль; фундамент монолитный, ж/б перекрытия, высота потолков 3.20 м
Участок
Площадь участка, соток: 20
Тип участка: со взрослыми деревьями (ели, сосны, березы)
Благоустройство участка: выполнен ландшафтный дизайн, на участке газон, дорожки выложены камнем, перед домом искусственный прудик; сделан дренаж участка
Статус земли: земли поселений, для ИЖС
Дополнительная информация об участке: участок правильной прямоугольной формы, расположен в центре поселка, огорожен деревянным забором на каменных столбах
Коммуникации
Газ: есть (магистральный)
Э/э: есть (15 кВт, 220/380)
Водопровод: центральный
Канализация: централизованная
Охрана: есть
Элементы положит. окружения
Камерный посёлок в окружении хвойного леса, поблизости есть пруды.
Хочу посмотретьПоделитесь с друзьями:
Похожие предложения:
Дом, Фрунзевец к/п (Апрелевка), 520 м2, 23.7 сот
Апрелевка, Саларьево - от 9 мин на автоДом, Фрунзевец к/п
Киевское ш., 28 км + 1 км
пл. участка: 23.7 сот
пл. дома: 520 м2
меблирован
Спален: 5. С/узлов: 2.



Дом, ВИК к/п (Кузнецово), 600 м2, 20 сот
Апрелевка, Рассказовка - от 25 мин на автоДом, ВИК к/п
Киевское ш., 38 км + 2 км
пл. участка: 20 сот
пл. дома: 600 м2
меблирован
Спален: 5. С/узлов: 6.









