Дом, Околица КП
Код: 571-401
Особенности объекта
Новый дом, современный проект, правильная планировка. Граничит с лесом. Живописный панорамный вид из окон. Новый сформированный охраняемый коттеджный поселок вблизи Старой Москвы
Расположение
Ссылка на карту
Околица ДСК (Докукино д.)
Варшавское шоссе, от МКАД: 30 км, всего: 33 км
Калужское шоссе, от МКАД: 15 км, всего: 40 км
Тип застройки: сформированный к/п
Метро: Ольховая, Теплый стан, Бунинская аллея; от 12 мин на авто
Дом
Общая площадь строений: 374 м2
Год постройки дома: 2014
Количество уровней: 2
Спален: 5. С/узлов полных: 3. С/узлов неполных: 1. Комнат всего: 7.
Опции: терраса; камин; машиномест крытых: 3, в т.ч. в теплом гараже: 3.
Материал стен: кирпич
Облицовка стен: 1 этаж-клинкерный кирпич, 2 этаж-оштукатурено
Кровля: мягкая (кровля Tegola)
Окна: стеклопакеты ПВХ (ламинированные, темные)
Стадия готовности: под ключ
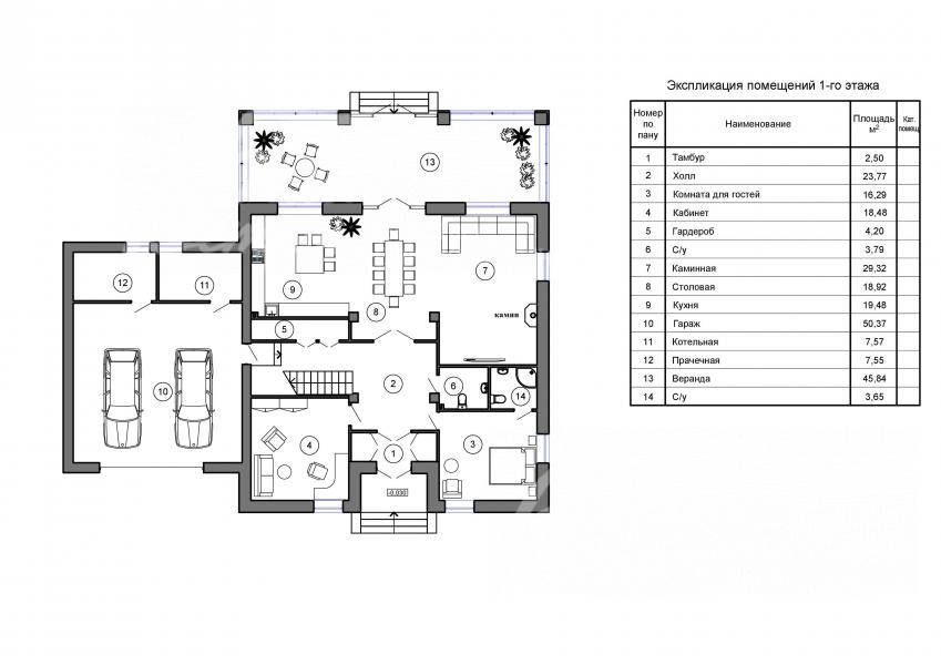
1-ый этаж: Тамбур, холл 24 кв.м, с/узел, кухня 19.5 кв.м, столовая 19 кв.м, гостиная с камином 29 кв.м, комната для гостей 16 кв.м, кабинет 18.5 кв.м, гараж 50.4 кв.м, котельная 7.6 кв.м, прачечная 7.6 кв.м, с/узел, гардероб, веранда 46 кв.м
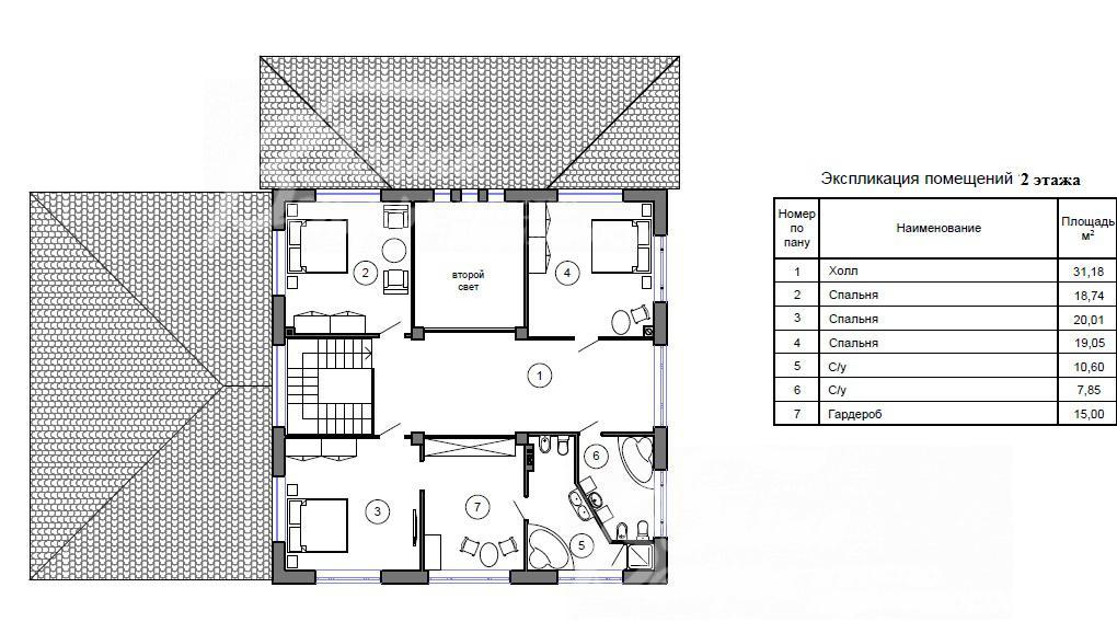
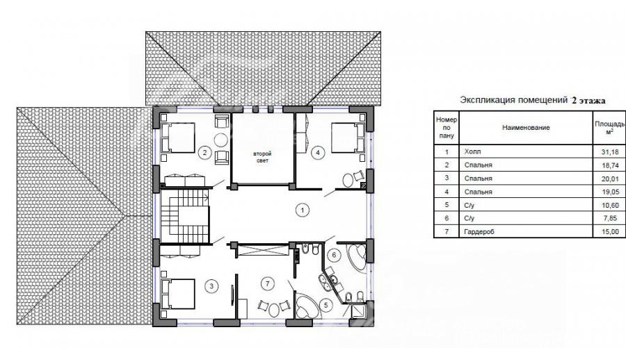
2-ой этаж: Спальня 18.7 кв.м, с/узел 10.6 кв.м, холл 31 кв.м, спальня 20 кв.м, спальня 19 кв.м, с/узел 8 кв.м, гардероб 15 кв.м.
Описание внутренней отделки: Стены оклеены обоями, на полу-плитка и паркетная доска (ясень), потолки натяжные. Лестничный марш отделан брашированным ясенем и ковкой. Все коммуникации разведены под ключ. Вся сантехника установлена марки Growelle, Duravit, Villeroy & Boch и др. Двери деревянные в стиле фьюжн.
Инженерное обеспечение: В доме установлены котел марки BAXI и бойлер марки Reflex на 200 л, в поселке установлена система очистки воды, вентиляция естественная, во всех комнатах кондиционеры марки Electrolux.
Дополнительная информация о доме: Фундамент-монолит 4 несущие колонны, перекрытия межэтажные - монолитная плита, высота потолков от 3 м.
Участок
Площадь участка, соток: 16
Тип участка: прилесной
Благоустройство участка: Участок с газоном, сделан дренаж.
Статус земли: земли населенных пунктов для индивидуального жилищного строительства
Дополнительная информация об участке: Участок прямоугольной формы, расположен в конце поселка, огражден с фасада кованым забором, по бокам деревянным забором на бетонном основании.
Коммуникации
Газ: есть (магистральный)
Э/э: есть (15 кВт)
Водопровод: центральный
Канализация: централизованная
Телефон: возможно подключение
Интернет: возможно подключение
Охрана: есть (КПП на въезде)
Описание инфраструктуры
Инфраструктура внешняя: в п.Коммунарка дошкольные образовательные учреждения, школы, сады, спортивные комплексы, больницы, усадьба Бачурино, церкви. Близко расположен торговый развлекательный центр Мега, Ашан, Икеа.
Хочу посмотретьПоделитесь с друзьями:
Похожие предложения:
Дом, Голицыно-3 КП, 405 м2, 15.2 сот
Киевское шоссе, от МКАД: 32+8 км
Апрелевка, Рассказовка - от 15 мин на автоДом, Голицыно-3 КП
Минское ш., 28 км + 6 км
пл. участка: 15.2 сот
пл. дома: 405 м2
меблирован
Спален: 4. С/узлов: 2.

Дом, Приозерный к/п (Вороново), 350 м2, 13 сот
Варшавское шоссе, от МКАД: 42+2 км
Ольховая, Прокшино - от 39 мин на автоДом, Приозерный к/п
Калужское ш., 39 км + 3 км
пл. участка: 13 сот
пл. дома: 350 м2
меблирован
Спален: 4. С/узлов: 5.

Дом, Европейская долина к/п (Шаганино), 370 м2, 16.6 сот
Варшавское шоссе, от МКАД: 24+5 км
Прокшино, Коммунарка - от 29 мин на автоДом, Европейская долина к/п
Калужское ш., 25 км + 8 км
пл. участка: 16.6 сот
пл. дома: 370 м2
меблирован
Спален: 5. С/узлов: 2.











