Дом, Поляна кп
Снят с реализации
Код: 744-801
Особенности объекта
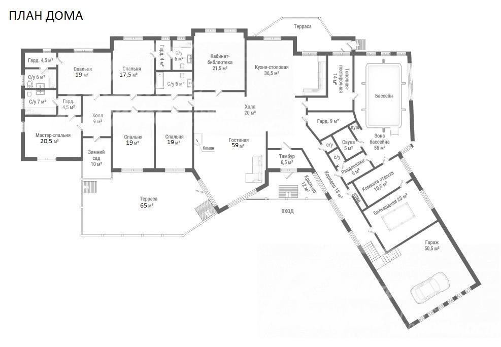
Одноэтажная меблированная резиденция привлекательной архитектуры на великолепном большом участке с профессиональным ландшафтом - множеством разнообразных взрослых деревьев и кустарников, беседками, исскуствеными ручьями с водопадами и фонтанами. В планировке – несколько функциональных зон: в центре - двухсветная гостиная с камином, кухня, столовая и две террасы, выходящие на разные стороны дома; по одну сторону от этой зоны - помещения для отдыха и оздоровления (бассейн с противотоком, сауна, бильярдная, комната отдыха), с другой стороны - приватная зона (5 спален, в том числе три мастер-спальни). Также в доме есть зимний сад, кабинет-библиотека, большой гараж на два авто с системой хранения. В отделке использованы ценные породы дерева, созданы изысканные художественные витражи, панорамное остекление, потолки 3.5м, а второй свет – до 6м. Участок находится в камерном обжитом охраняемом коттеджном посёлке со всеми центральными коммуникациями. Рядом остановка транспорта "По Пути".
Расположение
Ссылка на карту
Поляна кп (Птичное )
Киевское шоссе, от МКАД: 21 км, всего: 29 км
Калужское шоссе, от МКАД: 17 км, всего: 25 км
Тип застройки: обжитой к/п
Метро: Ольховая, Пыхтино, Санино; от 24 мин на авто
Дом
Общая площадь строений: 516 м2
Год постройки дома: 2006 (в этом году завершено строительство дома)
Количество уровней: 1
Спален: 5. С/узлов: 6. Комнат всего: 9.
Опции: бассейн (в доме, размер 6х4 м, глубина от 0,6 до 2 м, переливной, с противотоком); сауна; терраса (2 террасы); камин; машиномест крытых: 2, в т.ч. в теплом гараже: 2; бильярдная, витражи. Есть потенциал для создания второго этажа в высоком чердачном пространстве до 280 кв.м..
Материал стен: кирпич (толщина стены 70 см)
Облицовка стен: Искусственный камень "под кирпич", штукатурка, цоколь - натуральный дикий камень
Окна: деревянные (2хкамерные, дубовые, есть витражное остекление)
Стадия готовности: меблирован (частично)
1-ый этаж: крыльцо 12 кв.м, тамбур-прихожая 7 кв.м, большой холл 24 кв.м, гостиная 59 кв.м с камином и выходом на "уличную" террасу 65 кв.м с фонтаном, кухня-столовая 41.5 кв.м. с выходом на "внутреннюю" террасу 10 кв.м, кабинет-библиотека 26 кв.м., спальня 19 кв.м, спальня 19 кв.м, с/у 7.2 кв.м с ванной и душем, 3 мастер-спальни (17.4 кв.м, 19.1 кв.м, 20.5 кв.м) с с/у и гардеробными, зимний сад 10 кв.м. с выходом на "уличную" террасу, холл-коридор 35 кв.м, серверная-щитовая 4.3 кв.м, с/ 1.5 кв.м;
SPA зона: бассейн 56 кв.м, сауна 5.2 кв.м, комната отдыха 10.6 кв.м, бильярдная 23 кв.м, санузел 1.5 кв.м, душевая, котельная 12.8 кв.м, гараж 50.5 кв.м.
Описание внутренней отделки: дом полностью отделан с использованием премиальных материалов. Пол - массив курупау (Бразилия). Окна, двери и подоконники из массива дуба. Изысканные художественные витражи. Остекление – панорамное, внутрипольные конвекторы. Стены оклеены обоями под покраску, в «мокрых зонах» – итальянская плитка. Потолки оштукатурены, покрашены, карнизы – гипсовые.
Инженерное обеспечение: по дому полностью разведены коммуникации. Система отопления - газовый котел Ferroli (140 кВт), система горячего водоснабжения – бойлер. Установлены: системы очистки и фильтрации воды, системы кондиционирования, сигнализация
Мебель, оборудование: итальянская кухня из массива вишни, столовая из массива ореха, дубовые шкафы. В спальнях – гарнитуры, в санузлах – импортная сантехника (Laufen, Old England, ванны-джакузи Jacuzzi, душевые кабины с гидромассажем Jaccuzzi).
Дополнительные строения: - на главной террасе - крытая беседка
- отдельно стоящая крытая беседка 60 кв. м с освещением, мангалом и дровницей, с водой и канализацией и отдельным санузлом.
- три небольших крытых беседки для отдыха в саду.
- хозяйственный блок 18 кв.м
Дополнительная информация о доме: фундамент дома – ленточный, потолок и перекрытия – ж/б. Высота потолков – 3,5м, в гостиной до 6 метров (выполнен второй свет)
Участок
Площадь участка, соток: 30
Тип участка: с деревьями
Благоустройство участка: на участке выполнен проект паркового ландшафтного дизайна: дорожки вымощены брусчаткой, установлено декоративное освещение, высажены более 200 деревьев: сосны, ели, дальневосточный дуб, клены, липы, сирень, каштан, виноградная лоза вдоль всего дальнего забора. Участок украшает прудик с рыбой, мостик через ручей, фонтан. По периметру участка проходит дренажная система. Есть автополив (несколько зон).
Открытая парковка на 3-4 автомобиля (в дополнение к гаражу на 2 автомобиля).
Статус земли: категория земель - земли населенных пунктов. Вид разрешенного использования - для индивидуального жилищного строительства
Дополнительная информация об участке: участок со всех сторон огорожен забором, въезд – через автоматические ворота. Тихое место вдали от шумных дорог. В 300 м – пруд, в 100 м – лесной массив.
Коммуникации
Газ: есть (магистральный)
Э/э: есть (40 кВт)
Водопровод: центральный
Канализация: централизованная
Телефон: возможно подключение
Интернет: есть (оптоволокно, в том числе подключено спутниковое телевидение)
Охрана: есть (сигнализация в доме, охраняемый коттеджный посёлок)
Описание инфраструктуры
Коттеджный поселок "Поляна" - камерный и охраняемый поселок со всеми необходимыми центральными коммуникациями. Всего в пяти минутах ходьбы находится остановка общественного транспорта "По Пути". А за пять минут на машине (или 20 минут пешком) вы доберетесь до поселка Птичное, где есть все необходимое для комфортной жизни: государственные (№1391) и частные детские сады, школы, Московская комплексная спортивная школа «Новая Москва», поликлиника и аптеки, частные клиники, банки, МФЦ, Дом Культуры "Десна", стадион "Десна", пункты выдачи популярных маркетплейсов, фермерский рынок, рестораны, салоны красоты, почта, банки, автомобильный сервис и автомойка и многое другое. Всего в 15 минутах езды на машине расположен наукоград Троицк с его развитой городской инфраструктурой. А в районе деревни Рогозинино вас ждут школа Внуково, Русская Теннисная Академия, ресторан "Весна", спа-комплекс и парк-отель "Теплеево резорт" с бассейном, бильярдной, ресторанами, возможностью порыбачить, частными школами и детскими садами.
Хочу посмотретьПоделитесь с друзьями:
Похожие предложения:
Дом, Лесной пейзаж КП, 415 м2, 28 сот
Киевское шоссе, от МКАД: 32+14 км
Ольховая, Теплый стан - от 30 мин на автоДом, Лесной пейзаж КП
Калужское ш., 29 км + 9 км
пл. участка: 28 сот
пл. дома: 415 м2
меблирован
Спален: 4. С/узлов: 3.

Дом, Микрорайон К (Троицк), 517 м2, 36.5 сот
Ольховая, Прокшино - от 19 мин на автоДом, Микрорайон К
Калужское ш., 22 км
пл. участка: 36.5 сот
пл. дома: 517 м2
меблирован
Спален: 5. С/узлов: 3.









