Дом, Президент к/п
Код: 166-408
Особенности объекта
Роскошная усадьба, представленная жилым домом и зданием бассейна, в солидном коттеджном поселке на территории реликтового леса (дубы, липы). Прекрасная архитектура, качественные материалы строительства и инженерное оборудование, а также продуманность до мелочей и удобство каждого помещения в доме. Посмотрите видеоролик - оцените усадьбу и живописный вид из окон на участок и поселок.
Расположение
Ссылка на карту
Президент к/п
Калужское шоссе, от МКАД: 8 км, всего: 11 км
Тип застройки: формирующийся к/п
Метро: Бунинская аллея, Ольховая, Теплый стан; от 8 мин на авто
Коттеджный поселок «Президент»
Дом
Общая площадь строений: 887 м2
Год постройки дома: 2011
Количество уровней: 3
Спален: 5. С/узлов: 7. Комнат всего: 10.
Опции: бассейн; квартира для персонала; терраса; камин; машиномест крытых: 3, в т.ч. в теплом гараже: 3.
Материал стен: кирпич
Облицовка стен: штукатурка, цоколь отделан натуральным гранитом
Кровля: мягкая
Окна: стеклопакеты ПВХ (двухкамерные стеклопакеты КБЕ с раскладкой)
Стадия готовности: под отделку
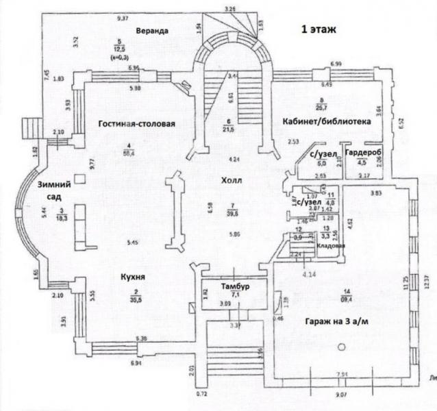
1-ый этаж: гараж на 3 авто 69 кв.м, кладовая, тамбур 7 кв.м, гостевой с/узел 5 кв.м, холл со вторым светом 61 кв.м, гостиная-столовая 56 кв.м, объединенная с кухней 35.5 кв.м, с выходом в зимний сад 18 кв.м, кабинет-библиотека 26 кв.м с с/узлом 5 кв.м и гардеробной 4.5 кв.м, открытая веранда 41.7 кв.м
2-ой этаж: холл 33 кв.м, две зеркально расположенные спальни 19 кв.м (с гардеробной 7.6 кв.м и с/узлом 9 кв.м) и 23 кв.м (с гардеробной 6 кв.м и с/узлом 9 кв.м) каждая с выходом на балкон 23 кв.м; кабинет 17 кв.м, спальня 23.6 кв.м с гардеробной 6 кв.м и с/узлом 18 кв.м, с выходом на балкон 24 кв.м, спальня 17.5 кв.м с гардеробной 4.6 кв.м и с/узлом 5.6 кв.м, кладовая 6.5 кв.м, постирочная 10.6 кв.м
3-ий этаж: бильярдная 41 кв.м, с/узел 13 кв.м, две гардеробные 8 и 6 кв.м, комната отдыха 15 кв.м с выходом на балкон 5 кв.м
Описание внутренней отделки: стены оштукатурены; выполнена черновая стяжка полов; установлен монолитный лестничный марш, широкий с первого на второй этаж, на мансарду установлена временная лестница; в основном доме выполнена временная разводка теплового контура; в гостевом доме полностью выполнена разводка коммуникаций.
Инженерное обеспечение: установлены два котла BUDERUS Logano G215; установлены счетчики воды и электричества; вентиляция естественная приточно-вытяжная
Дополнительные строения: Здание бассейна с блоком для персонала 275.4 кв.м, в нем: зона бассейна с раздевалкой, с/узлом, чаша бассейна длиной 20м и глубиной от 1.4 до 2.5 м, есть место для оборудования сауны; котельная 31 кв.м, генераторная (генератор на 12 кВт); мини-гараж 13 кв.м для хранения техники (с отдельным входом); на 2-ом этаже - квартира для персонала
Дополнительная информация о доме: Дом с монолитным фундаментом, ж/б перекрытиями и высотой потолков 3.5 м.
Участок
Площадь участка, соток: 26
Тип участка: лесной (взрослые березы)
Благоустройство участка: площадка перед домом выложена брусчаткой, организован газон; сделан дренаж участка
Статус земли: земли сельскохозяйственного назначения, для дачного строительства
Дополнительная информация об участке: участок прямоугольной формы с ровным рельефом, расположен в центре поселка и огорожен по фасаду кованым забором на кирпичных столбах, по периметру - забором из сетки
Коммуникации
Газ: есть (магистральный)
Э/э: есть (30 кВт)
Водопровод: центральный (+ скважина 77м)
Канализация: централизованная (+ ливневая)
Интернет: есть (оптоволокно)
Охрана: есть (строгоохраняемый КП)
Описание инфраструктуры
Для жителей поселка обустроены детская площадка, открытая спортивная площадка, гостевая парковка, рекреационные зоны и здание администрации. Территория поселка окружена лесным массивом и граничит с рекой Варваркой, где организована прогулочная зона. У КПП остановка маршрутного такси "По пути", и 500 метров до автобусной остановки. Метро Коммунарка в 3.5 км. В шаговой доступности находится комплекс для фигурного катания с ледовым полем "Самолет Арена". Здесь детско-юношеская школа фигурного катания, три зала общефизической подготовки и хореографии, разминочная зона для прыжков, работает кафе и бесплатная гостевая парковка. Также есть время для игры в хоккей и семейного катания. Рядом расположены супермаркеты ВкусВилл, Магнит и Пятерочка, несколько кафе. В 8 минутах на машине ЖК Бунинские Луга, где находится школа 338, детские сады, поликлиника, фитнес-клубы, рестораны, супермаркеты, салоны красоты. И поселок Воскресенское, где есть все необходимые объекты инфраструктуры - школа, очень хороший диагностический центр, клиника, дом отдыха с пляжем у реки Десны, бассейн, магазины, банки. А в 10 минутах на машине поселок Коммунарка с городской инфраструктурой: школы и детские сады с бассейном № 2070, современная взрослая и детская поликлиника, больница, рестораны и кафе, супермаркеты, салоны красоты, почта, банки и др.
Элементы положит. окружения
Поселок расположен на территории лесного массива, по границе протекает река Варварка.
Хочу посмотретьПоделитесь с друзьями:
Похожие предложения:
Дом, Ели к/п (Фоминское), 820 м2, 33 сот
Киевское шоссе, от МКАД: 14+13 км
Ольховая, Теплый стан - от 20 мин на автоДом, Ели к/п
Калужское ш., 14 км + 4 км
пл. участка: 33 сот
пл. дома: 820 м2
меблирован
Спален: 10. С/узлов: 8.





