Дом, Президент к/п
Код: 166-805
Особенности объекта
Кирпичный коттедж с шикарной планировкой, большими и светлыми помещениями и высокими потолками, расположенный в охраняемом коттеджном поселке премиум-класса, вблизи Москвы. Отличный функционал дома: 6 спален (практически все с санузлами), гостиная со вторым светом и камином, кинотеатр, бильярдная, бассейн, квартира для персонала. В доме выполнена современная отделка с применением качественных материалов. Большой участок с взрослыми лесными деревьями. Все центральные коммуникации.
Расположение
Ссылка на карту
Президент к/п
Калужское шоссе, от МКАД: 8 км, всего: 11 км
Тип застройки: формирующийся к/п
Метро: Бунинская аллея, Ольховая, Теплый стан; от 8 мин на авто
Коттеджный поселок «Президент»
Дом
Общая площадь строений: 888 м2 (дом 793 кв.м + 95 кв.м гараж с квартирой для персонала)
Год постройки дома: 2009
Количество уровней: 4
Спален: 6. С/узлов: 6. Комнат всего: 12.
Опции: бассейн (скиммерный 9х3 м, глубина 1,5 м); сауна; квартира для персонала; терраса; камин; холодный подвал; машиномест крытых: 4, в т.ч. в теплом гараже: 4; второй свет, спортзал, бильярдная, кинотеатр.
Материал стен: кирпич
Облицовка стен: цоколь - дикий камень (песчаник), стены - декоративная штукатурка "Короед", некоторые элементы из искусственного камня
Кровля: цементно-песчаная черепица (Brass)
Окна: стеклопакеты ПВХ (2-х камерные, ламинированные под дерево с двух сторон, тонированные)
Стадия готовности: меблирован
Цоколь: спортзал 30 кв.м, с душевой 4 кв.м, кладовая 6 кв.м, сушка 16 кв.м, постирочная 9 кв.м, тех.комната бассейна 12 кв.м. холл 31 кв.м, санузел 4 кв.м, гардеробная 12 кв.м, коридор 13 кв.м, котельная 15 кв.м.
Квартира для персонала: коридор 4 кв.м, санузел 5 кв.м, жилая комната 11 кв.м.
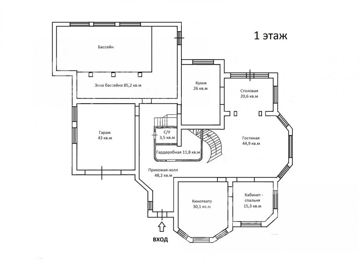
1-ый этаж: зона бассейна 85 кв.м с сауной с душевой и с выходом на террасу, гостиная 45 кв.м с панорамным остеклением и со вторым светом, столовая 21 кв.м с выходом на террасу 61 кв.м, кухня 26 кв.м, кинотеатр 30 кв.м, кабинет-спальня 15 кв.м, санузел 4 кв.м, холл-прихожая 48 кв.м, гардеробная 12 кв.м, гараж 43 кв.м.
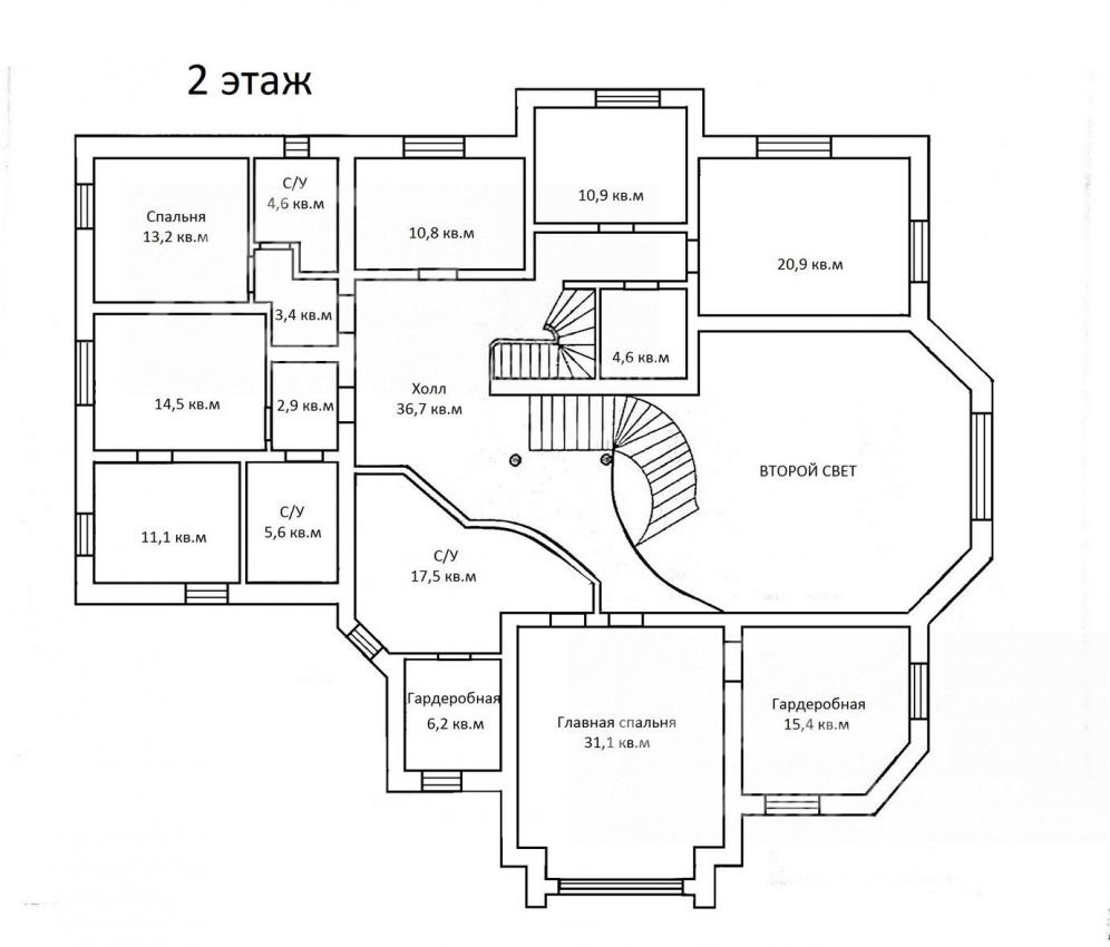
2-ой этаж: гл. спальня 31 кв.м с санузлом 24 кв.м и с гардеробной 15 кв.м, коридор 3 кв.м, спальня 15 кв.м с санузлом 11 кв.м и с гардеробной 6 кв.м, коридор 3 кв.м, спальня 13 кв.м с санузлом 5 кв.м, спальня-кабинет 11 кв.м, спальня 21 кв.м с санузлом 11 кв.м и с гардеробной 5 кв.м, холл 37 кв.м.
3-ий этаж: бильярдная 61 кв.м.
Описание внутренней отделки: современная отделка из дорогостоящих материалов с сочетанием преимущественно светлых оттенков с элементами темно коричневого цвета. На стенах декоративная штукатурка "Венецианка", в санузлах и технических помещениях - плитка. На полу керамогранит и плитка с водяным подогревом, в жилых зонах половая доска из массива канадского ореха (18 мм) и тиковая доска из массива (18 мм). Лестница ж/б закругленная шириной 1,2 м, ступени дубовые, перила - художественная ковка. Потолки подвесные ГКЛ, многоуровневые с различной подсветкой. Вся сантехника установлена ведущих брендов - Jacob Delafon, CEZARES, Santek и т.д. Все коммуникации разведены, разводка труб в котельной выполнена из меди, радиаторы стальные Керми, э/э Lengrand дизайнерская. Двери из массива дуба Италия (разборные).
Инженерное обеспечение: в доме установлены газовый котел Buderus на 100 кВт с электронным управлением (можно управлять через моб.телефон), бойлер косвенного нагрева Buderus на 300 л. Многоступенчатая система очистки воды. В зоне бассейна система приточно-вытяжной вентиляции с преднагревом и осушением
Дополнительная информация о доме: дом выполнен в классическом архитектурном стиле. Фундамент ж/б монолитная чаша, плиты перекрытия ж/б монолитные. Высота потолков: цокольный этаж - 2,6 м;1 этаж - 3,3 и 7 м (второй свет); 2 этаж - 3,05 м; мансардный этаж - от 2,9 до 3,9 м.
Участок
Площадь участка, соток: 27
Тип участка: лесной
Благоустройство участка: березы, липы и несколько дубов. Дорожки и газон.
Статус земли: земли населенных пунктов для дачного строительства
Дополнительная информация об участке: участок прямоугольной формы в центре поселка огорожен забором - спереди каменный с ковкой, с других сторон деревянный.
Коммуникации
Газ: есть (магистральный)
Э/э: есть (25 кВт)
Водопровод: центральный
Канализация: централизованная
Телефон: возможно подключение
Интернет: есть (оптоволокно)
Охрана: есть (строгая КПП + патрулирование + видеонаблюдение)
Описание инфраструктуры
Для жителей поселка обустроены детская площадка, открытая спортивная площадка, гостевая парковка, рекреационные зоны и здание администрации. Территория поселка окружена лесным массивом и граничит с рекой Варваркой, где организована прогулочная зона. У КПП остановка маршрутного такси "По пути", и 500 метров до автобусной остановки. Метро Коммунарка в 3.5 км. В шаговой доступности находится комплекс для фигурного катания с ледовым полем "Самолет Арена". Здесь детско-юношеская школа фигурного катания, три зала общефизической подготовки и хореографии, разминочная зона для прыжков, работает кафе и бесплатная гостевая парковка. Также есть время для игры в хоккей и семейного катания. Рядом расположены супермаркеты ВкусВилл, Магнит и Пятерочка, несколько кафе. В 8 минутах на машине ЖК Бунинские Луга, где находится школа 338, детские сады, поликлиника, фитнес-клубы, рестораны, супермаркеты, салоны красоты. И поселок Воскресенское, где есть все необходимые объекты инфраструктуры - школа, очень хороший диагностический центр, клиника, дом отдыха с пляжем у реки Десны, бассейн, магазины, банки. А в 10 минутах на машине поселок Коммунарка с городской инфраструктурой: школы и детские сады с бассейном № 2070, современная взрослая и детская поликлиника, больница, рестораны и кафе, супермаркеты, салоны красоты, почта, банки и др.
Элементы положит. окружения
Вблизи расположен лесной массив, река Сосенка, очень тихое место.
Хочу посмотретьПоделитесь с друзьями:
Похожие предложения:
Дом, Вузсервис к/п (Большое Покровское), 733 м2, 27 сот
Филатов луг, Рассказовка - от 18 мин на автоДом, Вузсервис к/п
Киевское ш., 15 км + 2 км
пл. участка: 27 сот
пл. дома: 733 м2
меблирован
Спален: 4. С/узлов: 3.

Дом, Пенино, 790 м2, 24 сот
Киевское шоссе, от МКАД: 7+10 км
Ольховая, Теплый стан - от 13 мин на автоДом, Пенино
Калужское ш., 11 км + 2 км
пл. участка: 24 сот
пл. дома: 790 м2
меблирован
Спален: 6. С/узлов: 5.


Дом, Искра к/п (Ватутинки), 720 м2, 21 сот
Ольховая, Теплый стан - от 12 мин на автоДом, Искра к/п
Калужское ш., 16 км + 1 км
пл. участка: 21 сот
пл. дома: 720 м2
меблирован
Спален: 5. С/узлов: 5.


Дом, Богородское КП (Городище), 867 м2, 25 сот
Ольховая, Теплый стан - от 8 мин на автоДом, Богородское КП
Калужское ш., 10 км + 2 км
пл. участка: 25 сот
пл. дома: 867 м2
меблирован
Спален: 7. С/узлов: 6.
















