Продажа дачи, коттеджа, дома на Киевском, Калужском шоссе — цена, описание, фото, расположение на карте.

Дом, Прокшино

Снят с реализации

Код: 359-403

Особенности объекта

Очень интересный коттедж, выполненный по оригинальному проекту, на ухоженном участке, в тихом обжитом месте, вблизи Москвы. В современном стиле, функциональная планировка, просторные и светлые помещения, высокие потолки и широкая лестница. Обзорные виды из окон на живописные окрестности. Лесной массив, озеро.

Расположение

Ссылка на карту
Прокшино (Дубровка)
Калужское шоссе, от МКАД: 6 км, всего: 7 км
Тип застройки: коттеджная застройка
Метро: Прокшино, Ольховая, Теплый стан; от 18 мин пешком

Дом

Общая площадь строений: 471.7 м2
Год постройки дома: 2010
Количество уровней: 3
Материал стен: керамзитобетонные блоки+утеплитель
Облицовка стен: штукатурка
Кровля: мягкая
Окна: стеклопакеты ПВХ
Стадия готовности: под финишную отделку
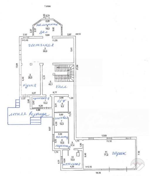
1-ый этаж: прихожая с большим окном 10 кв.м; холл 43 кв.м; кухня 26 кв.м с выходом на летнюю веранду 18 кв.м, объединенная с гостиной 61 кв.м; каминный зал 18 кв.м с выходом на участок, с/узел 9 кв.м, кабинет 12.5 кв.м, комната для персонала 10.6 кв.м, котельная с /узлом17 кв.м, гараж на 2 авто с большой кладовой 71 кв.м
2-ой этаж: спальня хозяев 28 кв.м со своими с/узлом 12 кв.м, гардеробной 9 кв.м и выходом на балкон 13 кв.м, две спальни 17 и 18 кв.м, с/узел 9 кв.м
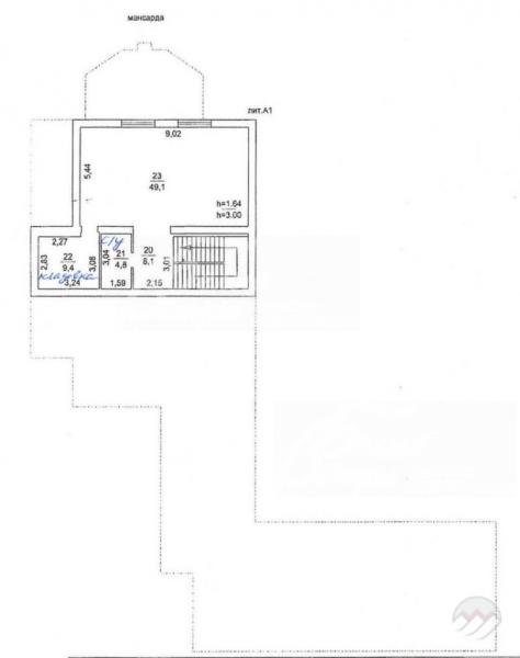
3-ий этаж: мансарда - зал 49 кв.м (можно разделить на две комнаты), кладовая 9 кв.м, с/узел 5 кв.м
Описание внутренней отделки: стены оштукатурены, ошпаклеваны; полы - под финишную отделку, теплые полы на кухне и в с/узлах; потолки - гипсокартон со встроенным освещением; лестничный марш монолитный шириной 1.3 м; ламинированные под дерево подоконники; выполнена разводка коммуникаций, установлены радиаторы
Инженерное обеспечение: котел Protherm (дизель), бойлер Hojdu(Венгрия); установлены счетчики воды и электричества
Дополнительные строения: летняя веранда; организована площадка для стоянки 3 а/м
Дополнительная информация о доме: фундамент ленточный бетонный, перекрытия - ж/б плиты; высота потолков ок.3 м,

Участок

Площадь участка, соток: 15
Тип участка: без деревьев
Благоустройство участка: организован газон, освещение участка, выложены дорожки
Статус земли: земли населенных пунктов, для ведения личного подсобного хозяйства
Дополнительная информация об участке: ровный участок, по фасаду огорожен кирпичным забором с цоколем и фундаментом, по периметру металлический забор

Коммуникации

Газ: есть
Э/э: есть (15 кВт)
Водопровод: индивид. скважина (70 м)
Канализация: автономная (Топас)
Охрана: нет (планируется охрана)

Описание инфраструктуры

Вся инфраструктура к/п Дубровка.

Элементы положит. окружения

Недалеко от участка расположен лесной массив.

Хочу посмотреть


Поделитесь с друзьями:

Похожие предложения:

Дом, Студенцы д. , 528 м2, 12.2 сот

код: 731-401
Варшавское шоссе, от МКАД: 15+6 км
Калужское шоссе, от МКАД: 19+13 км
Метро Бунинская аллея, Остафьево - от 14 мин на авто
под чистовую отделку, спален: 8, с/узлов: 4
Участок с лесомОбъект у воды

Дом, Студенцы д.

Код объекта: 731-401
Варшавское ш., 15 км + 6 км
пл. участка: 12.2 сот
пл. дома: 528 м2
под чистовую отделку
Спален: 8. С/узлов: 4.
Участок с лесомОбъект у воды
28 000 000 
Собираетесь купить дом, дачу или коттедж на Калужском или Киевском направлении? Обязательно воспользуйтесь услугами компании «Белые Ветры», старейшего оператора загородной недвижимости на Юго-западе Подмосковья!
Рейтинг@Mail.ru