Дом, Рассказовка к/п
Код: 211-207
Особенности объекта
Стильная современная усадьба в респектабельном, полностью готовом коттеджном поселке, выполненном в едином архитектурном стиле. Просторный участок с лесными деревьями и живописным видом на реку.
Расположение
Ссылка на карту
Рассказовка к/п (Рассказовка)
Боровское шоссе, от МКАД: 8 км, всего: 9 км
Киевское шоссе, от МКАД: 7 км, всего: 10 км
Тип застройки: сформированный к/п
Метро: Филатов луг, Рассказовка, Саларьево; от 6 мин на авто
Коттеджный поселок «Рассказовка»
Дом
Общая площадь строений: 440 м2
Год постройки дома: 2006
Количество уровней: 2
Спален: 4. С/узлов: 4. Комнат всего: 7.
Опции: терраса; камин; машиномест крытых: 2, в т.ч. в теплом гараже: 2; второй свет, французские балконы.
Материал стен: кирпич
Облицовка стен: штукатурка, для отделки цоколя и части стен использован искусственный камень камень
Кровля: мягкая
Окна: стеклопакеты дерево-алюминий (панорамное остекление (окна от пола))
Стадия готовности: под ключ
1-ый этаж: Крыльцо, прихожая, холл 22 кв.м, кухня 11 кв.м, столовая 28 кв.м, гостиная с камином 60 кв.м и выходом на террасу 48 кв.м, кабинет 22 кв.м, прачечная, санузел, котельная, гараж на 2 а/м 46 кв.м
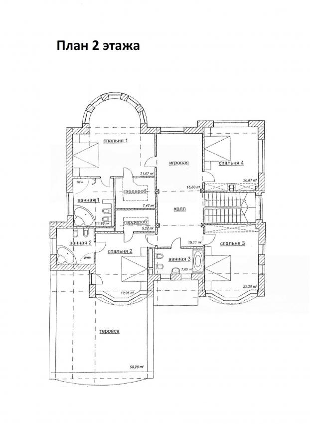
2-ой этаж: Холл 24 кв.м, гостиная со вторым светом, спальня 30 кв.м с гардеробной 7 кв.м и ванной комнатой 12 кв.м, спальня 29, спальня 22 кв.м санузел 8 кв.м
Описание внутренней отделки: Выполнен качественный ремонт в стиле "Хай-тек". Стены оштукатурены, оклеены обоями, использована современная плитка, на полах выложен массив (доска), в санузлах - плитка, установлена сантехника Villeroy & Boch, Huppe; электрика Schneider Electric, конвекторы внутриполные, радиаторы Kermi, потолки - гипсокартон с подсветкой, двери высотой 2.3 м, и подоконники деревянные, установлена охранно-пожарная сигнализация
Инженерное обеспечение: В доме смонтирована «под ключ» система отопления: газовый котёл “WOLF” 100 кВт, бойлер горячей воды Reflex на 200 л, радиаторы отопления Kermi, конвекторы внутриполные
Мебель, оборудование: Встроенная кухня белого цвета с акриловым покрытием оснащена бытовой техникой: 2 холодильника lIEBHER, посудомоечная машина, СВЧ, духовой шкаф, вытяжка, варочная панель, Bosch, люстры и светильники
Дополнительная информация о доме: свободная планировка, большие окна, просторные террасы, французские балконы, изысканный декор фасада. Использованы декоративные элементы из камня и дерева ценных пород, высота потолков 3.6 м
Участок
Площадь участка, соток: 25 (с видом на реку Алешинка)
Тип участка: С лесными деревьями
Благоустройство участка: Участок выровнен и спланирован. На участке взрослые лесные деревья (березы и вязы- 10 шт)
Статус земли: ИЖС
Дополнительная информация об участке: Участок огорожен забором
Коммуникации
Газ: есть (Магистральный)
Э/э: есть (25 кВт)
Водопровод: центральный (Собственная артезианская скважина)
Канализация: централизованная
Телефон: есть (Московский)
Интернет: возможно подключение
Охрана: есть
Ипотека:
возможна
Описание инфраструктуры
Административное здание, детская комната, продуктовый магазин, кафе
Элементы положит. окружения
Коттеджный поселок расположен в лесном массиве вблизи легендарного стародачного п. Переделкино. Тихое, живописное место.
Хочу посмотретьПоделитесь с друзьями:
Похожие предложения:
Дом, Околица ДСК (Докукино д.), 368.9 м2, 23.75 сот
Ольховая, Теплый стан - от 12 мин на автоДом, Околица ДСК
Калужское ш., 4 км + 3 км
пл. участка: 23.75 сот
пл. дома: 368.9 м2
под ключ
Спален: 2. С/узлов: 2.



