Продажа дачи, коттеджа, дома на Киевском, Калужском шоссе — цена, описание, фото, расположение на карте.

Дом, Расторопово

Снят с реализации

Готовый к проживанию дом 341 кв.м в Расторопово

Код: 335-410

Особенности объекта

Тихое, уютное, обжитое место рядом со старой Москвой, в 3 км вся инфрастуктура (аптеки, магазины, общ. транспорт)

Расположение

Ссылка на карту
Расторопово
Калужское шоссе, от МКАД: 8 км, всего: 14 км
Тип застройки: коттеджная застройка
Метро: Прокшино, Теплый стан, Бунинская аллея; от 14 мин на авто

Дом

Общая площадь строений: 341 м2
Год постройки дома: 2010
Количество уровней: 3
Спален: 6. С/узлов: 2. Комнат всего: 7.
Опции: терраса; камин; машиномест крытых: 1, в т.ч. в теплом гараже: 1.
Материал стен: пеноблоки
Облицовка стен: пеноблоки + облицовочный кирпич
Кровля: металлочерепица
Окна: стеклопакеты ПВХ
Стадия готовности: под чистовую отделку
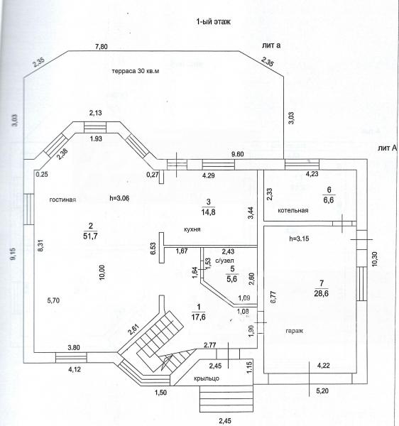
1-ый этаж: гостиная 52 кв.м, кухня 15 кв.м, коридор 17.6 кв.м, котельная, гараж 29 кв.м, санузел 5.6 кв.м, терраса 30 кв.м
2-ой этаж: спальня 23.5 кв.м, спальня 20.4 кв.м, спальня 26.5 кв.м, жилая 17 кв.м, санузел 14 кв.м, санузел 5 кв.м, коридор 15.5 кв.м, балкон.
3-ий этаж: мансарда: 2 комнаты по 20 кв.м, кладовая 15 кв.м
Описание внутренней отделки: Дом жилой. Стены окрашены и оклеены обоями, на полу ламинат. Лестничный марш монолитный, отделан плиткой. Все коммуникации разведены под ключ.
Дополнительная информация о доме: Фундамент-монолитная плита, перекрытия монолитные. Высота потолков от 3м.

Участок

Площадь участка, соток: 10
Тип участка: без деревьев
Статус земли: Земли поселений, СНТ
Дополнительная информация об участке: Участок огражден металлическим забором высотой 2 м на кирпичных столбах

Коммуникации

Газ: есть
Э/э: есть (15 кВт)
Водопровод: индивид. скважина
Канализация: автономная (Топаз)
Интернет: возможно подключение (за дополнительную плату)

Описание инфраструктуры

Инфраструктура поселка Воскресенское (школа, детский сад, магазины, рынок и др.)

Хочу посмотреть


Поделитесь с друзьями:

Собираетесь купить дом, дачу или коттедж на Калужском или Киевском направлении? Обязательно воспользуйтесь услугами компании «Белые Ветры», старейшего оператора загородной недвижимости на Юго-западе Подмосковья!
Рейтинг@Mail.ru