Дом, Рогозинино
Код: 419-202
Особенности объекта
Дом в классическом стиле с функциональной планировкой, с санузлом в каждой спальни, дорогие отделочные материалы, установлены кухня и сантехника. Отдельно стоящие бревенчатая банька и гараж. В пешей доступности магазин Перекресток, остановки общественного транспорта. Через дорогу частная школа и детский сад, Русская Академия тенниса.
Расположение
Ссылка на карту
Рогозинино
Киевское шоссе, от МКАД: 21 км, всего: 25 км
Калужское шоссе, от МКАД: 17 км, всего: 28 км
Тип застройки: обжитой к/п
Метро: Рассказовка, Филатов луг, Теплый стан; от 20 мин на авто
Дом
Общая площадь строений: 364 м2 (+ гараж 60.4 кв.м + баня 20 кв.м)
Год постройки дома: 2012
Количество уровней: 3
Спален: 4. С/узлов: 5. Комнат всего: 7.
Опции: баня; квартира для персонала; камин; машиномест крытых: 1, в т.ч. в теплом гараже: 1; бильярдная.
Материал стен: кирпич + пенопласт 10 см
Облицовка стен: оштукатурены и окрашены
Кровля: мягкая
Окна: стеклопакеты ПВХ
Стадия готовности: под ключ
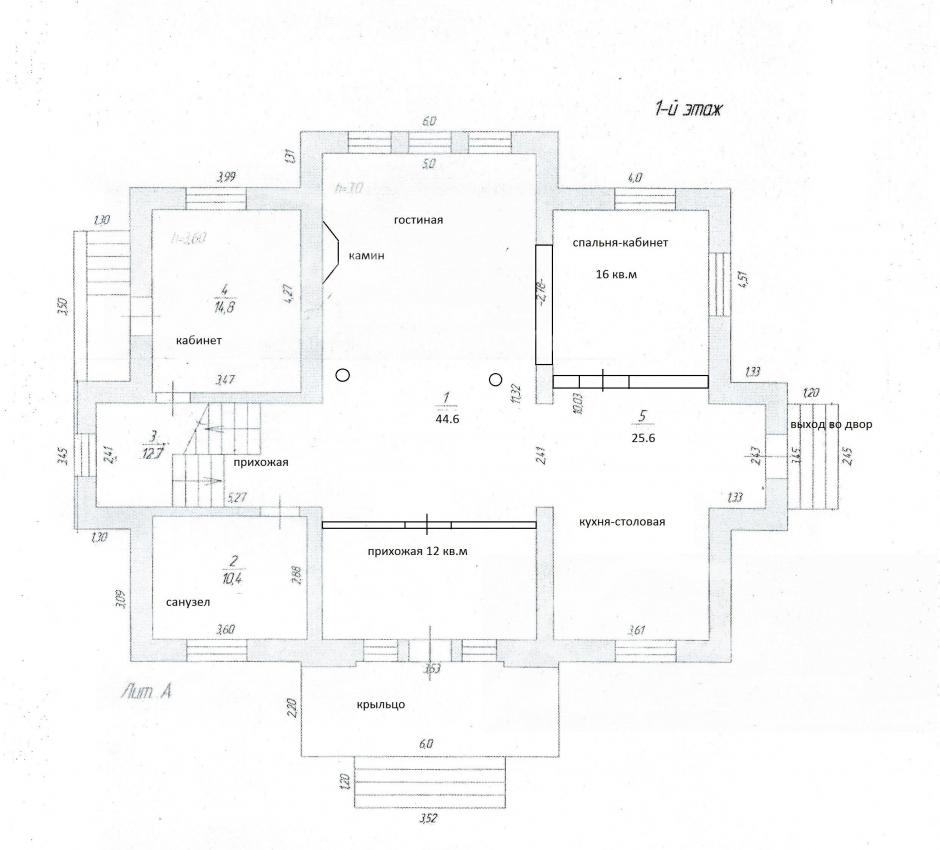
1-ый этаж: Прихожая 12 кв.м, гостиная 44.6 кв.м, спальня-кабинет 16 кв.м, кухня-столовая 25.6 кв.м, кабинет 15 кв.м, санузел 10.4 кв.м, прихожая 12.7 кв.м.
2-ой этаж: Спальня 26 кв.м, санузел 10.4 кв.м, холл 14 кв.м, санузел с гардеробной 15 кв.м, главная спальня 28.4 кв.м, санузел 10 кв.м, спальня 29 кв.м.
3-ий этаж: Бильярдная 74.4 кв.м, санузел 11 кв.м, кладовая 8 кв.м
Описание внутренней отделки: Внутренние стены отделаны в едином стиле из итальянских материалов- аналога венецианской штукатурки. На полу плитка и дубовый паркет. Потолки из гипсокартона, окрашены, местами в 2 уровня с подсветкой. Лестничный марш железобетонный, ступени отделаны керамогранитом с кованым ограждением. Все коммуникации разведены под ключ. Двери деревянные из сосны, шпонированные. Вся сантехника установлена импортная марок BelBagno, Migliore, Roca.
Инженерное обеспечение: В доме установлены котел Buderus на 50 кВт и бойлер Buderus на 250 л. Система очистки воды многоступенчатая. Вентиляция естественная, в том числе установлена вытяжная вентиляция в жилых комнатах и кондиционеры Goldstar.
Мебель, оборудование: Оборудование кухни марки Smeg.
Дополнительные строения: Гараж 29 кв.м, квартира для персонала 26 кв.м, щитовая, баня 20 кв.м из калиброванного бревна, беседка-барбекю, фонтан.
Дополнительная информация о доме: Фундамент монолитный на железобетонной плите, перекрытия железобетонные монолитные
Участок
Площадь участка, соток: 15
Тип участка: с деревьями
Благоустройство участка: На участке разбит газон, сделаны клумбы, дорожки, большая парковка, установлен гранитный фонтан. По периметру дома и участка организована ливневая канализация.
Статус земли: земли населенных пунктов для ИЖС
Дополнительная информация об участке: Участок прямоугольной формы, расположен в середине поселка, огражден забором из металлопрофиля с бетонными столбами на бетонной основе.
Коммуникации
Газ: есть (магистральный)
Э/э: есть (20 кВт)
Водопровод: индивид. скважина (64 м)
Канализация: автономная (на 7 человек)
Описание инфраструктуры
Рядом остановка общественного транспорта до поселка Первомайское, метро Саларьево, МЦД Крекшино и тд. В шаговой доступности расположены Торговый центр, магазин «Перекресток», "Русская теннисная академия" (кроме тенниса: единоборства, детский клуб, студия фитнеса), ресторан «Весна», СПА-комплекс и Международная школа Внуково. А в Горчаково, расположена общеобразовательная школа 1391, частные клиники, банки, супермаркеты, автомойка. В 5 минутах на машине Пяти звездочный Отель и СПА-комплекс Теплеево Резорт, включающий в себя: детский сад «Империя Знаний», выездной туристический клуб, спортивные и творческие кружки, подготовительные занятия к школе и тп., бизнес-центр с конференц-залами, рестораны, фитнес-центр, SPA-клуб, 25-метровый бассейн с гейзером и массажными противотоками, детский бассейн с горкой, финские сауны и турецкий хамам, арома-баня, косметология, солярий, имидж-студия, банкоматы, прачечная, химчистка. А также рыбалка, катание на лошадях, квадроциклы, пейнтбол, тир, теннисные корты, баскетбол, залы единоборств, парковка.
Хочу посмотретьПоделитесь с друзьями:
Похожие предложения:
Дом, Голицыно-3 КП, 405 м2, 15.2 сот
Киевское шоссе, от МКАД: 32+8 км
Апрелевка, Рассказовка - от 15 мин на автоДом, Голицыно-3 КП
Минское ш., 28 км + 6 км
пл. участка: 15.2 сот
пл. дома: 405 м2
меблирован
Спален: 4. С/узлов: 2.




