Продажа дачи, коттеджа, дома на Киевском, Калужском шоссе — цена, описание, фото, расположение на карте.

Дом, Росинка к/п

Снят с реализации

Дом 369 кв.м под чистовую отделку в кп Росинка

Код: 531-303

Особенности объекта

Дом расположен в формирующемся КП. Выполнен под чистовую отделку, разведены и подключены все коммуникации, в том числе газ. В шаговой доступности инфраструктура п.Яковлево (школа, детский сад, магазины)

Расположение

Ссылка на карту
Росинка к/п (Яковлево)
Калужское шоссе, от МКАД: 15 км, всего: 22 км
Тип застройки: формирующийся к/п
Метро: Ольховая, Теплый стан, Бунинская аллея; от 16 мин на авто

Дом

Общая площадь строений: 369 м2
Год постройки дома: 2006
Количество уровней: 3
Спален: 5. С/узлов: 4. Комнат всего: 9.
Опции: терраса; машиномест крытых: 1, в т.ч. в теплом гараже: 1.
Материал стен: пеноблок+пенопласт
Облицовка стен: кирпич
Кровля: металлочерепица
Окна: стеклопакеты ПВХ
Стадия готовности: под чистовую отделку
1-ый этаж: Тамбур 5.5 кв.м, кухня 19 кв.м, столовая 25 кв.м, гостиная 35.4 кв.м, зимний сад 13 кв.м, котельная 7 кв.м, прихожая 14 кв.м, гараж 25 кв.м, коридор 5.6 кв.м, помещение 5.6 кв.м, санузел, постирочная, две кладовые.
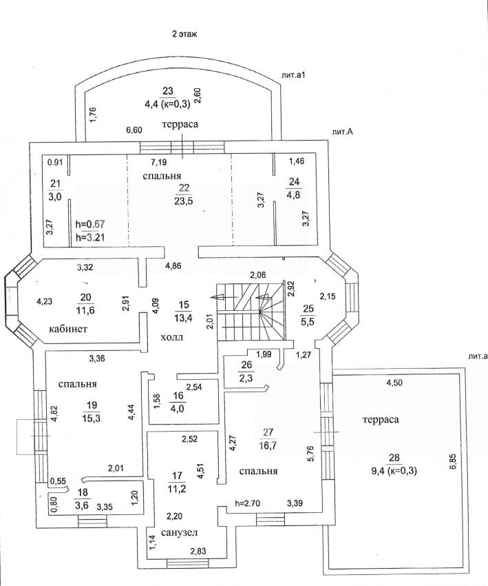
2-ой этаж: Спальня 15 кв.м, кабинет 11.6 кв.м, спальня 23.5 кв.м, спальня 16.7 кв.м, санузел 11 кв.м, санузел 4 кв.м, холл 13.4 кв.м, помещение 5.5 кв.м, 3 гардеробные, терраса 4.4 кв.м, терраса 9.4 кв.м
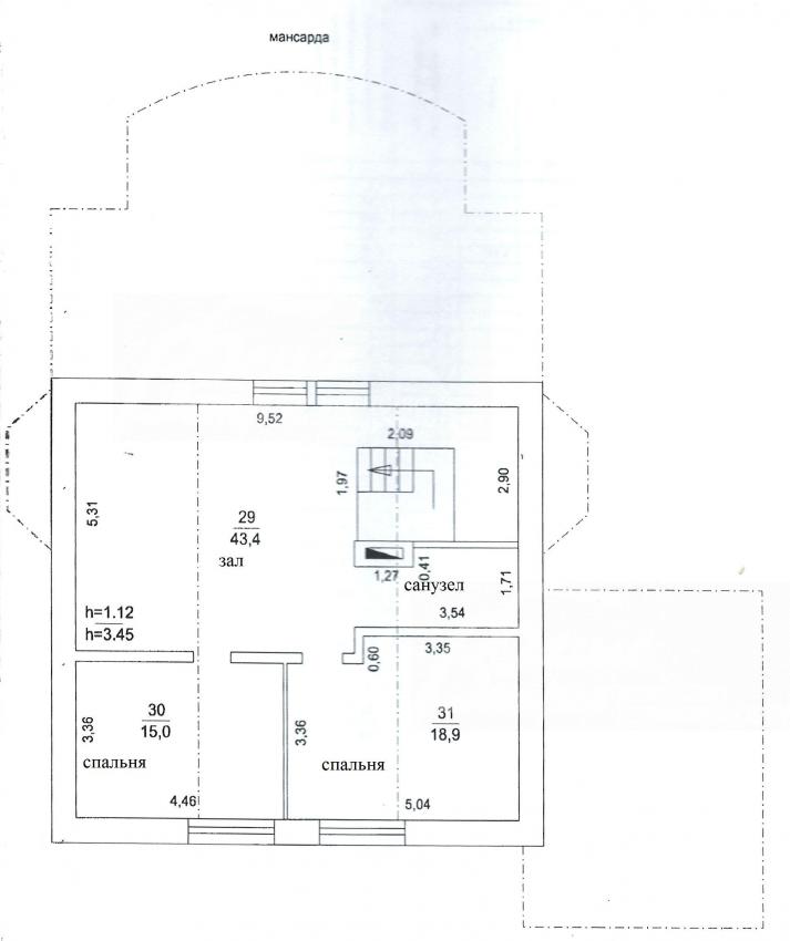
3-ий этаж: Мансарда: спальня 15 кв.м, спальня 19 кв.м, зал 43.4 кв.м, санузел
Описание внутренней отделки: Стены оштукатурены, ошпаклеваны. На полу чистовая стяжка. Потолки отделаны ГКЛ. Лестничный марш металлический. Электропроводка разведена. На 1 и 2 этажах установлены итальянские радиаторы для отопления.
Инженерное обеспечение: В доме установлен газовый котел АГВ на 60 кВт (есть дизельная горелка). Система очистки воды многоступенчатая. Вентиляция естественная.
Дополнительная информация о доме: Фундамент ленточный железобетонный монолитный. Перекрытия железобетонные монолитные.

Участок

Площадь участка, соток: 11.2
Тип участка: поле
Статус земли: земли поселений для индивидуального жилищного строительства
Дополнительная информация об участке: Участок правильной прямоугольной формы, из окон дома виден лес в 200м

Коммуникации

Газ: есть (магистральный)
Э/э: есть
Водопровод: индивид. скважина
Канализация: автономная (возможно подключение к центральной канализации)
Телефон: есть (по границе участка)
Интернет: есть (по границе участка)
Охрана: есть (КПП)

Описание инфраструктуры

В 1 км инфраструктура п.Яковлево (школа, детский сад, магазины).

Хочу посмотреть


Поделитесь с друзьями:

Собираетесь купить дом, дачу или коттедж на Калужском или Киевском направлении? Обязательно воспользуйтесь услугами компании «Белые Ветры», старейшего оператора загородной недвижимости на Юго-западе Подмосковья!
Рейтинг@Mail.ru