Продажа дачи, коттеджа, дома на Киевском, Калужском шоссе — цена, описание, фото, расположение на карте.

Дом, Сенькино-Секерино

Снят с реализации

Готовый к проживанию дом 362 кв.м в Сенькино-Секерино

Код: 334-815

Особенности объекта

Великолепная дача из рубленного бревна с бассейном и настоящей русской баней (кирпичная дровяная печь). Отлично подходит для отдыха и развлечения с компанией друзей и коллег. Бильярдная, квартира для персонала, гараж и большая парковка. Обжитое место. Вблизи пруд и лес.

Расположение

Ссылка на карту
Сенькино-Секерино
Калужское шоссе, от МКАД: 29 км, всего: 37 км
Киевское шоссе, от МКАД: 32 км, всего: 46 км
Тип застройки: коттеджная застройка
Метро: Прокшино, Теплый стан, Филатов луг; от 33 мин на авто

Дом

Общая площадь строений: 362 м2 (Дом 140 кв.м + бассейно-банный комплекс 131 кв.м + гараж 2-х этажный 91 кв.м)
Год постройки дома: 2003
Количество уровней: 2
Спален: 4. С/узлов: 2. Комнат всего: 5.
Опции: бассейн; баня; квартира для персонала; терраса; камин; машиномест крытых: 2, в т.ч. в теплом гараже: 2.
Материал стен: диаметр 26-28 см
Облицовка стен: окраска
Кровля: металлочерепица
Окна: стеклопакеты ПВХ
Стадия готовности: меблирован
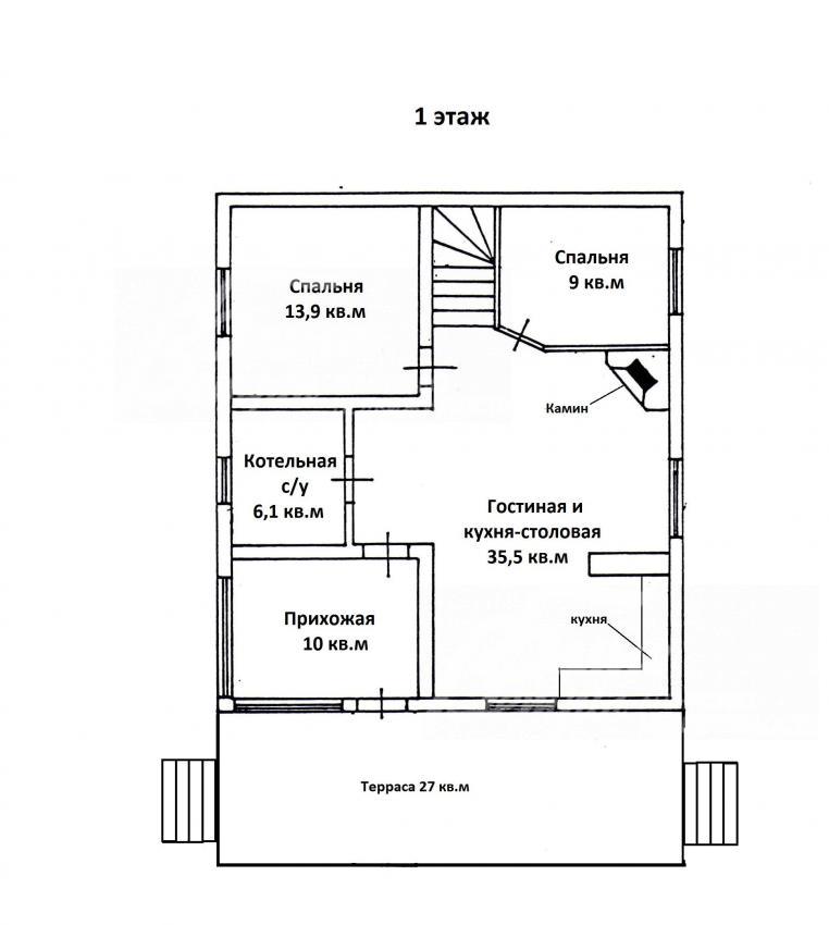
1-ый этаж: Терраса (открытая) 27 кв.м, прихожая 10 кв.м, гостиная-кухня 35.5 кв.м, спальня 14 кв.м, спальня 9 кв.м, котельная-с/узел 6 кв.м.
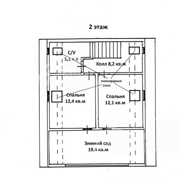
2-ой этаж: Коридор 8 кв.м, спальня 12 кв.м с выходом в зимний сад 19.4 кв.м, спальня 12.4 кв.м с выходом в зимний сад, с/узел 5 кв.м.
Описание внутренней отделки: Современная дачная отделка из эко-материалов. Стены-шлифованное бревно покрыто лаком. Полы отделаны доской, кафелем с водяным подогревом. Лестничный марш деревянный. Потолки отделаны деревом. Вся сантехника установлена. Все коммуникации разведены под ключ. Двери и подоконники деревянные.
Инженерное обеспечение: Вентиляция естественно-приточная. Система очистки воды многоступенчатая. В доме установлен газовый котел марки Dunkirk, в банном комплексе- газовый котел Ferolli. Для горячего водоснабжения в доме установлен бойлер марки Bradford на 200 л с газовой горелкой, в банном комплексе -бойлер косвенного нагрева на 200 л.
Дополнительные строения: Банный комплекс (одноэтажный 130 кв.м; часть, где русская баня - рубленный брус, остальное - пиленый брус 150х150, снаружи обшит блокхаусом).
1 Эт. - гостевая студия (зал-спальня 18 кв.м и мини-кухня 7.5 кв.м), зона бассейна 38 кв.м с чашей бассейна (скимерная) 5.5Х3.5 м с принудительной вентиляцией, с/узел 7 кв.м, котельная с котлом (газовый Ferolli) бойлером (200 л.) и оборуд. для бассейна, комната отдыха 20 кв.м, русская парная 6 кв.м (с настоящей каменной печью на дровах) зимний сад 25 кв.м с выходом на улицу.
Гараж 91 кв.м (2 этажа, 1 эт - каменный (пеноблок), второй - сруб бревно).
1 эт - 2 м/м
2 этаж бильярдная и с/у (или кв.для персонала).
Зимняя беседка 18 кв.м.
Беседка с мангалом.
Дополнительная информация о доме: Фундамент железобетонный монолитный ленточный. Перекрытия на 1 этаже - железобетонные, на 2 этаже - деревянные.

Участок

Площадь участка, соток: 25.3 (состоит из 2х участков 13.8 сот + 11.5 сот)
Тип участка: парковый (с плодовыми и лесными деревьями)
Благоустройство участка: На участке растут взрослые деревья: березы, ели, садовые деревья, декоративные кустарники, разбит газон, сделан прудик и дренаж
Статус земли: Земли населенных пунктов для ИЖС
Дополнительная информация об участке: Участок расположен в центре поселка, огражден металлическим забором

Коммуникации

Газ: есть (магистральный)
Э/э: есть (30 кВт)
Водопровод: центральный
Канализация: централизованная
Интернет: есть
Охрана: есть (пультовая + сигнализация)

Описание инфраструктуры

Инфраструктура поселка Шишкин Лес. Загородный отель-клуб Лачи . Питомник мини-лошадей. Гостинично-оздоровительный комплекс "Костин двор". Ферма с возможностью приобретения фермерской продукции.

Хочу посмотреть


Поделитесь с друзьями:

Собираетесь купить дом, дачу или коттедж на Калужском или Киевском направлении? Обязательно воспользуйтесь услугами компании «Белые Ветры», старейшего оператора загородной недвижимости на Юго-западе Подмосковья!
Рейтинг@Mail.ru