Дом, Шаганино
Код: 570-702
Особенности объекта
Дом под ключ, с терассой и интересным рельефным участком 11 соток в камерном поселке на 5 домовладений в Шаганино. Расположен поселок около леса и реки в живописном месте, рядом с пансионатом Пахра. В шаговой доступности остановка общественного транспорта до Подольска и Троицка. Все коммуникации центральные, действующие.
Расположение
Ссылка на карту
Шаганино
Калужское шоссе, от МКАД: 25 км, всего: 29 км
Тип застройки: сформированный к/п
Метро: Ольховая, Теплый стан, Бунинская аллея; от 31 мин на авто
Дом
Общая площадь строений: 232 м2
Год постройки дома: 2014
Количество уровней: 2
Спален: 4. С/узлов: 3. Комнат всего: 5.
Опции: терраса; камин.
Материал стен: кирпич
Облицовка стен: штукатурка
Кровля: металлочерепица
Окна: стеклопакеты ПВХ (с раскладкой, в том числе арочные)
Стадия готовности: под ключ
1-ый этаж: крыльцо, холл 18.6 кв.м, гостиная-столовая 37 кв.м с выходом на участок, кухня 15.5 кв.м, спальня/кабинет 18 кв.м, с/узел 8.6 кв.м, котельная 4.3 кв.м
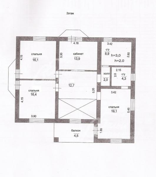
2-ой этаж: холл 12.7 кв.м, спальня 19 кв.м с выходом на балкон 4.5 кв. м и с/узлом 4.3 кв.м, две спальни по 16 кв.м с выходами на общий балкон, спальня 13.9 кв. м и с/узел 8.9 кв. м
Описание внутренней отделки: выполнена отделка по евростандарту: стены и потолки оштукатурены и окрашены, потолки декорированы молдингами. Пол - плитка с водяным подогревом, ламинат. Лестница монолитная, ступени и перила деревянные. Двери деревянные с витражными вставками. Подоконники пластиковые
Инженерное обеспечение: котельная полностью оборудована, установлены радиаторы
Участок
Площадь участка, соток: 9
Тип участка: с лесными деревьями
Благоустройство участка: высажен газон
Коммуникации
Газ: есть (магистральный)
Э/э: есть (25 кВт)
Водопровод: центральный
Канализация: централизованная
Телефон: возможно подключение (МГТС)
Интернет: возможно подключение (оптоволокно)
Охрана: есть
Описание инфраструктуры
В пешей доступности лес и река, пансионат Пахра, пос. Щапово с церковью, футбольным полем, детским садом, старинной усадьбой, органным залом, кафе, магазинами.
Хочу посмотреть