Дом, Шелестово КП
Код: 398-701
Особенности объекта
Вместительный двухуровневый особняк, в основе архитектурной концепции которого использовались элементы органической архитектуры Фрэнка Ллойда Райта. Просторный участок с автоматической системой полива, огороженный по периметру живой изгородью. Клубный поселок, с уникальным парковым комплексом, 2 озерами, выполненный в едином архитектурном стиле. Все коммуникации центральные, действующие.
Расположение
Ссылка на карту
Шелестово КП (Былово)
Калужское шоссе, от МКАД: 24 км, всего: 27 км
Тип застройки: формирующийся к/п
Метро: Ольховая, Прокшино, Теплый стан; от 25 мин на авто
Коттеджный поселок «Шелестово»
Дом
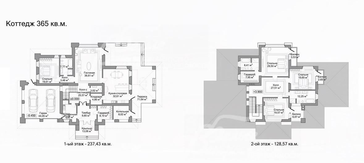
Общая площадь строений: 365 м2
Год постройки дома: 2014
Количество уровней: 2
Спален: 4. С/узлов: 4. Комнат всего: 6.
Опции: терраса; камин; машиномест крытых: 2, в т.ч. в теплом гараже: 2.
Материал стен: кирпичный блок Porotherm+утеплитель
Облицовка стен: облицовочный кирпич Nelissen (Бельгийский)
Кровля: натуральная черепица
Окна: стеклопакеты алюминиевые
Стадия готовности: под отделку (фасад дома и участок - под ключ)
1-ый этаж: крыльцо 13 кв.м, тамбур 9.85 кв.м, переход в гараж на 2 м/м 44 кв.м с выходом на участок, постирочная, холл с лестницей 25.5 кв.м, гардеробная 8.1 кв.м, кладовая 4.8 кв.м, с/у 3 кв.м, спальня 19 кв.м, с с/у 7.7 кв.м и небольшим холлом, гостиная 36.6 кв.м с выходом на террасу 71.64 кв.м, кухня-столовая 35.6 кв.м, котельная 8 кв.м
2-ой этаж: холл 27.5 кв.м, спальня 19.57 кв.м, с выходом на балкон, с/у 12.25 кв.м, спальня 19.69 кв.м, спальня 29.5 кв.м с выходом на балкон 3.53 кв.м, с гардеробной 7.95 кв.м и с/у 8.4 кв.м
Описание внутренней отделки: дом сдается с заведенными коммуникациями: эл-во до щитка, канализация, водопровод до стояка, газ до котла (входит в стоимость) + оптоволокно
Инженерное обеспечение: установлен котел Viessmann, счетчики электричества
Дополнительная информация о доме: в основе архитектурной концепции поселка использованы элементы органической архитектуры Фрэнка Ллойда Райта
Участок
Площадь участка, соток: 15
Тип участка: парковый
Статус земли: земли населенных пунктов, для ИЖС
Дополнительная информация об участке: на участке установлена система автоматического полива ОПС. Так же сделана ливневая канализация. Имеются закладные под электропривод ворот и под освещение фасада дома по периметру.
Коммуникации
Газ: есть (магистральный)
Э/э: есть (от 20 кВт)
Водопровод: центральный
Канализация: централизованная
Телефон: есть (оптоволокно)
Интернет: есть (оптоволокно)
Охрана: есть (КПП, ЧОП, видеонаблюдение, патрулирование с собаками)
Описание инфраструктуры
Инфраструктура поселка представляет Лесопарковую зону 10Га с озером, благоустроенную пляжную зону, набережную, беседки для барбекю, детские, спортивные площадки. Административный корпус с диспетчерским пунктом и военизированной охраной. Большая гостевая парковка. Широкие асфальтированные дороги -5,5 м, тротуары, выложенные гранитной брусчаткой, уличное освещение. Внешняя инфраструктура - города Троицка: спорткомплексы, школы, детские сады, поликлиники, больницы, магазины, аптеки, рестораны, кинотеатры, зоны отдыха. Недалеко от поселка находятся самый крупный спортивный парк "Красная Пахра", где множество спортивных площадок, тренажеров, освещаемые и охраняемые футбольное поле, теннисные корты, площадки для барбекю, пляж. Через дорогу: детская спортивная школа олимпийского резерва, баскетбольная школа «Тринта». Рядом частная школа и детский сад «Ника», гольф-клуб "Быково" и "Русская теннисная академия". Поселок расположен в 5 мин. езды от города Троицк, планируется открытие станции метро. Территория Новой Москвы. От МКАД до поселка на автомобиле не более 20-25 минут.
Элементы положит. окружения
На закрытой территории, только для жителей поселка, приватная лесопарковая зона с пляжной зоной, спортивными и детскими площадками, теннисным кортом, прогулочным парком и вертолетной площадкой
Хочу посмотретьПоделитесь с друзьями:
Похожие предложения:
Дом, Изумрудная аллея к/п (Ширяево), 388 м2, 13.4 сот
Киевское шоссе, от МКАД: 21+9 км
Ольховая, Теплый стан - от 21 мин на автоДом, Изумрудная аллея к/п
Калужское ш., 17 км + 6 км
пл. участка: 13.4 сот
пл. дома: 388 м2
под отделку
Спален: 10. С/узлов: 6.
Дом, Власово КП, 350 м2, 15.5 сот
Минское шоссе, от МКАД: 22+5 км
Крёкшино, Рассказовка - от 16 мин пешкомДом, Власово КП
Киевское ш., 21 км + 2 км
пл. участка: 15.5 сот
пл. дома: 350 м2
под отделку
Спален: 4. С/узлов: 4.
Дом, Митькино, 430 м2, 17 сот
Киевское шоссе, от МКАД: 21+7 км
Крёкшино, Рассказовка - от 11 мин на автоДом, Митькино
Минское ш., 22 км + 1 км
пл. участка: 17 сот
пл. дома: 430 м2
Спален: 6. С/узлов: 2.
Дом, Лесное Озеро к/п (Кузенёво), 435 м2, 15 сот
Ольховая, Теплый стан - от 29 мин на автоДом, Лесное Озеро к/п
Калужское ш., 25 км + 4 км
пл. участка: 15 сот
пл. дома: 435 м2
под отделку
Спален: 4. С/узлов: 3.
















