Дом, Шелестово КП
Код: 398-707
Особенности объекта
Просторный, современный дом под отделку со вторым светом, большими панорамными окнами и гаражом на 2 авто на участке 19 соток на второй линии от леса в строго охраняемом премиальном КП Шелестово. Поселок выполнен в едином архитектурном стиле. Все действующие коммуникации – магистральный газ, центральные водопровод и канализация, электричество, оптоволокно - поддерживают возможность обустройства системы "умный дом". Поселок с 3-х сторон окружен лесом. Собственная лесопарковая территория 10 Га с прогулочными зонами и озером, оборудованным пляжем и набережной. Москва, ИЖС.
Расположение
Ссылка на карту
Шелестово КП (Былово)
Калужское шоссе, от МКАД: 24 км, всего: 27 км
Тип застройки: сформированный к/п
Метро: Ольховая, Прокшино, Теплый стан; от 25 мин на авто
Коттеджный поселок «Шелестово»
Дом
Общая площадь строений: 500 м2
Год постройки дома: 2016
Количество уровней: 2
Спален: 5. С/узлов: 4. Комнат всего: 6.
Опции: терраса (+ 2 балкона); камин; машиномест крытых: 4, в т.ч. в теплом гараже: 2; второй свет, панорамные окна.
Материал стен: кирпичный блок "Porotherm" + утеплитель
Облицовка стен: облицовочный кирпич "Nelissen" (Бельгия)
Кровля: мягкая (черепица "Tegola")
Окна: стеклопакеты алюминиевые
Стадия готовности: под отделку
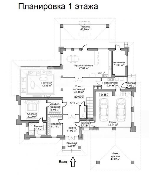
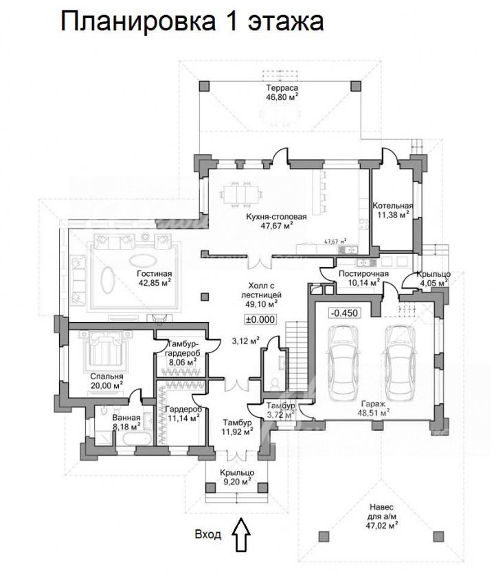
1-ый этаж: крыльцо 9 кв.м, тамбур 12 кв.м, гардеробная 11 кв.м, холл с лестницей 49 кв.м, гостиная со вторым светом 43 кв.м, кухня-столовая 48 кв.м с выходом на террасу 47 кв.м, санузел 4 кв.м, спальня 20 кв.м с гардеробной 8 кв.м и санузлом 8 кв.м, кладовая 5 кв.м, гардероб 8 кв.м, постирочная 10 кв.м, гараж на 2 авто 49 кв.м, котельная 11 кв.м.
2-ой этаж: холл 36 кв.м, спальня 36 кв.м с санузел 11 кв.м и с гардеробной 12 кв.м, с балконом 10 кв.м, 2 спальни по 19 кв.м с выходом на балкон 5 кв.м, кабинет 24 кв.м, санузел 13 кв.м, кабинет/спальня 24 кв.м
Дополнительная информация о доме: в основе концепции поселка использованы элементы органической архитектуры Фрэнка Ллойда Райта
Участок
Площадь участка, соток: 19
Тип участка: без деревьев, вторая линия от леса
Благоустройство участка: оборудована ливневая канализация. Есть закладные под электропривод ворот и под освещение фасада дома по периметру
Статус земли: земли населенных пунктов, для ИЖС
Коммуникации
Газ: есть (магистральный)
Э/э: есть (20 кВт)
Водопровод: центральный
Канализация: централизованная
Телефон: есть (оптоволокно)
Интернет: есть (оптоволокно)
Охрана: есть (ЧОП, КПП, видеонаблюдение, патрулирование с собаками)
Описание инфраструктуры
Инфраструктура поселка представляет Лесопарковую зону 10Га с озером, благоустроенную пляжную зону, набережную, беседки для барбекю, детские, спортивные площадки. Административный корпус с диспетчерским пунктом и военизированной охраной. Большая гостевая парковка. Широкие асфальтированные дороги -5,5 м, тротуары, выложенные гранитной брусчаткой, уличное освещение. Внешняя инфраструктура - города Троицка: спорткомплексы, школы, детские сады, поликлиники, больницы, магазины, аптеки, рестораны, кинотеатры, зоны отдыха. Недалеко от поселка находятся самый крупный спортивный парк "Красная Пахра", где множество спортивных площадок, тренажеров, освещаемые и охраняемые футбольное поле, теннисные корты, площадки для барбекю, пляж. Через дорогу: детская спортивная школа олимпийского резерва, баскетбольная школа «Тринта». Рядом частная школа и детский сад «Ника», гольф-клуб "Быково" и "Русская теннисная академия". Поселок расположен в 5 мин. езды от города Троицк, планируется открытие станции метро. Территория Новой Москвы. От МКАД до поселка на автомобиле не более 20-25 минут.
Элементы положит. окружения
На закрытой территории, только для жителей поселка, приватная лесопарковая зона с пляжной зоной, спортивными и детскими площадками, теннисным кортом, прогулочным парком и вертолетной площадкой. Рядом спортивный парк "Красная Пахра"
Хочу посмотретьПоделитесь с друзьями:
Похожие предложения:
Дом, Митькино, 430 м2, 17 сот
Киевское шоссе, от МКАД: 21+7 км
Крёкшино, Рассказовка - от 11 мин на автоДом, Митькино
Минское ш., 22 км + 1 км
пл. участка: 17 сот
пл. дома: 430 м2
Спален: 6. С/узлов: 2.
Дом, Лесное Озеро к/п (Кузенёво), 435 м2, 15 сот
Ольховая, Теплый стан - от 29 мин на автоДом, Лесное Озеро к/п
Калужское ш., 25 км + 4 км
пл. участка: 15 сот
пл. дома: 435 м2
под отделку
Спален: 4. С/узлов: 3.

|
|







