Дом, Славнефть КП
Код: 453-301
Особенности объекта
Красивый большой коттедж в обжитом камерном поселке, с высоким качеством строительства и богатой продуманной инженерией. Дорогие материалы отделки, санузлы и гардеробные в каждой спальне, бассейн, винные "погреба", бильярдная и кинозал. Дом располагается на просторном участке с роскошным ландшафтом, зоной отдыха на патио, собственным прудом, огромным количеством плодовых и лесных деревьев, кустарников и цветников
Расположение
Ссылка на карту
Славнефть КП (Афинеево)
Киевское шоссе, от МКАД: 25 км, всего: 28 км
Тип застройки: обжитой к/п
Метро: Апрелевка, Саларьево, Рассказовка; от 18 мин на авто
Коттеджный поселок «Славнефть КП (Афинеево)»
Дом
Общая площадь строений: 700 м2 (в т.ч.: жилой дом 590 кв.м, квартира персонала 60 кв.м, гараж 50 кв.м)
Количество уровней: 3
Спален: 5. С/узлов полных: 4. С/узлов неполных: 2. Комнат всего: 10.
Опции: бассейн; сауна; квартира для персонала; терраса; камин; холодный подвал; машиномест крытых: 2, в т.ч. в теплом гараже: 2; Бильярдная, кинозал, винные погреба..
Материал стен: кирпич
Облицовка стен: штукатурка, окраска
Кровля: металлочерепица
Окна: стеклопакеты ПВХ (двухкамерные)
Стадия готовности: меблирован
Цоколь: домашний кинотеатр 17 кв.м, бильярдный зал 25 кв.м, винная комната 13 кв.м и винный погреб 9 кв.м, холл 5 кв.м, с/узел, подсобное техническое помещение бассейна 55 кв.м, бойлерная-вентиляционная 25 кв.м
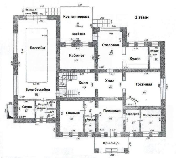
1-ый этаж: крыльцо 11 кв.м, прихожая 17 кв.м, гардеробная 6.7 кв.м, постирочная 10 кв.м, гостевая спальня 16 кв.м, тамбур-гардеробная 4 кв.м, гостевой с/узел 4 кв.м, холл 13.5 кв.м, гостиная с камином 27 кв.м, кухня-столовая 33 кв.м с кладовой 5.5 кв.м, выход на крытую террасу 26 кв.м с зоной барбекю, кабинет 18 кв.м, холл 13 кв.м Зона бассейна 67 кв.м с выходом на террасу: чаша бассейна 8х3.3 м глубиной 1.9 м, сауна 6.6 кв.м, раздевалка 4.4 кв.м, душевая и с/узел
2-ой этаж: холл 20 кв.м, тренажерный зал 18 кв.м, библиотека-кабинет 10 кв.м, Главная спальня 21 кв.м с ванной 10 кв.м и гардеробной 6.6 кв.м, спальня 27 кв.м с с/узлом 10 кв.м и гардеробной 6.6 кв.м, спальня 17 кв.м с ванной 8.5 кв.м, гардеробной 5 кв.м и балконом 10 кв.м
Описание внутренней отделки: Классическая отделка очень качественными дорогими материалами (мрамор, гранит и др.) Стены окрашены, обои во всех спальнях и кабинете, штукатурка. Пол - плитка с подогревом, керамогранит, паркет из дуба, в спальнях - мягкий ковролин. Потолки оштукатурены, в бассейне - натяжные.
Инженерное обеспечение: котёл Buderus Logano GE 315, бойлер Logolux на 500л, система очистки воды. Вентиляция вытяжная во всех жилых помещениях, принудительная в с/узлах и в бассейне (осушитель в бассейне). Оборудована сигнализация в доме.
Мебель, оборудование: Дом полностью обставлен мебелью, в том числе антикварной. В санузлах установлена импортная сантехника. Межкомнатные двери деревянные с витражами. Лестничный марш шириной 110 см, отделан дубом.
Дополнительные строения: - Отдельностоящий дом для обслуживающего персонала 50 кв.м: прихожая 6 кв.м, котельная 15 кв.м, студия 35 кв.м.
- Гараж на 2 автомобиля 60 кв.м (с канализацией и с/узлом), мастерская, холодный погреб.
- Беседка и вольер для собаки.
Дополнительная информация о доме: Дом выстроен и отделан в классическом стиле. Фундамент и перекрытия монолитные железобетонные, высота потолков на 1м этаже 2.65 - 3.25 м, 2ой этаж - 2.85 м, цоколь 2.7 - 3.3м
Участок
Площадь участка, соток: 40
Тип участка: с деревьями и ландшафтом
Благоустройство участка: шикарный лесопарковый участок с декоративными и плодовыми деревьями: яблони, груши, сливы, черешня, рябина, ели, сосны, берёзы, тополя, липы, клёны, каштан, туи, ива, боярышник, тёрн, калина и др. На участке проведен профессиональный ландшафтный дизайн: газон, прогулочные дорожки, уличное освещение, искусственный пруд с мостиком и патио, множество цветников
Статус земли: ИЖС
Дополнительная информация об участке: ровный участок правильной формы с небольшим уклоном, по фасаду - кованный забор на каменных столбах и цоколе
Коммуникации
Газ: есть (магистральный)
Э/э: есть (25 кВт, подключено две независимые линии)
Водопровод: центральный (на поселок+ индивидуальная скважина)
Канализация: автономная (Осина)
Телефон: возможно подключение (МГТС)
Интернет: есть (оптиковолокно, Триколор ТВ)
Охрана: есть
Описание инфраструктуры
В поселке есть свой теннисный корт, спортивная и детская площадки, перед посёлком небольшой продуктовый магазин. Поселок круглосуточно охраняется, въезд возможен только через КПП. В 1.5 км расположен г.Апрелевка.
Элементы положит. окружения
Тихий зеленый поселок в окружении хвойного леса, рядом протекает река Десна.
Хочу посмотретьПоделитесь с друзьями:
Похожие предложения:
Дом, У Реки КП (Первомайское), 600 м2, 40 сот
Филатов луг, Рассказовка - от 21 мин на автоДом, У Реки КП
Киевское ш., 21 км + 3 км
пл. участка: 40 сот
пл. дома: 600 м2
под ключ
Спален: 4. С/узлов: 5.


Дом, Мартемьяново КП (Мартемьяново), 781 м2, 37.5 сот
Апрелевка, Рассказовка - от 12 мин на автоДом, Мартемьяново КП
Киевское ш., 27 км + 2 км
пл. участка: 37.5 сот
пл. дома: 781 м2
меблирован
Спален: 5. С/узлов: 7.







