Продажа дачи, коттеджа, дома на Киевском, Калужском шоссе — цена, описание, фото, расположение на карте.

Дом, Софьино КП

Снят с реализации

Коттедж под ключ в коттеджном поселке Софьино на Киевском шоссе

Код: 432-803

Особенности объекта

Красивый дом с современной архитектурой, готовый к проживанию, большая гостиная с витражным остеклением. Расположен в обжитом камерном коттеджном поселке высокого уровня. В 500 м п.Софьино (магазины, дет. сады, муз.школа, бассейн.), остановка общественного транспорта до м. Юго-Западное или до станции Селятино

Расположение

Ссылка на карту
Софьино КП (Софьино)
Киевское шоссе, от МКАД: 30 км, всего: 32 км
Тип застройки: обжитой к/п
Метро: Прокшино, Бунинская аллея, Теплый стан; от 26 мин на авто

Дом

Общая площадь строений: 317 м2
Год постройки дома: 2006
Количество уровней: 2
Спален: 4. С/узлов: 4. Комнат всего: 5.
Опции: камин; машиномест крытых: 2, в т.ч. в теплом гараже: 2.
Материал стен: кирпич
Облицовка стен: стены-декоративная штукатурка, цоколь-искусственный камень
Кровля: мягкая
Окна: стеклопакеты ПВХ
Стадия готовности: под ключ
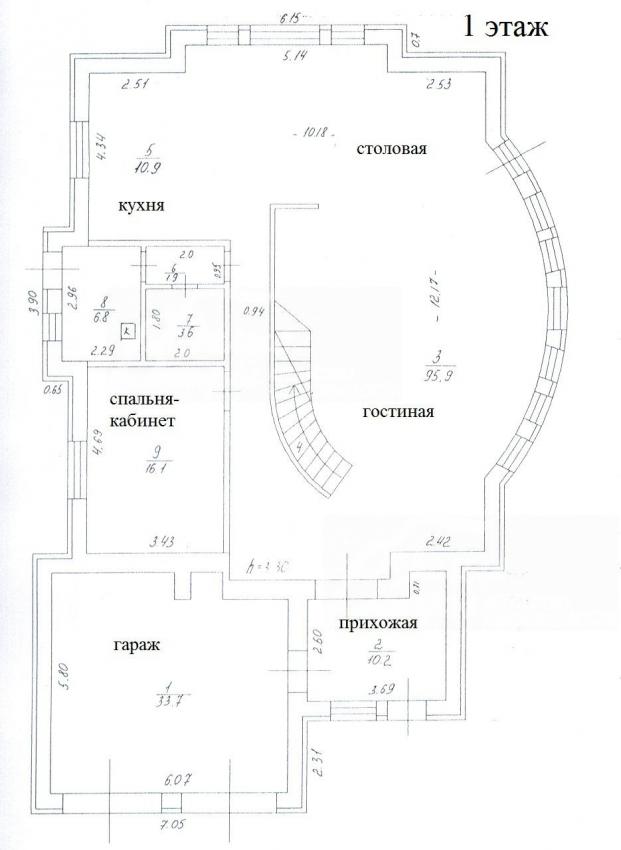
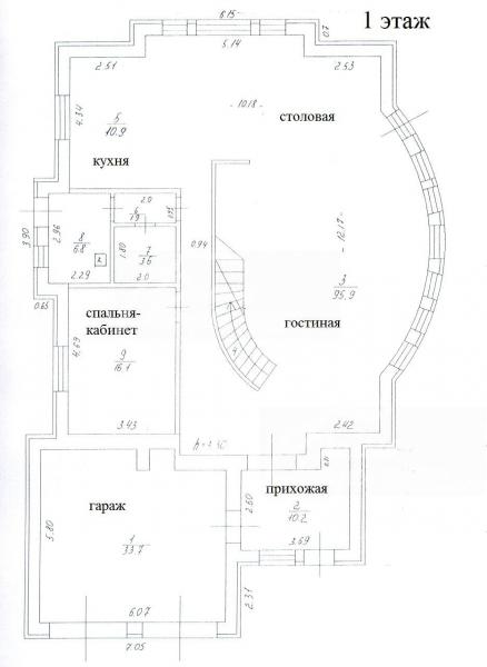
1-ый этаж: Прихожая 10 кв.м, гостиная- столовая 96 кв.м с камином и выходом во двор, кухня 11 кв.м, спальня-кабинет 16 кв.м, с/узел 3.6 кв.м, котельная 7 кв.м с выходом на улицу, гараж 34 кв.м.
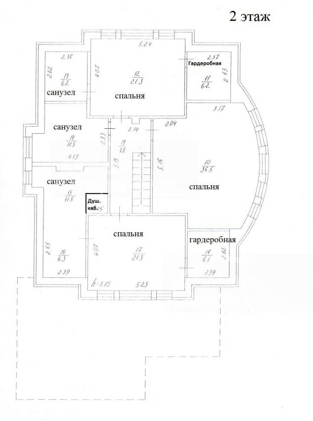
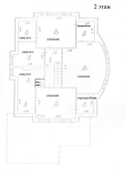
2-ой этаж: Коридор 8 кв.м, спальня 36.5 кв.м, спальня 21 кв.м с с/узлом 6 кв.м и гардеробной 6 кв.м, главная спальня 21 кв.м с с/узлом 11.5 кв.м и двумя гардеробными по 6 кв.м, общий с/узел 11.5 кв.м.
Описание внутренней отделки: Современная отделка из дорогих материалов. Стены окрашены и оклеены обоями, в санузлах кафель. Полы отделаны паркетной доской и кафелем с водяным подогревом. Потолки подвесные. Лестничный марш бетонный с керамическими ступенями и подсветкой. Вся сантехника марки IFO установлена. Вся электрика разведена под ключ. Есть стабилизаторы электричества.
Инженерное обеспечение: Система отопления и горячего водоснабжения представлена газовым котлом Kiturami на 50 кВт с бойлером. Система очистки воды многоступенчатая. Вентиляция естественно-приточная. В комнатах установлены кондиционеры LG. По участку разведена система автополива Hunter.
Дополнительная информация о доме: Фундамент ленточный железобетонный монолитный. Перекрытия железобетонные плиты. Высота потолков от 3 м.

Участок

Площадь участка, соток: 20
Благоустройство участка: Участок с ландшафтным дизайном: растут 15 взрослых туй, вековая ива, множество декоративных взрослых кустарников. Разбит газон. Организована стоянка на 6 авто и уличное освещение. Сооружен дренаж.
Статус земли: Земли поселений для ИЖС
Дополнительная информация об участке: Участок огражден деревянным забором на каменных столбах с бетонным цоколем.

Коммуникации

Газ: есть (магистральный)
Э/э: есть (15 кВт)
Водопровод: центральный
Канализация: централизованная
Телефон: есть (по границе участка)
Интернет: есть (по границе участка)
Охрана: есть

Описание инфраструктуры

Инфраструктура поселка Софьино и города Апрелевка.

Хочу посмотреть


Поделитесь с друзьями:

Собираетесь купить дом, дачу или коттедж на Калужском или Киевском направлении? Обязательно воспользуйтесь услугами компании «Белые Ветры», старейшего оператора загородной недвижимости на Юго-западе Подмосковья!
Рейтинг@Mail.ru