Продажа дачи, коттеджа, дома на Киевском, Калужском шоссе — цена, описание, фото, расположение на карте.

Дом, Согласие-1 к/п

Снят с реализации

Готовый к проживанию дом 356 кв.м в кп Согласие-1

Код: 316-827

Особенности объекта

Капитальный кирпичный дом с бассейном, бильярдной и тренажерным залом.  Большая парковка. Ухоженный участок. Центральные коммуникации. Расположен в известном обжитом коттеджном поселке.

Расположение

Ссылка на карту
Согласие-1 к/п (Фоминское)
Калужское шоссе, от МКАД: 14 км, всего: 16 км
Тип застройки: сформированный к/п
Метро: Ольховая, Прокшино, Теплый стан; от 17 мин на авто
Коттеджный поселок «Согласие-1»

Дом

Общая площадь строений: 356 м2
Количество уровней: 4
Спален: 5. С/узлов: 3. Комнат всего: 9.
Опции: бассейн; сауна; терраса; камин; холодный подвал; машиномест крытых: 1, в т.ч. в теплом гараже: 1; бильярдная,спортзал.
Материал стен: кирпич
Облицовка стен: кирпич+искусственный камень
Кровля: металлочерепица
Окна: стеклопакеты ПВХ
Стадия готовности: меблирован
Цоколь: Коридор 6.5 кв.м, кладовая 5 кв.м, спортзал 24 кв.м, предбанник 5.5 кв.м, сауна 9 кв.м, с/узел, зона бассейна 18 кв.м с душем и чашей бассейна 5Х1.5 м, котельная 15 кв.м, гараж 31 кв.м с водопроводом и канализацией, коридор из гаража 4 кв.м.
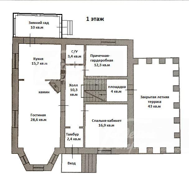
1-ый этаж: Тамбур, холл 10 кв.м, гостиная 28.6 кв.м с камином, кухня 15.7 кв.м, зимний сад 10 кв.м с выходом на улицу, спальня 17 кв.м, гардеробная-прачечная 12 кв.м, с/узел 3.4 кв.м, лестничный марш 9 кв.м, закрытая терраса (летняя) 43 кв.м.
2-ой этаж: Холл 7 кв.м, спальня 25 кв.м, спальня 18 кв.м, спальня 12.5 кв.м, спальня 19 кв.м, с/узел 7.5 кв.м.
3-ий этаж: Мансарда: бильярдная с баром 27 кв.м, кладовая 3 кв.м, кладовая 7 кв.м
Описание внутренней отделки: Стены на 1 этаже окрашены, спальни оклеены обоями, в зимнем саду стены отделаны вагонкой, в цоколе ПВХ панелями. На полу паркет, в спальнях ковролин. Лестничный марш деревянный. Потолки многоуровневые из ГКЛ с различной подсветкой. Все коммуникации разведены под ключ. Вся сантехника установлена. Двери массив дерева (дуб) филенчатые.
Инженерное обеспечение: Вентиляция естественно-приточная. Система очистки воды многоступенчатая. Для отопления установлены газовый котел Hansa и электрокотел Bosch. Горячее водоснабжение представлено газовым бойлером ACV на 200 л и электробойлером на 100 л.
Мебель, оборудование: В спортзале спортивные тренажеры 5 шт. Кухня со встроенной техникой марки Candy.
Дополнительные строения: Хозблок, летняя беседка
Дополнительная информация о доме: Фундамент монолитная железобетонная плита. Перекрытия железобетонные монолитные.

Участок

Площадь участка, соток: 15
Тип участка: парковый
Благоустройство участка: Участок с ландшафтным дизайном, разбит газон, цветники, сделаны дорожки, растут сосны 10 шт., туи 5 шт., можжевельники, голубые ели 3 шт., березы, яблони, клены, горная сосна, плодовые деревья, декоративные кустарники. Вокруг дома и на участке сооружен дренаж.
Статус земли: земли населенных пунктов для ИЖС
Дополнительная информация об участке: Участок прямоугольной формы, расположен в центре поселка, огражден металлическим забором на каменных столбах с высоким бетонным цоколем.

Коммуникации

Газ: есть (магистральный)
Э/э: есть (15 кВт)
Водопровод: центральный
Канализация: централизованная
Интернет: есть
Охрана: есть (2 КПП, патрулирование)

Описание инфраструктуры

На территории поселка бизнес класса Согласие 1: кафе, детская и спортивная площадки, в зимнее время каток..Вблизи поселка магазин, ресторан, автомойка, начальная школа, красивейшая деревянная церковь «Покров Божьей матери на Десне». В Жуковке частная школа 1-11 классы "Путь к успеху". В 500 м от поселка расположен оздоровительный комплекс УД Президента РФ "Ватутинки", в котором есть: бассейны (детский и взрослый), финская сауна, римская сауна, диско-бар, пивной бар, спортклуб, услуги стилиста, массажиста, косметолога, парикмахера, лечение: диагностика заболеваний, оздоровительные и корректирующие процедуры, кабинеты физиотерапии и стоматологии. В 2-х км г.Троицк с развитой городской инфраструктурой: школы, дет. сады, магазины, поликлиника, фитнес-центр с бассейном Резиденция.

Хочу посмотреть


Поделитесь с друзьями:

Собираетесь купить дом, дачу или коттедж на Калужском или Киевском направлении? Обязательно воспользуйтесь услугами компании «Белые Ветры», старейшего оператора загородной недвижимости на Юго-западе Подмосковья!
Рейтинг@Mail.ru