Продажа дачи, коттеджа, дома на Киевском, Калужском шоссе — цена, описание, фото, расположение на карте.

Дом, Согласие-1 к/п

Снят с реализации

Код: 316-852

Особенности объекта

Просторный дом по оригинальному проекту с бассейном, расположенный в сформированном охраняемом коттеджном поселке. Ухоженный участок со всеми центральными коммуникациями. Прописка.

Расположение

Ссылка на карту
Согласие-1 к/п (Фоминское)
Калужское шоссе, от МКАД: 14 км, всего: 16 км
Тип застройки: коттеджная застройка
Метро: Ольховая, Прокшино, Теплый стан; от 17 мин на авто
Коттеджный поселок «Согласие-1»

Дом

Общая площадь строений: 535 м2
Год постройки дома: 2006
Количество уровней: 4
Спален: 5. С/узлов: 4. Комнат всего: 8.
Опции: сауна; купель; терраса; камин; машиномест крытых: 2, в т.ч. в теплом гараже: 2.
Материал стен: кирпич
Облицовка стен: штукатурка
Кровля: металлочерепица
Окна: стеклопакеты ПВХ
Стадия готовности: под ключ (частично под чистовую отделку)
Цоколь: тренажерный зал
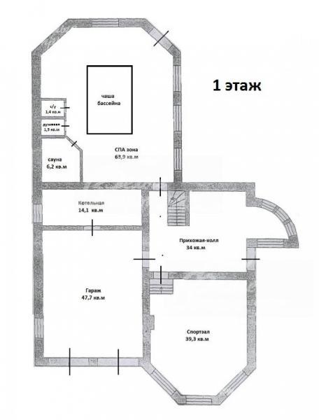
1-ый этаж: гараж на 2 а/м с автоматическими воротами, тех.помещение, прихожая, бассейн (купель 3х4) восьмигранный, сауна, душ, с/узел, выход на веранду
2-ой этаж: кабинет, кухня-столовая, каминный зал, с/узел, бильярдная, веранда
3-ий этаж: 3 спальни, с/узел, хозяйская спальня с с/узлом и гардеробной
Описание внутренней отделки: стены оштукатурены и окрашены, сделана чистовая стяжка полов, установлена временная деревянная лестница
Инженерное обеспечение: установлен котел Ferroli (Германия), тепловой контур разведен по дому (радиаторы Kermi), сделана вытяжка во всех комнатах и санузлах, установлены счетчики воды и электричества, есть сигнализация на техническом обеспечении
Дополнительная информация о доме: Дом в классическом стиле, блочно-монолитный фундамент, железо-бетонные перекрытия, высота потолков – 3 метра.

Участок

Площадь участка, соток: 20
Тип участка: без деревьев
Благоустройство участка: участок ровный, огорожен забором по периметру
Статус земли: ИЖС

Коммуникации

Газ: есть (магистральный)
Э/э: есть
Водопровод: центральный
Канализация: централизованная
Телефон: возможно подключение
Интернет: возможно подключение
Охрана: есть

Описание инфраструктуры

На территории поселка бизнес класса Согласие 1: кафе, детская и спортивная площадки, в зимнее время каток..Вблизи поселка магазин, ресторан, автомойка, начальная школа, красивейшая деревянная церковь «Покров Божьей матери на Десне». В Жуковке частная школа 1-11 классы "Путь к успеху". В 500 м от поселка расположен оздоровительный комплекс УД Президента РФ "Ватутинки", в котором есть: бассейны (детский и взрослый), финская сауна, римская сауна, диско-бар, пивной бар, спортклуб, услуги стилиста, массажиста, косметолога, парикмахера, лечение: диагностика заболеваний, оздоровительные и корректирующие процедуры, кабинеты физиотерапии и стоматологии. В 2-х км г.Троицк с развитой городской инфраструктурой: школы, дет. сады, магазины, поликлиника, фитнес-центр с бассейном Резиденция.

Элементы положит. окружения

Развитая инфраструктура.

Хочу посмотреть


Поделитесь с друзьями:

Собираетесь купить дом, дачу или коттедж на Калужском или Киевском направлении? Обязательно воспользуйтесь услугами компании «Белые Ветры», старейшего оператора загородной недвижимости на Юго-западе Подмосковья!
Рейтинг@Mail.ru