Продажа дачи, коттеджа, дома на Киевском, Калужском шоссе — цена, описание, фото, расположение на карте.

Дом, Согласие-2 КП

Снят с реализации

Коттедж с мебелью в КП Согласие-2 (Фоминское)

Код: 124-802

Особенности объекта

Красивый, на редкость функциональный дом с дорогой мебелью на участке с ландшафтным дизайном, в обжитом коттеджном поселке. Высокое качество строительства, дом очень тёплый (кирпич + 50 мм утеплителя). Современная отделка в классическом стиле. Центральные коммуникации. Видео

Расположение

Ссылка на карту
Согласие-2 КП (Фоминское)
Калужское шоссе, от МКАД: 14 км, всего: 17 км
Тип застройки: сформированный к/п
Метро: Ольховая, Теплый стан, Крёкшино; от 20 мин на авто
Коттеджный поселок «Согласие-2»

Дом

Общая площадь строений: 390 м2
Год постройки дома: 2009
Количество уровней: 3
Спален: 5. С/узлов полных: 3. С/узлов неполных: 1. Комнат всего: 8.
Опции: сауна; терраса; камин; машиномест крытых: 1, в т.ч. в теплом гараже: 1.
Материал стен: кирпич+утеплитель 50 мм
Облицовка стен: декоративная фасадная штукатурка, искусственный дикий камень
Кровля: мягкая
Окна: стеклопакеты ПВХ (двухкамерные Kaleva, мансардные - деревянные. Большая площадь остекления, дом - светлый)
Стадия готовности: меблирован
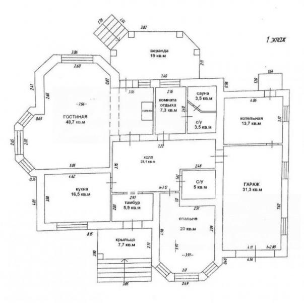
1-ый этаж: крыльцо 11 кв.м, прихожая 6 кв.м, холл 23 кв.м, кухня 16.5 кв.м, гостиная 49 кв.м с камином и выходом на террасу 20 кв.м, с/узел 5 кв.м, гостевая спальня 20 кв.м, комната отдыха 7 кв.м, сауна с душевой 7 кв.м, гараж 31 кв.м, котельная 14 кв.м с отдельным выходом
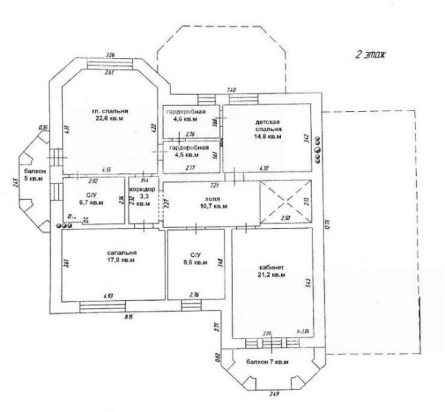
2-ой этаж: холл 11 кв.м, детская спальня 15 кв.м с гардеробной 5 кв.м, кабинет 21 кв.м с выходом на балкон 7 кв.м, общий с/узел 10 кв.м, спальня 18 кв.м, Главная спальня 23 кв.м со своим с/узлом 7 кв.м, гардеробной 5 кв.м и балконом 5 кв.м
3-ий этаж: мансарда: бильярдная/игровой зал 67 кв.м, спальня 15 кв.м, с/узел 6 кв.м, чемоданная 6.5 кв.м
Описание внутренней отделки: Современная отделка в классическом стиле из дорогих материалов. На стенах декоративная рельефная штукатурка и венецианская с перламутровым отблеском, классические обои, в мансарде - пробковое покрытие. Пол - кафель и керамогранит с водяным подогревом, штучный паркет в гостиной и спальнях, ламинат в мансарде. Лестничный марш деревянный (дуб) шириной 1 м с деревянными перилами. Потолки подвесные ГКЛ разноуровневые со встроенной подсветкой. Двери деревянные шпонированные.
Инженерное обеспечение: установлены газовый котел и бойлер на 200 л марки Viessmann, многоступенчатая система очистки воды, кондиционеры в гостиной и каждой спальне. В санузлах установлена сантехника итальянских и немецких брендов - Jacuzzi, Vela. В доме оборудованы датчики движения, видео наблюдение по периметру участка.
Мебель, оборудование: Дом полностью обставлен и оборудован - дорого и качественно: кухонный гарнитур Vitaly (Италия) со встроенной техникой: микроволновая печь, духовка, посудомоечная машина, вытяжка Neff (Германия), два холодильника, две морозильные камеры Liebherr (Германия). Итальянский столовый гарнитур Grande Arredo - стол обеденный и 6 стульев. Кресла мягкие (2 штуки) Natuzzi, Италия. Кожаный диван и столовый гарнитур в гостиной - Roche-bobois (Франция). Камин мраморный пр-ва Португалии (500 тыс.руб). Книжный шкаф и стол в кабинете итальянские - Palladio Interiors. Итальянская садовая мебель на террасе: стол, 4 стула и диван - Garda.
Дополнительная информация о доме: Дом в классическом архитектурном стиле. Фундамент ленточный, железобетонный монолит, перекрытия - монолитные железобетонные, высота потолков 3.1м. Обратите внимание на арочное остекление от пола до потолка и почти в стену длиной.

Участок

Площадь участка, соток: 15
Тип участка: парковый с деревьями
Благоустройство участка: на участке газон, высажены молодые деревья: голубые ели, пихты, клены, ели, сосны, много декоративных кустарников; дорожки вымощены из брусчатки, оборудован автополив участка, сделан дренаж вокруг дома и участка
Статус земли: земли населенных пунктов для ИЖС
Дополнительная информация об участке: участок прямоугольной формы в центре поселка, с фасада и боковых сторон деревянный сплошной забор на кирпичных столбах и бетонном цоколе, с задней стороны - кирпичный высотой 2 м, автоматические ворота при въезде, 1 парковочное место перед гаражом.

Коммуникации

Газ: есть (магистральный)
Э/э: есть (15 кВт)
Водопровод: центральный
Канализация: централизованная
Телефон: есть (МГТС)
Интернет: есть (высокоскоростной, спутниковое ТВ)
Охрана: есть (КПП, ЧОП)

Описание инфраструктуры

Вблизи поселка два супермаркета, магазин хозтоваров, пункт выдачи Ozon и Wildberries, красивейшая деревянная церковь «Покров Божьей матери на Десне». В Жуковке частная школа 1-11 классы "Путь к успеху". В 2,5 км от поселка расположен оздоровительный комплекс УД Президента РФ "Ватутинки", в котором есть: бассейны (детский и взрослый), финская сауна, римская сауна, диско-бар, бар, спортклуб, услуги стилиста, массажиста, косметолога, парикмахера, лечение: диагностика заболеваний, оздоровительные и корректирующие процедуры, кабинеты физиотерапии/ На выходе из посёлка остановка автобуса до м. Ольховая. В пешей доступности от поселка находится микрорайон "Новые Ватутинки", обладающий полноценной городской инфраструктурой, включающей в себя магазины, банки, рестораны, предприятия бытового обслуживания, детские сады, школы, поликлинику, фитнес - клуб, ТРЦ "Лайнер" и многое другое. Также неподалеку вся инфраструктура наукограда Троицк.

Элементы положит. окружения

Поселок граничит с лесом - в 200 метрах, в поселке 2 пруда.

Хочу посмотреть


Поделитесь с друзьями:

Собираетесь купить дом, дачу или коттедж на Калужском или Киевском направлении? Обязательно воспользуйтесь услугами компании «Белые Ветры», старейшего оператора загородной недвижимости на Юго-западе Подмосковья!
Рейтинг@Mail.ru