Дом, Согласие-2 КП
Код: 124-823
Особенности объекта
Большой участок. Красивый современный проект. Со вкусом подобран интерьер. Функциональная планировка. Централизованная система принудительной вентиляции. Дорогая кухня. Мощная дорогая инженерия. Обжитой поселок с центральными коммуникациями. Видеоролик
Расположение
Ссылка на карту
Согласие-2 КП (Фоминское)
Калужское шоссе, от МКАД: 14 км, всего: 17 км
Тип застройки: обжитой к/п
Метро: Ольховая, Теплый стан, Крёкшино; от 20 мин на авто
Коттеджный поселок «Согласие-2»
Дом
Общая площадь строений: 368 м2
Год постройки дома: 2010
Количество уровней: 3
Спален: 4. С/узлов: 4. Комнат всего: 7.
Опции: сауна; терраса; камин; машиномест крытых: 2.
Материал стен: сендвич
Кровля: мягкая
Окна: стеклопакеты ПВХ
Стадия готовности: меблирован
1-ый этаж: Прихожая-холл 28.5 кв.м с двумя гардеробными, гостиная 24 кв.м с камином, кухня-столовая 40.7 кв.м с выходом на террасу 22 кв.м, зал 23 кв.м, кабинет-спальня 17 кв.м, с/узел 5 кв.м, постирочная 5 кв.м, котельная 11 кв.м с выходом на улицу.
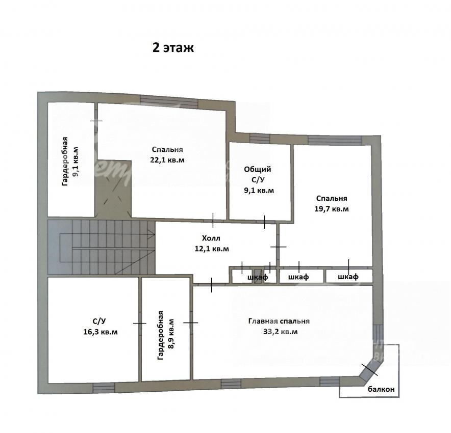
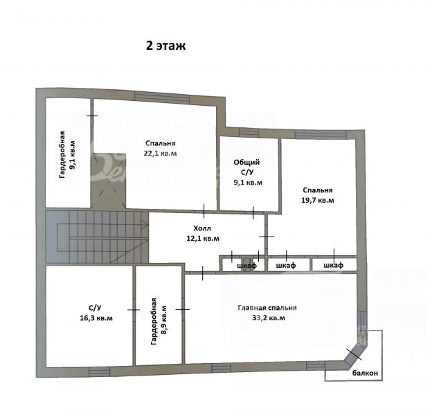
2-ой этаж: Холл 12 кв.м, спальня 22 кв.м с гардеробной 9 кв.м, спальня 19.7 кв.м с двумя гардеробными, общий с/узел 9 кв.м с душевой и ванной, гл.спальня 33 кв.м с с/узлом 16 кв.м, проход через гардеробную 9 кв.м и с выходом на балкон 3 кв.м.
3-ий этаж: Игровая комната 71 кв.м с зоной спальни, гостевой с/узел 8 кв.м с душевой.
Описание внутренней отделки: Стены окрашены, в санузлах кафель, на полу кафель с водяным подогревом и ламинат. Лестничный марш деревянный ( лиственница). Потолки подвесные из ГКЛ с карнизами. Все коммуникации разведены под ключ. Двери деревянные шпонированные. Вся сантехника установлена марки Devon & Devon
Инженерное обеспечение: В доме установлен газовый котел Ferroli на 60 кВт и бойлер косвенного нагрева Ferroli на 300 л. Система очистки воды многоступенчатая. Вентиляция разведена централизованная принудительная приточно-вытяжная без рекуперации. В жилых комнатах установлены кондиционеры марки Mitsubishi electric.
Мебель, оборудование: Кухня с островом (пр-ва Италия), фасады массив дерева, столешница из натурального гранита, встроенная техника (посудомоечная машина, варочная панель, духовой шкаф, СВЧ) марки Miele, холодильники и винный шкаф Liebherr, в раковине установлен измельчитель отходов. Каркасная мебель марки Ikea.
Дополнительные строения: Металлический навес на 2 авто.
Дополнительная информация о доме: Фундамент ленточный железобетонный монолитный, перекрытия на 1 эт. железобетонные монолитные, на других этажах деревянные.
Участок
Площадь участка, соток: 8
Тип участка: без деревьев
Благоустройство участка: На участке вдоль забора растет 12 туй, разбит газон, сделаны дорожки вокруг дома и площадка для авто из брусчатки. Вокруг дома сооружен дренаж. На участке установлена система автополива Hunter.
Статус земли: Земли населенных пунктов для ИЖС
Дополнительная информация об участке: Участок угловой, расположен в середине поселка, можно сделать два заезда, огражден с фасада кованым забором с поликарбонатовыми листами на каменных столбах с бетонным цоколем, слева деревянным забором высотой 2 м на каменных столбах с бетонным цоколем, сзади и справа металлическим забором высотой 3 м на металлических столбах с бетонным цоколем.
Коммуникации
Газ: есть (магистральный)
Э/э: есть (15 кВт)
Канализация: централизованная
Телефон: есть
Интернет: есть
Охрана: есть (КПП, ЧОП)
Описание инфраструктуры
Вблизи поселка два супермаркета, магазин хозтоваров, пункт выдачи Ozon и Wildberries, красивейшая деревянная церковь «Покров Божьей матери на Десне». В Жуковке частная школа 1-11 классы "Путь к успеху". В 2,5 км от поселка расположен оздоровительный комплекс УД Президента РФ "Ватутинки", в котором есть: бассейны (детский и взрослый), финская сауна, римская сауна, диско-бар, бар, спортклуб, услуги стилиста, массажиста, косметолога, парикмахера, лечение: диагностика заболеваний, оздоровительные и корректирующие процедуры, кабинеты физиотерапии/ На выходе из посёлка остановка автобуса до м. Ольховая. В пешей доступности от поселка находится микрорайон "Новые Ватутинки", обладающий полноценной городской инфраструктурой, включающей в себя магазины, банки, рестораны, предприятия бытового обслуживания, детские сады, школы, поликлинику, фитнес - клуб, ТРЦ "Лайнер" и многое другое. Также неподалеку вся инфраструктура наукограда Троицк.
Хочу посмотретьПоделитесь с друзьями:
Похожие предложения:
Дом, Капитолий к/п (Первомайское), 313 м2, 6 сот
Рассказовка, Филатов луг - от 19 мин на автоДом, Капитолий к/п
Киевское ш., 21 км + 3 км
пл. участка: 6 сот
пл. дома: 313 м2
меблирован
Спален: 4. С/узлов: 2.


Дом, Былово, 320 м2, 9 сот
Ольховая, Теплый стан - от 24 мин на автоДом, Былово
Калужское ш., 24 км + 3 км
пл. участка: 9 сот
пл. дома: 320 м2
под ключ
Спален: 4. С/узлов: 2.


Дом, Брехово, 365 м2, 10 сот
Минское шоссе, от МКАД: 22+5 км
Рассказовка, Саларьево - от 21 мин на автоДом, Брехово
Киевское ш., 21 км + 7 км
пл. участка: 10 сот
пл. дома: 365 м2
меблирован
Спален: 4. С/узлов: 2.

Дом, Русская Усадьба к/п (Былово), 364 м2, 10 сот
Прокшино, Теплый стан - от 23 мин на автоДом, Русская Усадьба к/п
Калужское ш., 24 км + 2 км
пл. участка: 10 сот
пл. дома: 364 м2
меблирован
Спален: 6. С/узлов: 2.
















