Продажа дачи, коттеджа, дома на Киевском, Калужском шоссе — цена, описание, фото, расположение на карте.

Дом, Согласие-2 КП

290 000 000
3 813 105 $
3 235 682 €
Новый одноэтажный меблированный дом в стиле хай-тек с впечатляющим экстерьером, отделанным керамогранитом, штукатуркой и ясенем

Код: 124-833

Особенности объекта

Новый суперсовременный одноэтажный дом. Стильная отделка "под ключ", меблирован всей основной мебелью.  Плоская кровля, впечатляющий фасад, отделанный крупноформатным керамогранитом, штукатуркой и термоясенем. Остекление от пола до потолка. Фасадная подсветка подчёркивает архитектурную выразительность дома. Потолки в Гостиной 4,9м, в остальной части 3,4м. 5 спален, 4 санузла. Уникальная веранда с радвижным безрамным остеклением длиной более 6м, кухонный блоком (мангал, русская подовая печь), круговым камином и системой "искусственный туман". Во внутренней концепции сочетаются дизайнерские тренды и инновационные решения: двери скрытого монтажа высотой 2.6м, автоматические шторы и форточки, подогрев пола на террасах, приточно-вытяжная вентиляция, мультирум, система «Умный дом». Дом - в охраняемом престижном коттеджном посёлке, на благоустроенном участке, прилегающем к лесу – часть лесной зоны облагорожена.

Расположение

Ссылка на карту
Согласие-2 КП (Фоминское)
Калужское шоссе, от МКАД: 14 км, всего: 17 км
Тип застройки: обжитой к/п
Метро: Ольховая, Теплый стан, Крёкшино; от 20 мин на авто
Коттеджный поселок «Согласие-2»

Дом

Общая площадь строений: 414 м2
Год постройки дома: 2021 (отделка выполнена в 2025 году)
Количество уровней: 1
Спален: 5. С/узлов полных: 3. С/узлов неполных: 1. Комнат всего: 6.
Опции: терраса (2); камин (2 - дровяной и паровой камин); машиномест крытых: 2, в т.ч. в теплом гараже: 2; система мультирум, подогреваемые крыльца, панорамное остекление из теплого алюминия. Принудительная приточно-вытяжная вентиляция..
Материал стен: железобетонный каркас, заполненный керамическим блоком (Porotherm) с дополнительной теплоизоляцией
Облицовка стен: комбинированная (сочетание двух видов крупноформатного керамогранита (800×1600 мм), термоясеня и декоративной штукатурки, Сделан на подсистеме - несущем алюминиевом каркасе, отделанном большими армированными листами (дорогостоящее решение, необходимое для отделки крупноформатным керамогранитом))
Кровля: плоская монолитная крыша с высококачественной гидроизоляцией и эффективным утеплением с дополнительным резервом прочности (установлена водосточная система с подогревом, выведена в ливневую канализацию)
Стадия готовности: меблирован (нет мебели в нескольких спальнях)
Цоколь: ые окна по всей стене и автоматизированные тепловые шторы, создающие уютное пространство
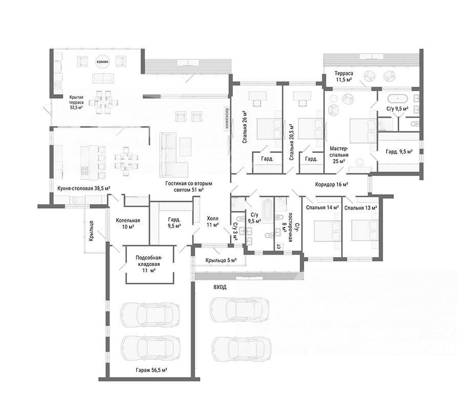
1-ый этаж: гараж на 2 автомобиля 56.5 кв.м (отапливаемый) из которого проход через гардеробную 9.5 кв.м в прихожую и через котельную 10 кв.м - в кухню. Крыльцо (с подогреваемыми ступенями) 5 кв.м, холл-прихожая 11 кв.м (светопрозрачная конструкция 2,1*3,3м); санузел гостевой 3 кв.м; гостиная с потолками 4,9м и огромным оконным порталом шириной 5.3*4.9м; кухня-столовая 38,5 кв.м с выходом в зону барбекю (крытая терраса с мангальной зоной, печью, круговым подвесным камином) 52,5 кв.м, мастер-спальня 25 кв.м с гардеробной 9,5 кв.м и санузлом 9,5 кв.м (с ванной и душевой) и с выходом на террасу 11,5 кв.м, коридор 16 кв.м, спальня с гардеробной 26 кв.м, спальня с гардеробной 20,5 кв.м, спальня 14 кв.м, спальня 13 кв.м, санузел 9,5 кв.м (с ванной и душем), санузел-постирочная 8 кв.м (с душем), подсобная-кладовая (электрощитовая) 11 кв.м,
Описание внутренней отделки: выполнена отделка в светлой гамме, в интерьере сочетаются актуальные дизайнерские тренды и инновационные решения. Дом наполнен светом благодаря большой площади остекления: окна от пола до потолка придают обстановке лёгкость и воздушность, они оснащены автоматическими шторами и форточками для проветривания. Стены отшпаклеваны и окрашены в бежево-молочные тона, на полу - инженерная доска и керамогранит, потолки из гипсокартона с разноуровневой подсветкой, в том числе контурной и акцентной. Установлены двери скрытого монтажа Profildoors высотой 2,6 м, подоконники из искусственного камня. Санузлы оформлены плиткой Porcelanosa (разные коллекции). Гостиную украшает паровой. Электрическая инфраструктура дома полностью интегрирована с системой «Умный дом» и с голосовым помощником (Алиса), дистанционный контроль отопления, тёплых полов, климатического и другого оборудования – через мобильное приложение. В тёплом светлом гараже на 2 автомобиля – серверная, рукомойник, оборудованное место для мытья лап животных. На входной группе и ступенях установлен подогрев для защиты от обледенения, на летней веранде – тёплый пол (работает от котельной с антифризными контурами). Веранда-барбекю со входом из кухни оборудована подвесным камином, мангалом и подовой печью. Для комфортного отдыха в жаркую погоду установлена система «искусственный туман», а в случае непогоды предусмотрены раздвижное безрамное панорамное остекление, тканевые автоматические мягкие двери и тёплый пол
Инженерное обеспечение: отопление – через газовый котёл Ferroli (Италия) мощностью 56 кВт, горячее водоснабжение – через бойлер Ferroli на 261 л. Установлены: многоступенчатая система водоочистки; приточно-вытяжная вентиляция с рекуперацией, очисткой и кондиционированием воздуха; комплексная система безопасности, которая включает видеонаблюдение по всему периметру участка и охранную сигнализацию. Бесшовная Wi-Fi система обеспечивает стабильный высокоскоростной интернет во всех помещениях дома
Мебель, оборудование: дом укомплектован мебелью по дизайн-проекту. Кухонный гарнитур дополнен техникой Smeg и Asko. В Гостиной оборудован профессиональный домашний кинотеатр, в санузлах – яндекс-станции, подключенные к встроенным потолочным стерео-колонкам (упрвление голосом "Алиса"). Сантехника премиальных марок Salini и Allen Brau (ванна, санфаянс и смесители)
Дополнительные строения: - есть хозяйственный блок с генераторной, дровница,
- выделено место с э/э для теплицы, также зона для огорода.
- выведены коммуникации (вода, канализация, э/э) для строительства банного комплекса.
Дополнительная информация о доме: конструкция фундамента включает утеплённое монолитное основание с комплексной гидроизоляцией и верхнюю плиту перекрытия. Высота потолков – 3,4 м, в гостиной – 4,95 м

Участок

Площадь участка, соток: 65 (23 сот. в собственности + 42 сот. аренда лесного массива)
Тип участка: с взрослым лесом и ландшафтом
Благоустройство участка: участок благоустроен. К дому примыкает большая лужайка с газоном, под всей поверхностью которого уложена анти-кротовая сетка. Вокруг дома реализованы 7 глубоких клумб для кустарников и цветов, а 1 клумба, глубиной 2м, возле входа в дом позволяет высадить дерево. Лесная часть участка (более 30 соток) - приведена в полный порядок. Парковочная площадка и все дорожки выложены толстым (2см) керамогранитом на ж/б основании. Создано архитектурное и декоративное освещение: подсвечиваются дорожки, деревья и кустарники. Установлена автоматическая система полива RAIN BIRD (8 зон). Участок огорожен и оборудован системой видео-наблюдения и охранной сигнализацией. Вокруг дома и участка сделан дренаж.
Статус земли: категория земель - земли населенных пунктов; вид разрешенного использования - для индивидуального жилищного строительства
Дополнительная информация об участке: участок расположен на границе коттеджного посёлка в тупике (отсутствуют проезжающие автомобили), прилегает к лесу. Территория огорожена стильным металлическим штакетником на бетонных столбах, въезд оборудован распашными воротами DoorHan

Коммуникации

Газ: есть (магистральный, госкомпания)
Э/э: есть (20 кВт, госкомпания)
Водопровод: центральный (также есть скважина)
Канализация: централизованная
Телефон: возможно подключение
Интернет: есть (оптоволокно, также есть спутниковое телевидение)
Охрана: есть (охраняемый коттеджный посёлок, видеонаблюдение по всему периметру участка и охранная сигнализация)

Описание инфраструктуры

Вблизи поселка два супермаркета, магазин хозтоваров, пункт выдачи Ozon и Wildberries, красивейшая деревянная церковь «Покров Божьей матери на Десне». В Жуковке частная школа 1-11 классы "Путь к успеху". В 2,5 км от поселка расположен оздоровительный комплекс УД Президента РФ "Ватутинки", в котором есть: бассейны (детский и взрослый), финская сауна, римская сауна, диско-бар, бар, спортклуб, услуги стилиста, массажиста, косметолога, парикмахера, лечение: диагностика заболеваний, оздоровительные и корректирующие процедуры, кабинеты физиотерапии/ На выходе из посёлка остановка автобуса до м. Ольховая. В пешей доступности от поселка находится микрорайон "Новые Ватутинки", обладающий полноценной городской инфраструктурой, включающей в себя магазины, банки, рестораны, предприятия бытового обслуживания, детские сады, школы, поликлинику, фитнес - клуб, ТРЦ "Лайнер" и многое другое. Также неподалеку вся инфраструктура наукограда Троицк.

Хочу посмотреть


Поделитесь с друзьями:

Собираетесь купить дом, дачу или коттедж на Калужском или Киевском направлении? Обязательно воспользуйтесь услугами компании «Белые Ветры», старейшего оператора загородной недвижимости на Юго-западе Подмосковья!
Рейтинг@Mail.ru